<ホテル三日月とアルハイテックが戦略的パートナーシップ契約を締結>世界初!廃アルミを活用したグリーンな水素火力発電の事業化をめざす
株式会社ホテル三日月(本社:千葉県木更津市、代表取締役社長:小髙芳宗 以下、ホテル三日月)と、アルハイテック株式会社(本社:富山県高岡市、代表取締役社長:水木伸明 以下、アルハイテック)は、世界初のグリーンな水素火力発電システムを構築し、化石燃料によらないサステナブルなリゾート事業におけるロールモデルとするべく、2026年の稼働をめざします。(以下、本事業)。また、本事業化に伴い、2024年6月26日に両社による戦略的パートナーシップ契約締結式を実施しました。

■プロジェクト概要
本事業は、「世界的なサステナブルリゾート化計画」を掲げるホテル三日月と、廃アルミ由来のグリーンな水素エネルギーで、世界が目指すカーボンニュートラルに寄与するアルハイテックが、木更津市や株式会社Unieによる協力のもと回収したアルミ付き包装容器やアルミ箔、工場などに余剰する低品位な廃アルミを、アルハイテックの水素製造装置を用いてグリーンな水素で発電する電力として活用する構想です。副産物であるグリーンな水酸化アルミは、地域の工業原料として活用し、資源循環社会の一端を担う計画です。地域ぐるみによるサステナブルな活動を通じて、“オーガニックなまちづくり”に貢献します。また、ホテル三日月とアルハイテックなどの参加による事業体制をつくり、安定した水素と水酸化アルミを活用した地域活性をめざします。
■ビジネススキーム案
両社協力して事業を確立し、原料となる廃アルミの仕入れ、水素及び水酸化アルミニウムの製造と販売を行い、水素による火力発電を実施する予定です。アルハイテックはオンサイトサービスとして廃アルミから水素および水酸化アルミを製造し、ホテル三日月はそこから得た水素による電力を、サステナブルなリゾート事業にて活用することを検討します。


■装置スペック
定置型水素製造装置(アルハイテック)
・運転時間:8時間/日
・運転日数:土日、祝を除く(240日/年)
・投入アルミ処理量:270kg/h
・水素製造能力:300Nm3/
水素火力発電設備(2G社:ドイツ)
水素の燃焼反応を利用して動力を得る水素エンジンからの

エネルギーを電力に変換する発電設備です。
・機種:agenitor 412H2(参考)
・面積:116m3
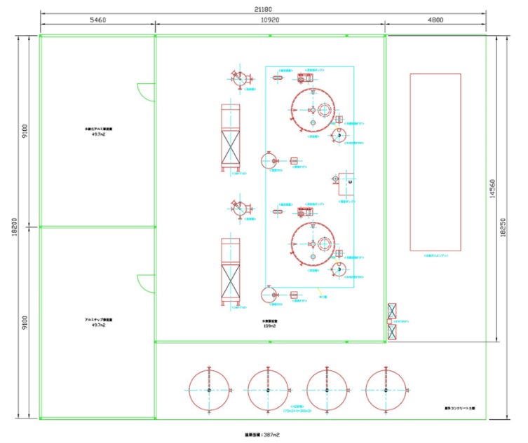
■水素製造装置配置図

<装置概要>
・アルミストック量:2,500kg
・ヤード面積:49.7m2
・建屋面積:387m2
■設置予定場所
ホテル三日月「SDGsパーク」内への設置を予定しています。

※右図赤枠エリア
■今後のスケジュール
<フェーズ1:地域の廃アルミ(産業界)を原料とした水素由来の発電事業>

<フェーズ2:地域のアルミ付き廃棄物(家庭系)を原料とした事業(木更津市)>

【会社概要】
名称:株式会社ホテル三日月

所在地:千葉県木更津市北浜町1番地
代表者:代表取締役社長・グループ代表 小髙 芳宗
1970年の創業以来、温泉リゾート施設の運営を中心に、宿泊・レジャーサービスを提供。お客様に最高のリラクゼーションとエンターテインメントを提供することを使命とし、グローバルに展開するリゾート施設を通じて、心温まるおもてなしと非日常の体験をお届けしている。
2024年4月からは、持続可能な開発目標(SDGs)の達成に向けた取り組みを一層強化し、「自社消費」と「新たな資源の創出」による“資源循環型ホテル”の実現を目指す「サステナブルリゾート化計画」を推進。このプロジェクトでは、省エネルギー設備の導入や廃棄物のリサイクル推進、海老の陸上養殖など、さまざまな事業の運用を開始する。
お客様に愛されるリゾート施設であり続けるため、サービスの向上と革新を追求し、地域社会とともに成長していくことを目指している。
名称:アルハイテック株式会社

所在地:富山県高岡市オフィスパーク1番地
代表者:代表取締役社長 水木 伸明
2013年に創立以来、「アルミ水素で未来を拓く!」をスローガンにカーボンニュートラル社会の実現に向けて廃アルミを利活用した水素エネルギー技術の研究開発に注力する環境エネルギー分野のベンチャー企業。2023年7月には、アラブ首長国連邦(UAE)での岸田総理の初の経済ミッションに同行し、ムハンマド大統領と面会。同年12月には、同国で開催されたCOP28に出展し、「JAPAN GREEN INNOVATION CONFERENCE」でスピーチを行う。日本国内のみならず、海外からオンリーワン企業として注目を集めている。アルミ水素を核に、未来を切り拓く革新的なエネルギーソリューションを世界中に展開する。
【廃アルミ調達協力】
名称:株式会社Unie

所在地:東京都大田区仲六郷1丁目52番19号
代表者:代表取締役 原 圭司
2023年に関東一円にあるアルミニウムを主体とする非鉄金属のリサイクル問屋「軽金属同友会」の会員を中心に創業。同じ志を持つ非鉄金属リサイクル企業が一丸となり、資源再生の未来を創造し、長期的な視野で廃アルミスクラップの新しい脱炭素・資源循環を目指している。
このプレスリリースには、メディア関係者向けの情報があります
メディアユーザー登録を行うと、企業担当者の連絡先や、イベント・記者会見の情報など様々な特記情報を閲覧できます。※内容はプレスリリースにより異なります。
すべての画像
