灯りが消えた家「空き家」に新たな暮らしの灯を。終日貸し切り、自由に使える一軒家のレンタルハウス「relaya(リラヤ)」が千葉県松戸市に本日OPEN
リラヤ株式会社(本社:東京都葛飾区 代表取締役 田代 啓太郎)は、空き家(廃墟)や再建築不可物件等の再利用が困難な物件を安価で購入し、グループ工事会社(創和施工株式会社)と連携してフルリノベーションした多目的スペース「一軒家のレンタルハウスRELAYA」の展開を開始します。





【リラヤとは】

リラヤは誰にも邪魔されることのないプライベート空間で、自分達だけの自由な時間を楽しむことができる、一軒家のまるごとレンタルハウスです。周囲に気を配ることなく、家にいるようにリラックスしながら、家にはない特別感のある空間で一日過ごすごとができます。
2.つながりを身近に
コロナ禍においても、人と人とのつながり、対面での触れ合いは人々共通の価値、普遍的なものであり、欠かすことができません。一軒家を一日貸し切って仲間と一緒に過ごすという、新しいコミュニケーションスタイルを提案し、身近な人同士のつながりを築く場を提供します。
【ちょっとした社会貢献】
1.建築廃材の再利用
前述しましたグループ工事会社業務の中では大量の建築廃材が発生します。その中には使用可能な建材も多くあります。通常であれば処分されるだけの建築廃材を、なるべくレンタルハウス事業の建材の一部として有効活用し、少しでも廃材を減らす努力をしています。(フローリング材、表装材など)
2.“やっかい不動産”の再利用
空き家の扱いに困っている方は多く、またこれから急速に空き家の件数は増加の一途をたどります。
この問題は話題にこそ取り上げられてはいるものの、国や行政も解決案を持ち合わせていないのが現状です。この社会問題に微力ながら貢献できれば幸いと考えています。
※空き家問題の詳細は以下の【空き家問題とは?】より
【サービスの背景】

1.女性の社会進出に伴うサービスを。
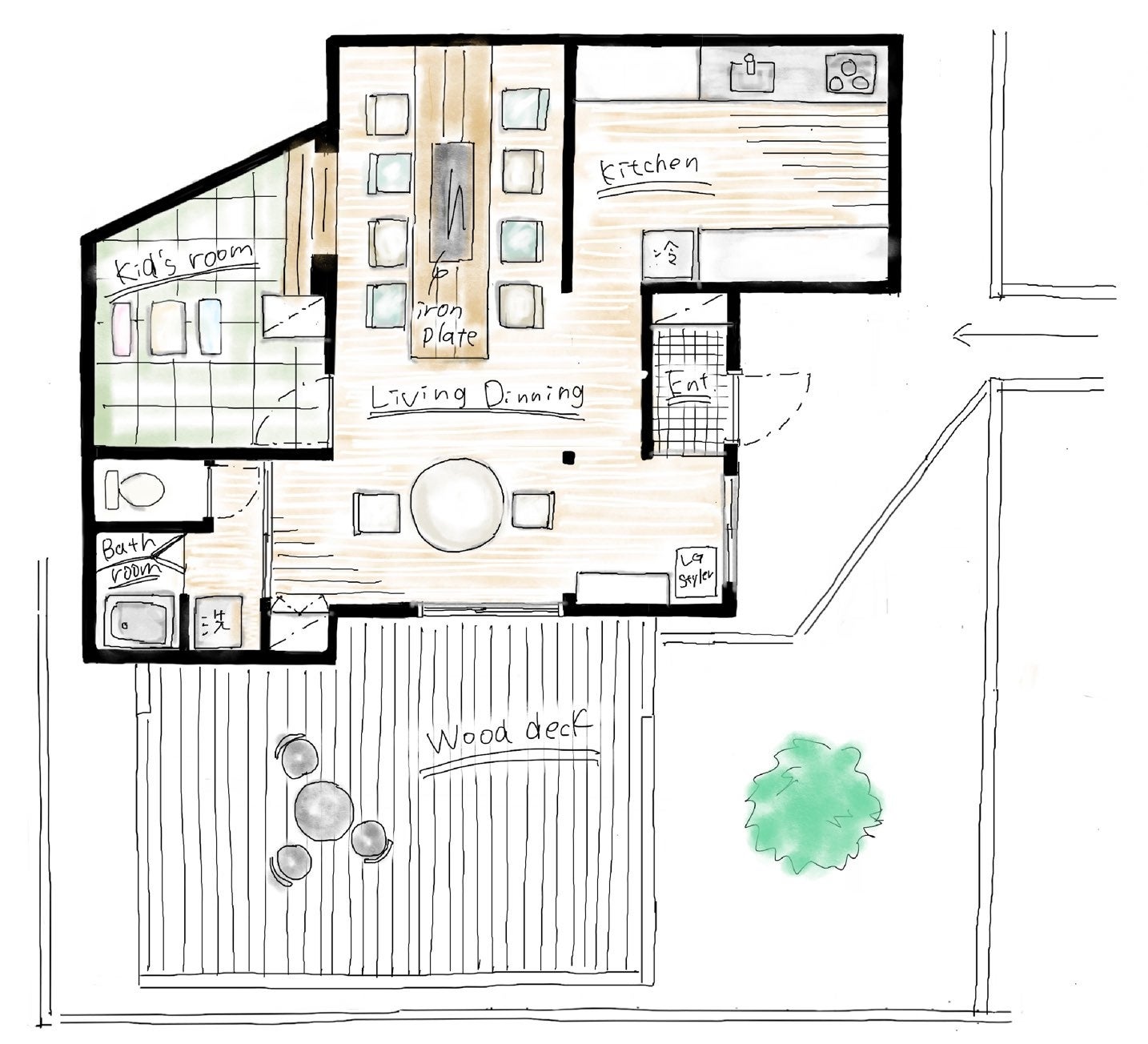
女性の社会進出が常識となった昨今、慌ただしい日時に相対し、女性が心からくつろげる空間作りに特化しております。例えば、キッズルームを常設し、おもちゃを多数用意することでお子さまが夢中になって楽しむことが来ます。
ファミリー利用を例にしますと、パパは鉄板焼きを手軽に楽しめるテーブルで豪快に調理。キッズルームではワイワイ楽しんでいるお子さまを見守りながら、ママはゆっくり食事に舌鼓を打つなど、ちょっとした特別感が得られるよう心がけ設計しています。
「不特定多数が利用せず安心」
「お子さまが気兼ねなくワイワイできる」
それが、その他の「食事を楽しむ場」との違いです。
2.“所有”から“シェア”という変革
コロナ禍では、シェアオフィスという言葉も浸透し、シェア(共有)するという概念が近年急速に普及しています。家においても、これからは個人で別荘を所有しなくても、使いたい時に使いたい人が気軽にレンタルで使用できる家をシェアすることで、誰もが“第二の家”という場所を持つことができ、今後そのニーズは増えていくと考えています。
【人が集まり、有効活用を促す】
自宅ではなく、レンタルハウスだからこそできることを考え、設備を整えています。
<ケース1>

課題「鉄板焼をしたいけど自宅だと匂いが気になるし、片付けも面倒」
解決「鉄板付きのロングテーブルを用意。排煙設備もあるのでニオイはこもりません」
<ケース2>

課題「小さな子どもを連れてママ友会をしたいけど、飲食店や自宅マンションでは周りの目が気になる」
解決「おもちゃも豊富にご用意したキッズルームを常設していますので、お子さまも退屈せず遊べます」
<ケース3>

課題「久しぶりにホームパーティーをしたいけど、感染症も気になる」
解決「衣類除菌装置や空調設備も完備しています」
<ケース4>

課題「打ち合わせスペースがない」
解決「wi-fiを完備した一軒家なので、気兼ねなく声を出して遠隔会議も可能です」
<ケース5>

課題「お料理教室をやってみたいけど、家のキッチンは狭いし人も集まれない」
解決「広々としたキッチンに調理家電も多数あります。お皿やカトラリーもご用意しています」
※使用目的は諸条件ございます。
【空き家問題とは?】
令和元年 住宅・土地統計調査統計調査
過疎地の問題と思われがちだった“空き家問題”。人口の減少が著しい地域だけではなく、人口密度が高いと言われている都会やその周辺でも近年は問題となっています。
総務省発表の令和元年「住宅・土地統計調査データ」によると、“空き家”と呼ばれるものは全国に約850万戸あり、この20年で1.5倍のペースで増加しています。この数は全住宅の7戸に1戸という数であり、2033年頃には2,150万戸に届く試算もあります。これは3戸に1戸のが空き家になる計算です。
何故こんなに空き家が増えていったのか、そして今後も増えていくのかという問題に2つの面が考えられます。
・高齢になり、持ち家を手放して施設に入ったが、家を継ぐものがおらず放置したまま
・手間暇を考えると二束三文のためとりあえずそのままにしておき、時間だけが経過している。
いずれも政府が乗り出し、国を挙げての対策は考えられてはいるものの、所有者個人で解決していく問題となると簡単なものではありません。
<空き家を放置するリスク>
・災害時以外にも老朽化による不意の倒壊、崩壊、屋根や外壁の落下
・放火等による火災発生のおそれ
・犯罪の誘発
・ゴミの不法投棄による害虫や害獣の発生
・雑草や落ち葉、樹木の越境進出
このように災害、防犯、衛星の面においても空き家は近隣住民においては何も良いことはありません。また、以前は賑わっていた画期ある街並みに歯抜けのような空き家が目立ってくると一抹の寂しさも相成り、町全体として資産価値も下がることにつながります。

リラヤは「SDGs11 住み続けられるまちづくりを」を採択し、“空き家問題”に取り組みます。
【今後の一軒家 OPEN予定】
・松戸市 上本郷・・・・8/1 オープン予定
・松戸市 六実・・・・・9/1 オープン予定
・市原市 今富・・・・ 10/1 オープン予定
・松戸市 上矢切No.1・11/1 オープン予定
・松戸市 上矢切No.2・11/15 オープン予定
・松戸市 上矢切No.3・12/1 オープン予定
このプレスリリースには、メディア関係者向けの情報があります
メディアユーザーログイン既に登録済みの方はこちら
メディアユーザー登録を行うと、企業担当者の連絡先や、イベント・記者会見の情報など様々な特記情報を閲覧できます。※内容はプレスリリースにより異なります。
すべての画像
