2023年4月末完成予定のシェア型研究拠点「湘南藤沢インキュベーションLABO」
12月入居者募集開始に関するリリース
行政施設からの巣立つ企業のポストインキュベーションとして受け皿の機能も。
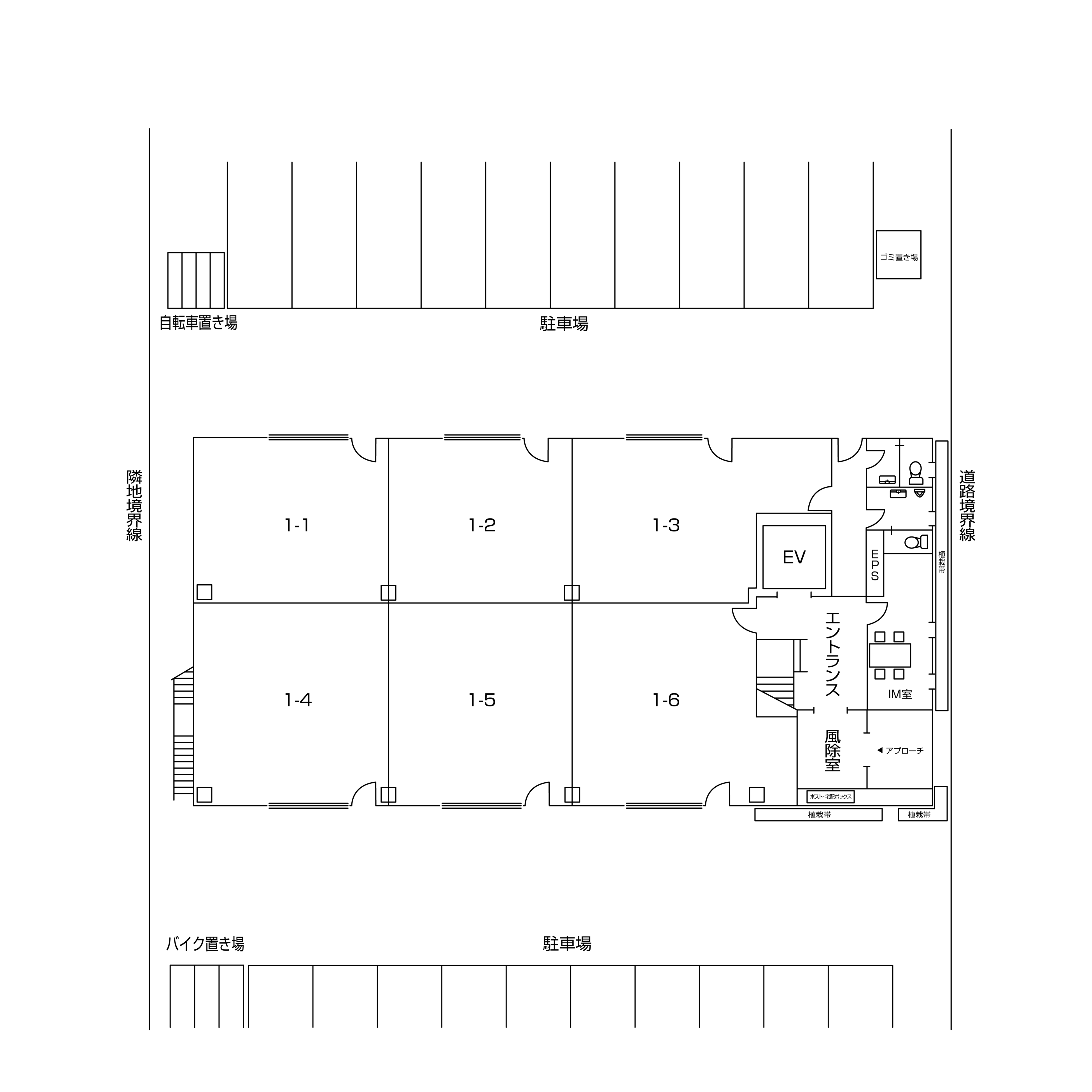
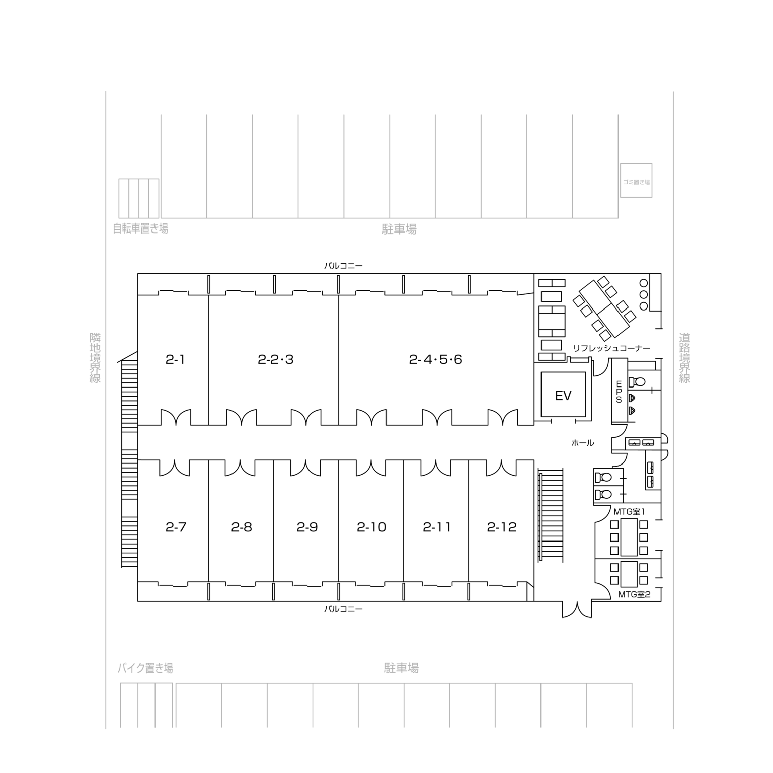
株式会社セット(〒251-0055 神奈川県藤沢市南藤沢8-7 ビッグリバービル5F/谷賢一郎社長)は、2022年12月1日(木)から、2023年4月末竣工予定のシェア型研究拠点「湘南藤沢インキュベーションLABO」(藤沢市遠藤2020-4.5)の入居者募集を開始した。
化学やITなどのものづくり分野で拡大を目指すベンチャー企業にとって、初期投資が抑えられるほか、一定のスペックを兼ね備えた施設を30~60平方メートルほどのスペースから始め、必要に応じて賃貸スペースを拡張できる。
同ラボは市内インキュベーション施設(慶應藤沢イノベーションビレッジ(SFC-IV)等)を卒業した企業が市内で受け皿となる施設が存在せず、地域課題を解決する目的でも機能させたいほか、スタートアップ支援を地域活性化につなげたいと考えている。
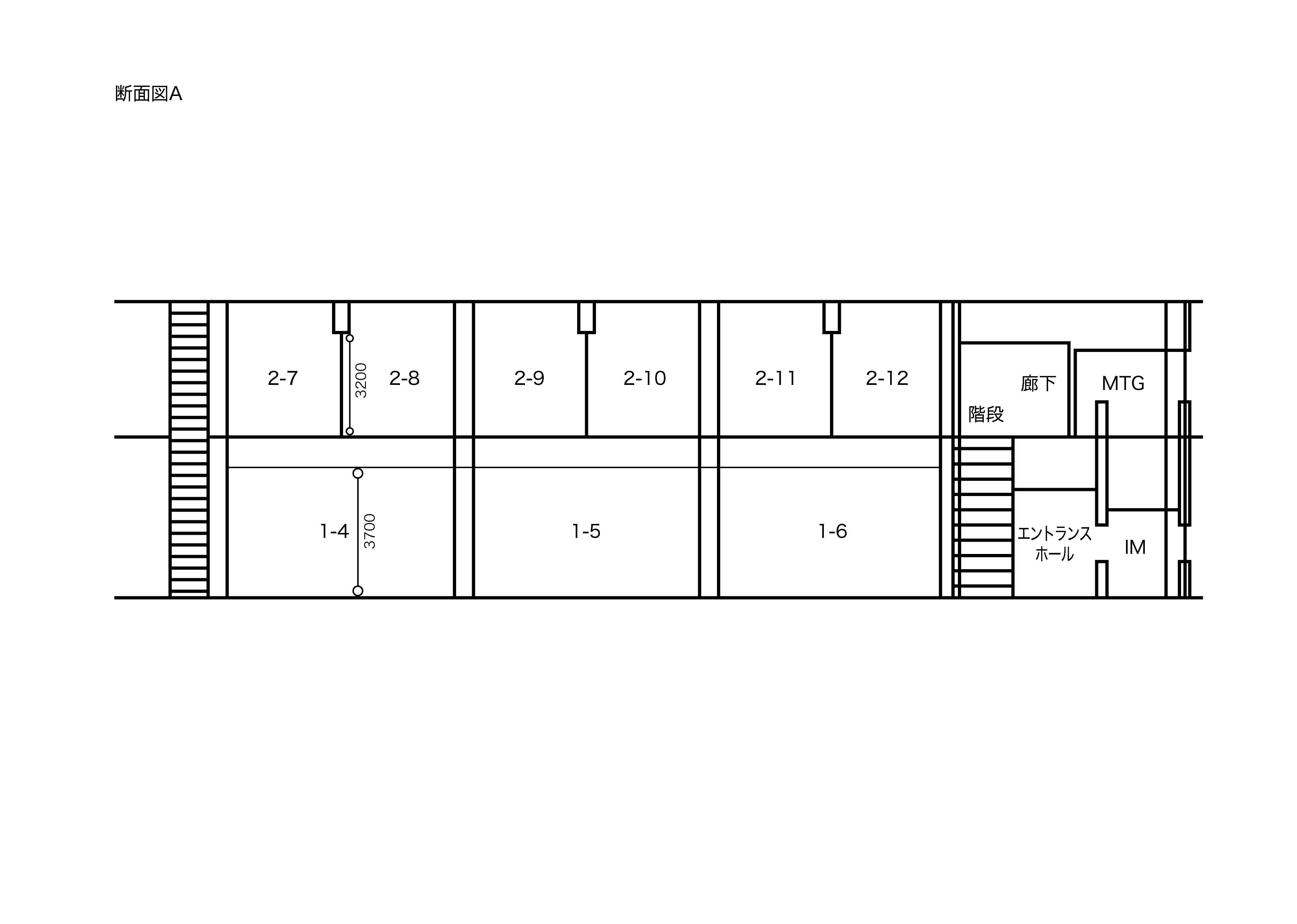
仕様
□物件の紹介ページ
https://sfi-labo.com/

化学やITなどのものづくり分野で拡大を目指すベンチャー企業にとって、初期投資が抑えられるほか、一定のスペックを兼ね備えた施設を30~60平方メートルほどのスペースから始め、必要に応じて賃貸スペースを拡張できる。
2022年1月からインキュベーション事業部を設立し、シェアオフィス3拠点と21室を運営。メンターや起業家支援者が日替わりママとなるスナック形式の交流拠点「イノベーションスナックみらぼ」も運営する。
同ラボは市内インキュベーション施設(慶應藤沢イノベーションビレッジ(SFC-IV)等)を卒業した企業が市内で受け皿となる施設が存在せず、地域課題を解決する目的でも機能させたいほか、スタートアップ支援を地域活性化につなげたいと考えている。
仕様
- 入居制限なし
- 耐荷重 1F:1,000kg 2F:500kg
- 全部屋 電灯・動力・上下水のインフラあり
- 研究開発型のファブレス企業向け
- EVは1,000kg/15名まで
- 東名高速綾瀬スマートICが開通
□物件の紹介ページ
https://sfi-labo.com/
このプレスリリースには、メディア関係者向けの情報があります
メディアユーザーログイン既に登録済みの方はこちら
メディアユーザー登録を行うと、企業担当者の連絡先や、イベント・記者会見の情報など様々な特記情報を閲覧できます。※内容はプレスリリースにより異なります。
すべての画像
