中川政七商店×堀田カーペットが手掛ける工芸建材。家づくりに触覚を提案する「Tactile Material株式会社」設立。工芸建材を体感できる宿、3月9日オープン
株式会社中川政七商店と堀田カーペット株式会社は、生活雑貨およびカーペットの枠を超えて「工芸建材」をテーマに事業を展開する合弁会社「Tactile Material(タクタイル マテリアル)株式会社」を立ち上げました。また工芸建材を体感する施設として、一棟貸しの宿「TACTILE HOUSE OSAKA」を2025年3月9日(日)に開業いたします。

家づくりに、「触覚」という選択肢を。中川政七商店と堀田カーペットは、工芸の力をいかした建築材料「工芸建材」※を通じて、空間に【tactile:触覚】という選択肢を提案する新事業を立ち上げます。視覚で選ぶことが中心の現代の建築に、手ざわりの質感と自然が宿る美しさを。「工芸建材」が生み出す心地よい暮らしを提案します。
2025年3月1日に設立となる「Tactile Material株式会社」は、1.オリジナル工芸建材の開発・販売、2.工芸建材の卸売、3.体感施設の運営・プロデュースを行う合弁会社です。その第一歩としてスタートするのが、工芸建材を体感できる宿「TACTILE HOUSE OSAKA」。漆や和紙などの工芸建材を取り入れた空間での「体感」を通じ、その魅力を伝え、施設や住居への導入につなげます。
中川政七商店は「日本の工芸を元気にする!」をビジョンに掲げ、工芸に根差した生活雑貨の製造小売や工芸メーカーのコンサルティングなどを行ってきました。その中で生活雑貨にとどまらず、よりスケールの大きなものづくり――インテリアや建材もまた、工芸を元気にする重要な選択肢だと考えてきました。一方、堀田カーペットは「カーペットを日本の文化にする!」をビジョンに掲げウールカーペットの製造販売を行う中で、「体感できる場をつくり、カーペットにとどまらない空間全体まで提案したい」という思いを抱いていました。両社の想いが重なり、Tactile Materialが誕生。工芸建材を開発・販売し、実際に体感できる場を提供することで、暮らしに「触覚」という選択肢を提案する。そんな未来に向けて、私たちは歩みを進めていきます。
※「工芸建材」の商標登録出願中
TACTILE HOUSE

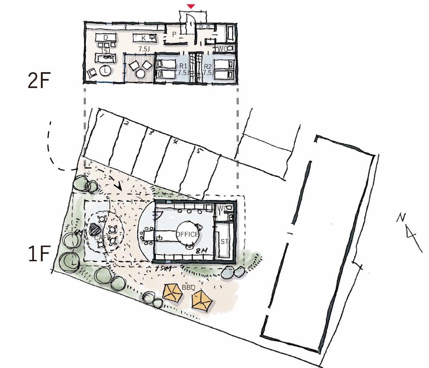
TACTILE HOUSE OSAKAは、工芸建材がもたらす心地よさや美しさを、滞在を通じて肌で感じられる一棟貸しの宿です。土地面積189坪・延床面積59坪の2階建てには、1階にショールーム・オフィスを併設し、2階はステイフロアで構成。
空間の随所に、Tactile Materialが手掛けた工芸建材が施されています。部屋の中心に据えられた意匠柱には越前漆を、羊毛を混ぜた和紙の建具には越前和紙を採用。伊達冠石をいかした洗面台や、水回り含め全室に敷き込まれたウールカーペットなど、指先で、足裏で、全身で、工芸建材の魅力を味わっていただける空間です。 一般向けの宿泊プランやレンタルハウスプランほか、建築関係者および施主向けにアテンド付き施設見学サービスもご用意しています。

設計/MMA.inc 工藤 桃子
東京生まれ。幼少期をスイスで過ごす。多摩美術大学環境デザイン学科卒、組織設計勤務のち工学院大学藤森照信研究室修士課程修了。 16年に MMA Inc.を 設立。建築設計のほか、インテリアデザイン、展覧会の会場構成も手がけている。2020-2022年多摩美術大学非常勤講師。
スタイリング・家具デザイン/Essential Store 田上拓哉
大阪市福島区の「Essential Store」店主。世界中から蒐められた古美術品を主として取扱い、アパレルメーカー・生地屋も運営。独自の入札方法で行われる「Essential Silent Auction®︎」は、モノの価値を再考する仕組みとして確立している。近年は空間デザイン、プロダクトデザインの領域でも活躍。
■施設概要
施設名 TACTILE HOUSE OSAKA
開業日 2025年3月9日(日)
フロア構成 1Fショールーム・オフィス、2Fステイフロア
(2F:リビング、キッチン、ベッドルーム2部屋、バスルーム、パントリー、バルコニー)
予約サイト https://tactilehouse-osaka.booking.chillnn.com/
所在地 大阪府和泉市阪本町162番地
土地面積 624.545㎡(189坪)
延床面積 197.08㎡(59坪)
建築 1F RC造 2F 木造
施工 西谷工務店
外構 GREENSPACE
TACTILE HOUSE OSAKA の工芸建材

意匠柱、棚板、個室テーブル/漆塗り(漆琳堂)
意匠柱は呂色仕上げで鏡のような光沢に。廊下の棚板は和紙貼りの漆仕上げ、リビングの棚板は乾漆粉仕上げ、寝室の机には緆粉に透漆を重ね、それぞれで漆の多彩な表情を演出しています。

タイル/オリジナル磁器質タイル(TAJIMI CUSTOM TILES)
湿式鋳込成形による製法で、土の素材感、釉薬のゆらぎが表現されたオリジナルタイルが完成。洗面所、浴室、トイレ、バルコニーに貼り、空間に奥行きを生み出しました。

建具/オリジナル手漉き和紙(滝製紙所)
床面のウールカーペットに調和するよう、羊毛を混ぜたオリジナルの越前和紙を制作。羊毛が生む独特の風合いと手漉きならではのざらざらとした手触りが、自然光の豊かな表情を引き出します。

洗面台/伊達冠石(大蔵山スタジオ)
200万年前の火山活動によって形成された宮城県・大蔵山は、「伊達冠石」が採れる唯一の地。自然の力が刻まれたこの貴重な石の風合いを活かし、洗面台として大胆に取り入れました。

壁紙/織物壁紙(小嶋織物)
京都府木津川市の小嶋織物は、天然素材を活かした織物壁紙を製作。織物がつくりだす立体感、繊細な美しさと大胆さ。アクセントにもなる存在感のある織物壁紙を寝室に採用しています。

浴槽/SKUNA(日ポリ化工)
1962年創業のユニットバスのパイオニア、日ポリ化工によるブランド「SKUNA」のバスタブを採用。熟練した職人の高度な技術による美しいフォルムが、バスルームでのひとときを特別なものにします。

カーペット/woolflooring(堀田カーペット)
世界でも希少なウィルトン織機で織られたウールカーペットを、浴室以外のすべての空間に採用。ふんわりとした踏み心地に加え、天然の撥水性も備え、思わず床に寝ころびたくなる心地よさです。
■予約プラン
<宿泊プラン>1日1組1棟貸し/定員6名基本料金 税込72,600円〜
<施設見学プラン>施主および建築関係者向けの日帰り施設見学。2時間制
<レンタルハウスプラン>写真・動画撮影など様々な用途で利用可能
1棟基本料金 税込80,000円〜(最大8時間)
PRODUCT

1.TACTILE事業(オリジナル工芸建材の開発・販売)
第一弾商品「TACTILE×ESSENCIAL STORE STOOL PROTOTYPE 1.0」
重さ、軽さに注目し、重たい石が重力に逆らい浮いているような、「不思議な感覚」をコンセプトに、Essential Storeと共同開発。脚には35mmのアクリル樹脂を使用し、外でも使える耐久性を備え、自然光が脚元を照らしたときには光が屈折し、ゆらぎのある美しい光を演出します。
【税込価格】S(高さ30cm)¥250,000/1脚 、 M(高さ40cm)¥300,000/1脚 、 L(高さ50cm)¥350,000/1脚
2.卸売事業(工芸建材の流通サポート)
既存の工芸建材は、その商流の複雑さから、工芸メーカーが施主や代理店へ直接販路を持つことが容易ではありません。そこで Tactile Material は卸代理店として、住宅メーカーや工務店への販売窓口を開拓。営業や広報を担い、工芸建材の流通を後押しします。現在、和紙、漆、織物壁紙などを取り扱う予定です。
Tactile Material株式会社
設立 2025年3月1日
代表取締役社長 堀田将矢
資本金 1000万円
所在地 594-0052 大阪府和泉市阪本町162番地
事業内容 建材製品の開発・販売・卸売
建築、空間、家具、プロダクトに関する設計・監修
体感施設の運営・プロデュース
Instagram Tactile Material @tactile_material
TACTILE HOUSE OSAKA @tactile_house_osaka
このプレスリリースには、メディア関係者向けの情報があります
メディアユーザー登録を行うと、企業担当者の連絡先や、イベント・記者会見の情報など様々な特記情報を閲覧できます。※内容はプレスリリースにより異なります。
すべての画像
- 種類
- 商品サービス
- ビジネスカテゴリ
- インテリア・家具・収納ホテル・旅館
- ダウンロード