空間デザイナーが物件案内をする事業用不動産仲介サービス、「デザイナー不動産」を提供開始しました
不動産仲介と空間デザインのシナジーを生み出し、顧客の不動産体験に革新的なアプローチを

株式会社木下商会(東京都中央区、代表取締役:村山太一、以下きのもと商会)は事業用の不動産仲介において、デザイナーならではの視点を活かした「デザイナー不動産」を2024年11月より開始したことをお知らせします。
本サービスではきのもと商会の空間デザイナーが物件提案・案内・デザインを行い、単なる物件紹介に留まらない、新しい不動産体験を提供します。
「デザイナー不動産」とは
「デザイナー不動産」はきのもと商会の空間デザイナーが、オフィスや店舗を中心とした事業用不動産のご案内を行う不動産仲介サービスです。物件選定の段階からデザイナーの視点を取り入れ、物件のポテンシャルを最大限に引き出すサポートを行います。
1.内見時に空間デザイン相談が可能
デザイナーが内見に同行することで、物件を借りたあとに実現可能な空間デザイン、内装デザインや、工事の費用感についてその場で具体的な相談が可能です。
顧客の理想に寄り添った提案をスピーディに行うことで、不動産仲介と空間デザインのシナジーを生み出します。
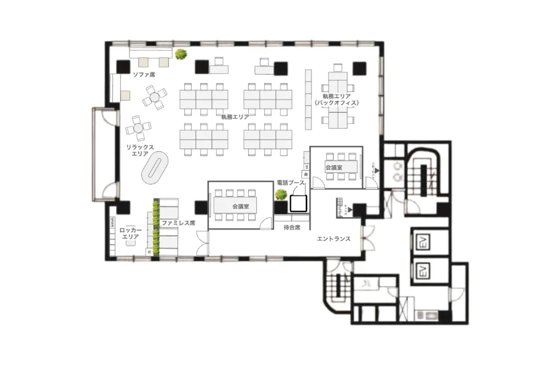
さらに、WEBサイトでは紹介物件ごとにオリジナルのレイアウトデザインを掲載。単に面積や立地条件を満たすだけでなく、具体的なビジネスシーンを想定したデザイン提案で物件の可能性を可視化します。
このデザインを基に、実際のプロジェクトへスムーズに反映することも可能です。


2.オフィス空間デザインのプロがアドバイス
オフィス物件の案内では、オフィス移転プロジェクトの豊富な実績を活かし、企業の成長や将来のレイアウト変更を見据えた柔軟なプロジェクト企画を行います。
長期的な視点で優れたオフィス環境を構築するためのアドバイスを提供し、企業の成長を後押しします。

トラスティーパートナーズ株式会社 本社オフィス

クリスピー・クリーム・ドーナツ・ジャパン株式会社
https://kinomoto-firm.co.jp/projects/KrispyKremeDoughnuts-Japan

ラディックス株式会社 本社
3.ワンストップソリューション
物件選定から空間デザイン、設計・施工・家具手配まで一貫して対応する体制を構築しました。WEBサイト上のデザイン案をそのまま活用することによるデザインの期間の短縮や、複数業者との煩雑なやり取りが不要になることでスムーズなプロジェクト進行を実現します。
サービス開始の背景と今後の展望
きのもと商会は、これまでに手がけてきた多くの空間デザインプロジェクトを通じて、 物件選定の段階からデザイナーが関わることで、物件の可能性を最大限に引き出し、顧客の理想の空間をスムーズに実現できることに着目しました。
「不動産仲介と空間デザインが一体となれば、物件選定や空間デザインの可能性がさらに広がり、顧客にとって新たな価値を提案できるのではないか」
このような発想から、不動産仲介と空間デザインのシナジーを活かした新しいサービス「デザイナー不動産」が誕生しました。
今後は「デザイナー不動産」を通じて、事業用不動産仲介と空間デザインを融合させた革新的なアプローチを提案し続けます。
私たちのミッション、「やってみよう」が自然と生まれる“場”をつくり続ける、を目指し、顧客が次のステージへ進む一歩を後押しし、企業成長や新たな挑戦を力強く支えていきます。


株式会社木下商会
■会社概要
会社名:株式会社木下商会
代表取締役:村山 太一
所在地:〒103-0002 東京都中央区日本橋馬喰町1-5-15 ロッソバクロ3F
設立:2019年1月
事業内容:ワークプレイスのデザイン・設計・内装工事、プロジェクトマネジメント、不動産仲介、不動産広告制作(CG・VR・映像)、メディア企画・運営、WEBサイトの制作、家具の販売
■お問い合わせ先
media@kinomoto-firm.co.jp
編集部
すべての画像
