岐阜県垂井町発、川沿いのカフェ&シェアスペースで「人を、地域を、未来を豊かに」。地域や、若者の未来に貢献する拠点づくりのため、クラウドファンディングを開始
【募集期間】2022年11月11日~12月31日/ローカルクラウドファンディング「OCOS」にて募集
この度、岐阜県不破郡垂井町で、川沿いのグッドロケーションを地域の賑わい拠点とすべくアクションを起こします。
空き物件を、スペース「TONARI GA KAWA」として再生。様々な働き方に対応したコワーキングスペースとなり、まちのカフェとなり、新しいことにチャレンジする人のサポート拠点となります。イベントやポップアップを通じてたくさんの人が集い、新しいカルチャーを創り出す場所になります。
建築家、デザイナー、飲食店経営と、ジャンルは違えど、それぞれに自分の人生をクリエートしてきた30・40代男子が一致団結し、合同会社青芝を設立。5人自分たちを育ててくれた地域への恩返しと、後進の豊かな未来創生に向けて動き出しました。
プロジェクトサイト
https://www.oco-s.jp/project/tonarigakawa
空き物件を、スペース「TONARI GA KAWA」として再生。様々な働き方に対応したコワーキングスペースとなり、まちのカフェとなり、新しいことにチャレンジする人のサポート拠点となります。イベントやポップアップを通じてたくさんの人が集い、新しいカルチャーを創り出す場所になります。
建築家、デザイナー、飲食店経営と、ジャンルは違えど、それぞれに自分の人生をクリエートしてきた30・40代男子が一致団結し、合同会社青芝を設立。5人自分たちを育ててくれた地域への恩返しと、後進の豊かな未来創生に向けて動き出しました。
プロジェクトサイト
https://www.oco-s.jp/project/tonarigakawa
はじめまして。クリエーター5人からなる合同会社青芝です。
● 西田拓馬
株式会社TAB 代表取締役/一級建築士/「まちなかスクエアガーデン」実行委員長
https://www.tabjapan.com/
● 大津 厳
デザイン事務所 THROUGH 代表/アートディレクター/デザイナー
https://www.through-web.com/
● 古田敦也
株式会社ダイキュー 取締役部長/アートディレクター/デザイナー
https://daiq-pri.co.jp/
● 青島貴士
青島珈琲焙煎所 店主
https://www.instagram.com/aoshima_coffee/
● 松葉真人
musubu DESIGN 代表/アートディレクター/デザイナー
https://www.instagram.com/musubu.design/

--------------------------------------------------
WHERE? どこで?

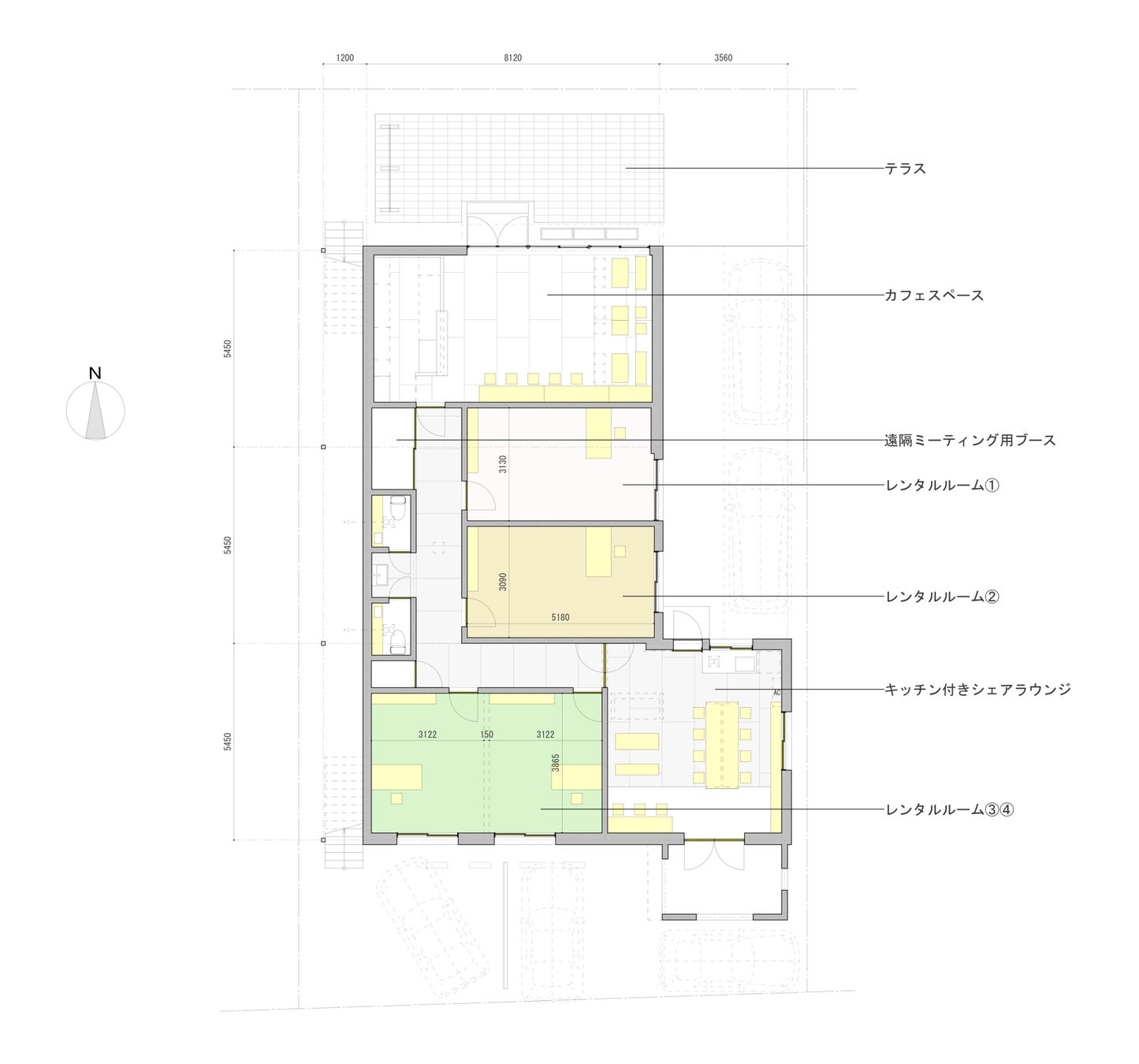
美濃国の中心、交通の要所として栄えた歴史と、豊かな自然を誇る岐阜県垂井町。JR東海道線垂井駅の北側を流れる相川は、毎年3月下旬から5月上旬にかけて「相川鯉のぼり一斉遊泳」が行われます。上空を遊泳する約350匹の鯉のぼり、残雪が残る伊吹山、満開となる約200本のソメイヨシノを同時に楽しむことができる垂井町春の風物詩。その風景を堪能できる相川右岸の建物、その名もスペース「TONARI GA KAWA」です。
キッチン付きのシェアラウンジ、あらゆるアクティビティに対応するオープンスペース、くつろぎのカフェ、様々な働き方に対応できるスペースを整備します。隣接する相川水辺公園や河川敷スペースも有効活用できるよう取り組む予定です。
--------------------------------------------------
WHAT? 何をする?
新しい働き方の提案、スタートアップの支援、コミュニティづくりのサポートを目指します。

● Work
兼業、副業、リモートワーク、フリーランス……昨今「work」にまつわる環境はめまぐるしく変化しています。「TONARI GA KAWA」では、wi-fi はもちろん、遠隔ミーティング用個室やフリーアドレスの席を用意し、会員の皆様の新しい働き方実践をサポートします。

● カフェスペース
青芝が運営するカフェスペース。会員を中心に利用できるPOPUPスペースにもなります。展示・物販・飲食・イベント・ワークショップなど様々なアクティビティに対して柔軟に対応できる空間になっています。青芝が企画する定期的なイベントも開催予定。
● シェアラウンジ
会員とレンタルルーム利用者が利用できる、エントランスホールを兼ねたシェアラウンジ。
ソファ席や、スタンディングデスクなど10席程度を確保。wi-fiの利用できるフリーアドレスのワークスペースとして機能します。
シェアキッチン付きなので、パーティやイベント等も開催できる空間になっています。
● レンタルルーム
個別に貸し出す鍵付きの占有スペース。会員と同様のサービスを受けることが可能になります。
事務所・アトリエ・ショップなど多様な用途での貸し出しを想定しています。
合同会社青芝のメンバーによるインテリアデザインサポートももれなく付いてきます。
ルーム1・2:46000円/月(光熱費・共益費込)
ルーム3・4:38000円/月(光熱費・共益費込)
を想定しています。
● TONARI GA KAWA 会員特典
1.カフェ利用料金の割引。
2.シェアラウンジ、カフェ+POPUPスペースの席のフリーアドレス利用。
3.wi-fiの利用。
4.遠隔ミーティング用ブースの利用。
5.カフェスペース、テラススペースを活用したPOPUP・展示・ワークショップ・イベント開催の権利(月1回、日程は要相談)。
6.POPUP・展示・ワークショップ・イベント開催時の空間演出やデザインのサポート。
7.出店屋台などの什器の貸し出し。
8.合同会社青芝のメンバーによるビジネスサポート。
その他利用者の要望に応じて今後追加改変予定です。
● まちのカフェ
相川に面したオープンスペースを週末カフェに。エスプレッソマシンによるコーヒー、オリジナルスパイスカレーなどのランチ、デザートなどを提供します。ゆくゆくは営業日を増やし、雇用を生み出していきたいとも考えています。

● イベント開催
月に1回以上のイベント開催。大人向けの講座や子ども向けのワークショップなど、老若男女に楽しみ役立てていただけるよう、ジャンルレスで幅広く企画していきます。地域の子どもたちにとって、新しい発想や経験を知ることで、将来「まちづくり」ができる基盤になることも期待しています。
● 公園・河川敷の利活用促進
近隣の市町村では、官民連携での公共空間の利活用が推進されています。 私たちも「TONARI GA KAWA」周辺に広がる河川敷や児童公園を活用したイベントや日常的な試みを、垂井町と協同で実験的に行っていく予定です。
● 小商い創業・兼業・副業支援
建築、デザイン、飲食店経営を生業にする我々5人。その力をフル活用し、新しい働き方に挑戦する皆様を全力でサポートします。
● ポップアップストア&ギャラリー
オープンスペースを期間限定のショップやギャラリーとして貸し出します。デザインされたテーブルや棚、キッチン設備の使用はもちろん、出店用の屋台も使用可能。公園や河川敷を活用した企画など、青芝のメンバーと利用者とで、ポップアップの可能性を限りなく広げます。
● 委託販売
スペース内に商品棚を設置し、委託販売を承ります。日常的に会員の方やその関係者が出入りし、カフェ営業日には不特定多数のお客様がおいでになる「TONARI GA KAWA 」。多くの人の目に触れる場の提供が叶います。
● シェアキッチンの活用
シェアラウンジには共用キッチン、オープンスペースにはカフェのキッチンを設えます。キッチンがあるからこそできるイベントや日常の取り組みもあるのではないでしょうか。フードロス対策や子ども食堂なども含め、利用者のご希望に我々のアイデアをプラスして、有効に活用したいと思っています。
--------------------------------------------------
BENEFIT 期待できること
● 心地よい働き方実現を支援
働き方改革やコロナ禍は、私たちに「働く」意味を再考させました。リモートワークやオンラインミーティングが定着し、副業やワーケーションが増大する中で、職住近接のメリットが広く知られるようになりました。その一方、自宅作業ではオンオフの切り替えが難しい、孤独感を感じる、労働環境が整わないなどのハードルも。「TONARI GA KAWA」の会員になることで、そのハードルを解消できるかもしれません。
● スタートアップを3段階で支援
スペース「TONARI GA KAWA」は、何かを始める人のファーストステップにうってつけの場所ではないでしょうか。「新しく始めたいけれど集客に適した場所がない」「出店コストがネック」などは、必ず最初に当たる壁ですが、「TONARI GA KAWA」の利用なら、グッドロケーションかつ低予算。作品発表、ワークショップ、テストマーケティングなどに最適です。
「TONARI GA KAWA 」はこの先、様々なスペース利用やイベント開催を通じて成長成熟してまいります。セカンドステップとして、「TONARI GA KAWA 」から広がるコミュニティをつなぐことにより、新たな価値やサービスの提供など、さらなる発展が可能となります。
さらに、持続可能なビジネスへの発展を希望される方には、ブランディングから店舗デザイン、メニュー開発、出店まで、我々だからこそできるサポートをいたします。
● コミュニティ形成
『同じ志をもつコミュニティで頼り頼られ生きること』――ハーバード大学が75年にわたり研究し続けている「人は何が幸せか」についての結論として発表されたものです。
私たちも、「TONARI GA KAWA」に集まるヒトのつながりが、新しい「モノ」や「コト」を生み出すことを期待しています。上記活動を地域住民や関係者と協同し行っていくことで、様々なコミュニティを形成し、地域の未来を担う土壌のような場所にしたいと考えています。
--------------------------------------------------
資金の使い道とスケジュール
集めた支援金は、スペースの運営費、カフェの準備費用として活用させていただきます。10月中にDIYでのインテリア工事を行い、11月にシェアスペースをオープン。カフェ部分はポップアップを含めたテスト営業を経て、1月に本オープン予定です。
--------------------------------------------------
メッセージ、最後に

いろいろ言葉を連ねましたが、想いはいたってシンプルです。
人を、地域を、未来を豊かに。
個々の活動の中で、地域やヒトのつながりによって広がった事業も多く、コミュニティの大切さを体感しています。そんな我々5人の経験が、未来に生きる若者の挑戦をサポートし、地域の将来を少しでも豊かにする一助となれば、こんなにうれしいことはありません。我々自身、このプロジェクトを楽しみ、さらに成長する自信もあります。ご支援のほど、よろしくお願いいたします!
会社概要
社名:合同会社青芝
本社所在地:岐阜県不破郡垂井町1101-4
設立:2022年10月
URL:https://tonarigakawa.com/
SNS:https://www.instagram.com/tonarigakawa/
このプレスリリースには、メディア関係者向けの情報があります
メディアユーザーログイン既に登録済みの方はこちら
メディアユーザー登録を行うと、企業担当者の連絡先や、イベント・記者会見の情報など様々な特記情報を閲覧できます。※内容はプレスリリースにより異なります。
すべての画像
- 種類
- 商品サービス
- ビジネスカテゴリ
- レストラン・ファストフード・居酒屋広告・宣伝・PR
- ダウンロード
