東京大学×住協グループ 共同研究を通じて100年人生対応型の次世代モデル住宅を建築

日本が世界に先駆けて突入している「人生100年時代」の社会は、少子高齢化、自然災害、世界的気候変動、新型コロナウイルス等の社会変動要因といった、様々な不安的要素に直面しています。そんな次世代を担う人々の、今後の100年人生を託せるような住宅とは、住宅地とはどのようなものでしょうか?
こうした社会的諸問題に対応しながらも、新たな世代の住宅ニーズには的確に応えていかなければなりません。こうした現実指向、かつ未来志向の動機をベースに、東京大学の研究チームが蓄積してきた叡智と、より快適で暮らしやすい住環境を日々模索してきた住協グループのノウハウのコラボレーションによって、次世代住宅・住宅地の開発に向けた共同研究に取り組んでいます。
【共同研究の概要】
これまでの古今東西で試みられてきた住宅・住宅地計画の叡智と、そこで住み続ける人々に対する長年にわたる調査研究から導かれてきたデータを駆使しながら、住協グループが有する、現実的課題解決力を結集しながら、100年の人生に対応できる居住空間と、地域の居住環境のモデル開発を行います。さらに、具体のプロジェクトを通してそのモデルの実装、実用化へと進んでいきます。
研究会の様子
大学院生3人によるプレゼンテーション
【モデル住宅誕生までの住協グループの取り組み】
毎月実施される研究会には、テーマに合わせて住協グループ内の様々な部門からスタッフが参加。人生100年時代に対応していくための勉強会や学生によるプレゼンテーション、先進的住宅地の視察、建物の設計、コンセプトワーク等、約1年にわたる取り組みを経てモデル住宅を建築することとなりました。

【モデル住宅のコンセプト】
人生100年時代の住まい。それは、めまぐるしい変化についていけるリダンタンシー(余裕)をもっておくこと。
ただ「住む」のではなく、時間の中で徐々に訪れる人生の変化に、ゆるやかに、そしてしたかかに対応できる「住まい」──それが「住みこなせる家」。
そして「住みこなせる家」が形づくる街は、美しいまちなみとともに、「住みこなせる街」としても展開するでしょう。

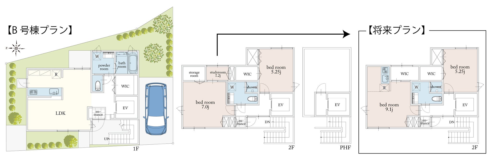
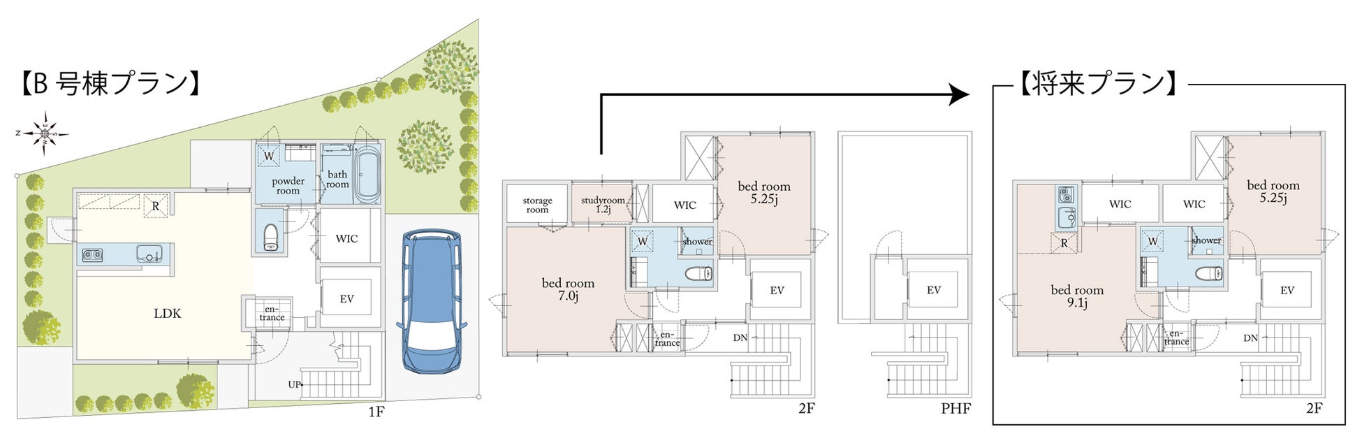
【モデル住宅の主な特徴】
●2階にアクセスできる外部階段を設けることで、ライフスタイルの変化に対応できるフレキシブルスタイル
(例:1階でカフェ経営、2階を居住スペースにする。または、子どもが成長して家を離れたら、2階を賃貸して活用する等)
●突き出した塔屋で統一された外観はランドマーク的な存在感を与え、豊かな街並みを創出。
●2階を賃貸として活用することで空家対策に、二世帯住宅として活用することでコミュニティの若返りにもつながります。
●2階部分には専用の洗面化粧台、シャワー室を備えており、キッチンを設置するための配管も用意し、将来の変化に柔軟に対応できるように設計。
●高齢化時代に対応できるホームエレベーター設置棟を用意。室内階段がないため遮音性にも優れています。
●低層地域における屋上テラスの設置によって、見晴らしの良い眺望を確保。またベランピングやBBQ等、様々なアクティビティが期待できます。
◇モデル住宅 概要◇
・建物種別:新築住宅 ・所在地 : 東京都練馬区大泉町1丁目 ・構造:木造2階建 ・建物面積:各棟90㎡前後
・竣工予定: 2023年6月頃 ・特設サイト https://www.jyu-g.co.jp/contents/todai/
【大月敏雄教授よりコメント】
今の日本は『不安定社会』という言葉がぴったり。この研究の趣旨は、こうした漠然とした不安を解消するために「住宅が、そしてゆくゆくは町が本来備えるべき要件や要素を、きちんと盛り込もう」という、単純だけど骨太なことです。将来に対して、なかなか安定したイメージが想い描けない中、せめて住まいとその周辺の環境は「しっかり将来に備えよう」というコンセプトです。
【齋藤隆太郎客員研究員よりコメント】
エンドユーザーは「耐震等級」や「省エネ等級」といった目に見える定量的価値観のほか、家を買う「瞬間」に意識が行きがちです。しかし、本来家とは、数十年住み続ける場所であり、建築技術の進歩が目覚ましい昨今で、100年のライフステージを考える必要があるのではないでしょうか。そして今求められる家の価値は「使いこなす、住みこなす」といった、より定性的な領域へパラダイムシフトしています。
【東京大学 × 住協グループ 共同研究概要】
〇研究題目:次世代住宅・住宅地開発研究
〇研究期間:2022.1~未定
〇研究目的
人生100年社会、災害多発社会、高度多様化社会、低炭素社会、高度情報化社会、アフターコロナ社会、
高度モビリティ社会、シェア経済社会に対応するモデル住宅・モデル住宅地の開発
(1)100年人生対応型次世代住宅・住宅地モデルの検討(計画手法検討・制度対応検討・計画原則提案)
(2)モデルガイドライン策定 (3)モデル実装・実用化
【静岡県・福島県の先進的住宅地視察の様子】




【主要共同研究メンバー】

左: 大月 敏雄(博士(工)・ 一級建築士)/東京大学大学院工学系研究科建築学専攻 教授、
東京大学高齢社会総合研究機構 副機構長、復興デザイン研究体 特任教授
左中:齋藤 隆太郎(博士(工)・ 一級建築士)/東京大学高齢社会総合研究機構 客員研究員、
東北工業大学 専任講師、株式会社 DOG 一級建築士事務所 主宰
右中:田代 紀昭/株式会社住協 取締役、株式会社住協川越支店 支店長
右:宇野 健一/株式会社住協 取締役
【株式会社住協 会社概要】
社 名: 株式会社住協
所在地: 埼玉県所沢市小手指町1-1-4
代表者: 代表取締役 安永 久人
設立 : 1979年4月19日
埼玉県西部~東京の武蔵野エリアを中心に、不動産流通事業、住宅建築事業を行う総合不動産会社。大規模分譲地・マンションやホテルのデベロッパー(事業主・売主)としても広く事業を展開。
◇コーポレートサイト
http://www.jyukyo.com/
◇住協グループの住まい情報
https://www.jyu-g.co.jp/
◇住協グループ
http://www.j-group-h.com/
◇Youtube(住協チャンネル)
https://www.youtube.com/@jyukyochannel
◇Instagram(住協グループオフィシャル)
https://www.instagram.com/jyukyo_group_official/
◇Twitter(住協グループオフィシャル)
https://twitter.com/jyukyo_group
このプレスリリースには、メディア関係者向けの情報があります
メディアユーザー登録を行うと、企業担当者の連絡先や、イベント・記者会見の情報など様々な特記情報を閲覧できます。※内容はプレスリリースにより異なります。
すべての画像
