岐阜県各務原市に公共施設の民間活用による新たな賑わい拠点「TOUAMACHI KAIKAN」をオープンします!
那加公園エリアに公共施設を活用した複合施設が誕生。ショップやホールが入居予定。
岐阜県各務原市の都市再生推進法人に指定されている株式会社OUR FAVORITE CAPITAL(岐阜県各務原市那加栄町15 番地1)は、市の産業会館として使われていた「各務原市東亜町会館」の建物を活用し、まちに新たな賑わいを創出する複合施設「TOUAMACHI KAIKAN」をオープンします。
2023年3月に実施された各務原市東亜町会館活用に関する公募型プロポーザルで株式会社OUR FAVORITE CAPITALが選定され、同年7月に各務原市と10年間の市有財産貸付契約を締結し、2024年夏のオープンに向けて計画が進んでいます。
■公共施設をリノベーションし、まちの賑わい創出の拠点に

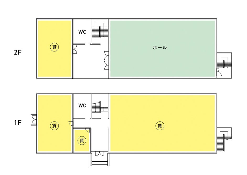
各務原市民公園から徒歩5分の場所にある市の産業会館である各務原市東亜町会館。元々1階はシルバー人材センターやハローワーク、2階は市民の人々が利用するホールとして使われていましたが、施設に入居していた団体の移転や建物の老朽化により、令和4年度で施設の貸し出しが終了しました。今回のプロジェクトではこの建物を活用し、まちの賑わいを創出する新たな複合施設「TOUAMACHI KAIKAN」に生まれ変わります。

1Fと2Fの西側には複数のショップが入居し、2Fの東側では様々なイベントを行うホールを運営します。ホールでは音楽ライブ、マルシェ、トークイベント、展示会などを行うほか、イベントスペースとして貸し出しを行い、地域内外の方が利用できるようになります。
■KAKAMIGAHARA A to Z PROJECT
KAKAMIGAHARA A to Z PROJECTとは、まちにA からZ まで、26 個のコンテンツをつくる株式会社OUR FAVORITE CAPITALと各務原市の協働事業。那加公園エリアを中心に生まれるコンテンツ同士の関連性を見せることによって、まちの回遊性の向上を目指しています。

2022年に「A=Around(周辺)」に指定された「OUR食堂」に続き、TOUAMACHI KAIKANは「B=Base(拠点)」になります。
TOUAMACHI KAIKANを目的に訪れた人々がまちなかのお店やイベントへ足を運んだり、ホールでのイベントに出店した方や1階や2階のテナントへ入居した方々が今後まちなかエリアに開業するなど、ここに新たな賑わいを生み、それを那加公園エリア全体へと広げていくための“拠点”という意味が込められています。
■ローカルクラウドファンディング「OCOS」にてクラウドファンディング実施中

TOUAMACHI KAIKANの改装費を集めるため、岐阜・愛知のローカルクラウドファンディング「OCOS」にてプロジェクトを開始しました。7月25日(木)まで実施中です。
◯クラウドファンディングサイトはこちら:https://www.oco-s.jp/project/touamachikaikan
■岐阜県各務原市「那加公園エリア」について
岐阜県各務原市西部に位置する「那加公園エリア」は「各務原市民公園」「学びの森」という2つの都市公園と、その周辺に広がるまちなかエリアを指します。


2つの公園には毎年11月3日に開催される「マーケット日和」を中心に市内外から多くの人々が集まる一方で、まちなかエリアは歩行者が少なく、店舗開業の出店場所としても選ばれにくいのが現状。日常的な賑わいの創出が課題となっています。
そこで那加公園エリアに新たな賑わいを生み出すため、「TOUAMACHI KAIKAN」プロジェクトが始動しました。
■令和6年度から各務原市とともに「まちなかウォーカブル推進事業」を開始
まちなかウォーカブル推進事業は「居心地が良く歩きたくなる」まちなかづくりの推進を目的として、国土交通省により令和2年度に新設された事業であり、岐阜県内での活用は各務原市が初となります。
市による公共空間の整備と連携して株式会社OUR FAVORITE CAPITALでもウォーカブル推進計画を作成し、まちなかの回遊性を高めるための社会実験や空き店舗を活用した社会実験など、まちづくりのための施策を進めていきます。このように市区町村と民間事業者が同時にまちなかウォーカブル推進事業に取り組むことは全国的にもまだ事例が少なく、珍しいケースです。
■那加from Park構想について
各務原市のまちなかウォーカブル推進事業では、「公園の賑わいをまちなかへ」というコンセプトのもと「那加from Park構想」を掲げ、各務原市や地域のプレイヤーと協働しさまざまな取り組みを仕掛け始めています。

構想の核となるのは、エリア内の重要なポイントに位置する5つの拠点。駅前で市内外の人々を迎える“まちの玄関口”、まちに関りたい人が集う宿泊施設/シェアハウスなど、それぞれの拠点が役割をもち、まちにさらなる魅力を生み出していきます。
【TOUAMACHI KAIKAN】
〒504-0022 岐阜県各務原市那加東亜町106
JR高山線 那加駅より徒歩3分、名鉄各務原線 市民公園前駅より徒歩6分
駐車場:約50台
【本件に関するお問合せ先】
株式会社OUR FAVORITE CAPITAL
TEL:058-214-2444
MAIL:design@licrce.com

株式会社OUR FAVORITE CAPITAL
各務原市に本社を置くデザイン会社・株式会社リトルクリエイティブセンターと株式会社十六銀行により創設された、これからの地域社会と新しい経済を考えるオルタナティブなまちづくり会社。実験的投資や新規事業を通して、地域に楽しい経済を生み出します。プレイヤーと地域を結びつけ、新規出店や起業を促し、このエリアに新しい経済圏をつくることで地域の魅力を向上させることを目指しています。2022年10月31日に各務原市より、まちづくりの新たな担い手として行政の補完的機能を担い得る団体「都市再生推進法人」(第一号)に指定され、官民連携でまちづくりに取り組んでいます。
すべての画像
