淡路島、洲本市の湖畔に立地するNEWグランピング施設OPEN
ととのう、自然 MOUNT LAKE re:sort (マウントレイク リ・ソート) アートなデザイン建築のグランピング施設 koko(湖々)に続きkiki(木々)がオープンしました。
香川県東かがわ市の手袋メーカー 株式会社イチーナ (代表取締役 市場 浩 香川県東かがわ市三本松1023-5)は、この度、淡路島のMOUNT LAKEキャンプ場内に2棟目の新たなグランピング施設、MOUNT LAKE re:sort (マウント リ・ソート)kiki(兵庫県洲本市五色町鮎原中邑167番地)をオープンいたしました。 森林浴のグランピングをお楽しみいただけるアートなデザイン建築であり、屋上から湖や淡路島の田園風景を眺望できます。また宿泊者様専用のサウナもあります。



MOUNT LAKE re:sort kiki(マウントレイク リ・ソート キキ)木々に囲まれた場所、木々、きき、kikiと名付けました。穏やかに流れる湖の音や爽やかな樹木に包まれながらゆっくりと心と体を委ねる時間をお楽しみいただけます。
MOUNT LAKE re:sort koko(マウントレイク リ・ソート ココ) 湖畔、湖々、ここ、kokoと名付けました。re:は再び、リセットを意味し、sortは並べる、整えるを意味し、二つをあわせてre:sort(ととのう·理想)を示しています。



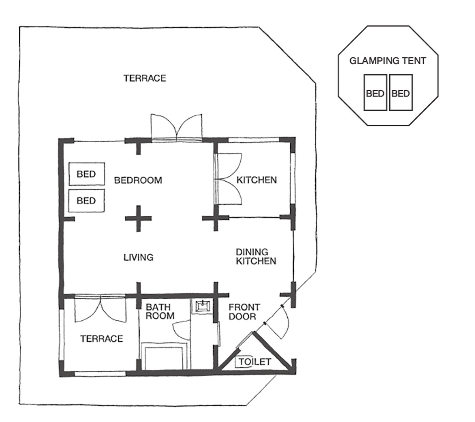
kiki 施設面積 130㎡(テラス含む)

●ダイニング(キッチン付き)1部屋 [広さ]8㎡ ●リビングルーム 2部屋 [広さ]15㎡ ●ベッドルーム 2部屋 [広さ]15㎡ ●浴室・洗面 [広さ]8㎡ ●テラス [広さ]50 ㎡ ●テント [広さ]20 ㎡ ●ガゼボ(雨よけ) [広さ]9㎡ ●共有サウナ [広さ]8㎡
エアコン(冷暖房)、Wi-Fi、テレビ、ソファー、2ベッド、シンク、IHコンロ、冷蔵庫、電子オーブンレンジ、トースター、ケトル、調理器具、食器、炊飯器、ドライヤー
市場 浩 総合プロデュース

株式会社イチーナ代表取締役 スマートフォンの普及の少ない2010年にスマートフォン対応手袋ピタクロタッチを販売しNHKニュース9、TBSがっちりマンデーなど各メディアに取り上げられスマートフォン対応手袋のパイオニアとして業界に旋風を巻き起こす。 今回、新たにMOUNT LAKE re:sortプロジェクトを立ち上げる。
小川 博央 設計

小川博央建築都市設計事務所、代表取締役一級建築士 隈研吾建築都市設計事務所、同事務所主任技師を経て小川博央建築都市設計事務所設立。世界の若手建築家10人の1人に選ばれ国内外で活躍。
村上 モリロー ロゴマークデザイン

株式会社人生は上々だ代表 クリエイティブディレクター、アートデザイナー。 「クリエイティブ開国宣言」と「志主義」を掲げ、ブランディングデザインとPR基点のコミュニケーションを軸に企業の課題から社会問題、地域資源活用や伝統工芸の再生まで、手がける領域は多岐にわたる。
佐々木 祐紀 料理プロデュース

イタリアンレストラン「sanu」代表 2021年東かがわ市でイタリアンレストラン「sanu」を独立開業。 東京2020オリンピック選手村で料理人として活躍。・和洋中各ジャンルの料理世界大会、日本代表選考セミファイナリストに選ばれる。 G7広島サミット2023にて主任シェフとして料理を提供。
草野 信明 クリエイティブプロデュース

株式会社クレアツォーネ代表取締役 無印良品のマーチャンダイジングを担当。2006年に独立し、(株)クレアツォーネを設立。2007年よりジェトロの輸出有望案件支援事業の専門家として活躍中。多数の企業の海外進出を支援。インテリアライフスタイルブランドThinKniTをプロデュース。
三田 直樹 クラフト温泉プロデュース

株式会社Le Furo代表 2013年 株式会社Le Furo設立。東京西麻布で温泉開発拠点ルフロ西麻布LABをスタート「日本の湯治を 世界TOJIに」を掲げグローバルに展開。アクアイグニス淡路島他、全国の温泉施設と提携。

お問い合わせは
株式会社イチーナ MOUNT LAKE re:sort 市場有華(いちばゆか) TEL:080-1991-6168
URL:https://mount-lake.com/re-sort/
MAIL:re-sort@mount-lake.com
すべての画像
