海の見えるワーケーションハウス「U(ユー)」小田原市根府川に6月1日オープンします
株式会社文祥堂(本社:東京都中央区、代表取締役社長:佐藤義則)は、昨年より企画・準備してまいりましたワーケーション施設を、2022年6月1日(水)にオープンします。
プロジェクトの経緯は、過去のプレスリリースをご覧ください。
〇プロジェクト発足に関して:
https://prtimes.jp/main/html/rd/p/000000006.000060979.html
〇土地建物の契約締結に関して:
https://prtimes.jp/main/html/rd/p/000000003.000084408.html
プロジェクトの経緯は、過去のプレスリリースをご覧ください。
〇プロジェクト発足に関して:
https://prtimes.jp/main/html/rd/p/000000006.000060979.html
〇土地建物の契約締結に関して:
https://prtimes.jp/main/html/rd/p/000000003.000084408.html
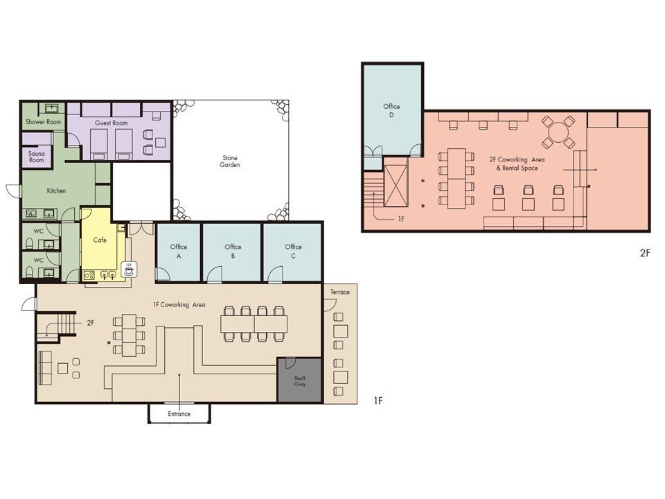
1. 施設概要
施設は築70年近くたつ木造の建物で、平成31年まで小田原市の支所として使われていました。
リニューアルにあたり、伝統的な技術を用いた「新旧の融合」や、地元の建材を取り入れた「つながり」、居心地のよい「ゆったり感」、そして歴史ある建物の雰囲気やノスタルジーを感じる空気感を大切にしました。
【外観】

・建築当時から変わらない、白い壁と赤い屋根の外観
地域の方々に愛された旧片浦支所の外観はほぼそのまま残し、変わらぬ佇まいで人々と迎えます。
・外と繋がるテラス席
新設のウッドデッキでは、のんびりと飲み物と景色を楽しんだり、外の空気でリフレッシュしながら仕事をしたりすることもできます。
【1F】

・“魅せる”構造補強
釘を使わずに組み上げた筋交装飾は、地元の宮大工による伝統技術。歴史ある建物が、伝統的な技術で新たに補強される、新旧が融合した空間に。
【ゲストルーム】

・大きな窓から見える海と庭
窓から海を見渡せるほか、面した窓からも出ることのできる庭には地元・根府川で採れる貴重な根府川石を使用。
・端材を活用したアートワーク
工事中に出た端材を使った、木の暖かさを感じるアートで壁を飾りました。
【2F】

・白を基調とした開放的な空間
古い梁がむき出しになった高い天井とゆとりのあるソファや椅子で、特別な時間を。3面の窓からたっぷりと光が差し込む、明るい空間に仕上げました。
・空と海を堪能できる小上がり
小上がりに置かれたテーブルは特注品。窓の外の景色が映り込み、作業中でも手元で空を眺めることができます。
ここで紹介したスペースのほかにも、様々なこだわりが満載です。ぜひ直接Uで体感してください。
【フロア構成】

・コワーキングエリア
仕事ができるWi-Fiや電源完備の席があるのはもちろん、置いてある本を読んだり、普段はなかなか取れない、ぼーっとした時間を過ごす場所としても最適。レンタルスペースとして、各種イベントや研修が開催できます。
・レンタルオフィス
小さいながらも雰囲気の良い個室がレンタルオフィスとして使えます。
・カフェ
オリジナルブレンドコーヒーや手作りのお菓子が楽しめます。
・キッチン
持ち込んだ食材で、手作りご飯。調理器具や食器は備え付けのものが使えます。
・ゲストルーム(宿泊)
1組限定で宿泊でき、地元小田原の食材を使った食事を選べます。
<住所>
神奈川県小田原市根府川77-1
<アクセス>

☆公共交通機関
JR東日本東海道本線 根府川駅から 徒歩約2分
東京駅~根府川駅 普通列車 約1時間半
新幹線 約60分
※小田原駅における平均乗換待機時間含む
☆自動車
西湘バイパス石橋ICから 約7分
2.施設利用予約・申込に関して
【法人月額会員、個人月額会員、ドロップイン利用など】
5月下旬ごろより、WEBサイト上での会員登録、6月1日以降の予約を受け付ける予定です。
お楽しみにお待ちください。
【レンタルオフィス申し込みに関して】
レンタルオフィスは、月額会員登録者のオプションサービスとしてお申込みいただけます。
詳しくは問い合わせください。
▼問い合わせフォーム▼
https://village.bunshodo.co.jp/odawara-q
3.オープン情報やイベント情報はこちらから!
【WEBサイトオープン】
UのWEBサイトがオープンしました!
6月にはさらにコンテンツを追加し、パワーアップする予定です。
▼URLはこちら▼
https://u-odawara.com/
【公式SNSオープン】
Facebook、InstagramでUの公式SNSがスタートしました。
今後、最新情報やイベント情報を発信していきますので、ぜひフォローをお願いします!
▼Facebook▼
https://www.facebook.com/u.odawara
▼Instagram▼
https://www.instagram.com/u_odawara/
◇施設名称「U(ユー)」に込めた想い
ワーケーションとは、「ワーク」「ライフ」など日々の使い方を分けていくのではなく、それらを総合して一人一人の「人生」がより良くなるためのライフスタイルの一つであると私たちは考えました。
「U」という名称は、良いものが集まり、また集まったもの同士を繋ぐ場でありたいという意味をこめて、数学の「集合」の考え方から取りました。
Uは、良いものをつなげる役割(和集合記号、∪)であり、より良い人生への手助けとなるような様々な良いものが集まる場所(全体集合、Universal set)です。
このプレスリリースには、メディア関係者向けの情報があります
メディアユーザーログイン既に登録済みの方はこちら
メディアユーザー登録を行うと、企業担当者の連絡先や、イベント・記者会見の情報など様々な特記情報を閲覧できます。※内容はプレスリリースにより異なります。
すべての画像
