新しいプランが誕生!あなたの “好き” で、好きな暮らしをデザインするお家「NONDESIGN」狭小住宅リリース
住む人が自分を自由に表現できる規格住宅、毎月新プラン発表!
住宅のこれまでのスタンダードとは違う価値を提案する「UNSTANDARD(アンスタンダード)」(運営会社 / 株式会社LIFE QUARTET:三重県)は「モノとしての家ではなく、毎日を楽しむ“場”」の思想を体現する規格住宅「NONDESIGN」の新プランを 8ヵ月間、毎月発表!今回は、2023年3月にオリジナル規格住宅「NONDESIGN」の新プラン「NONDESIGN SLIM(ノンデザイン スリム)」をリリース。
- 自分の「好き」でデザインする「NONDESIGN」
- NONDESIGN SLIM プロダクト概要

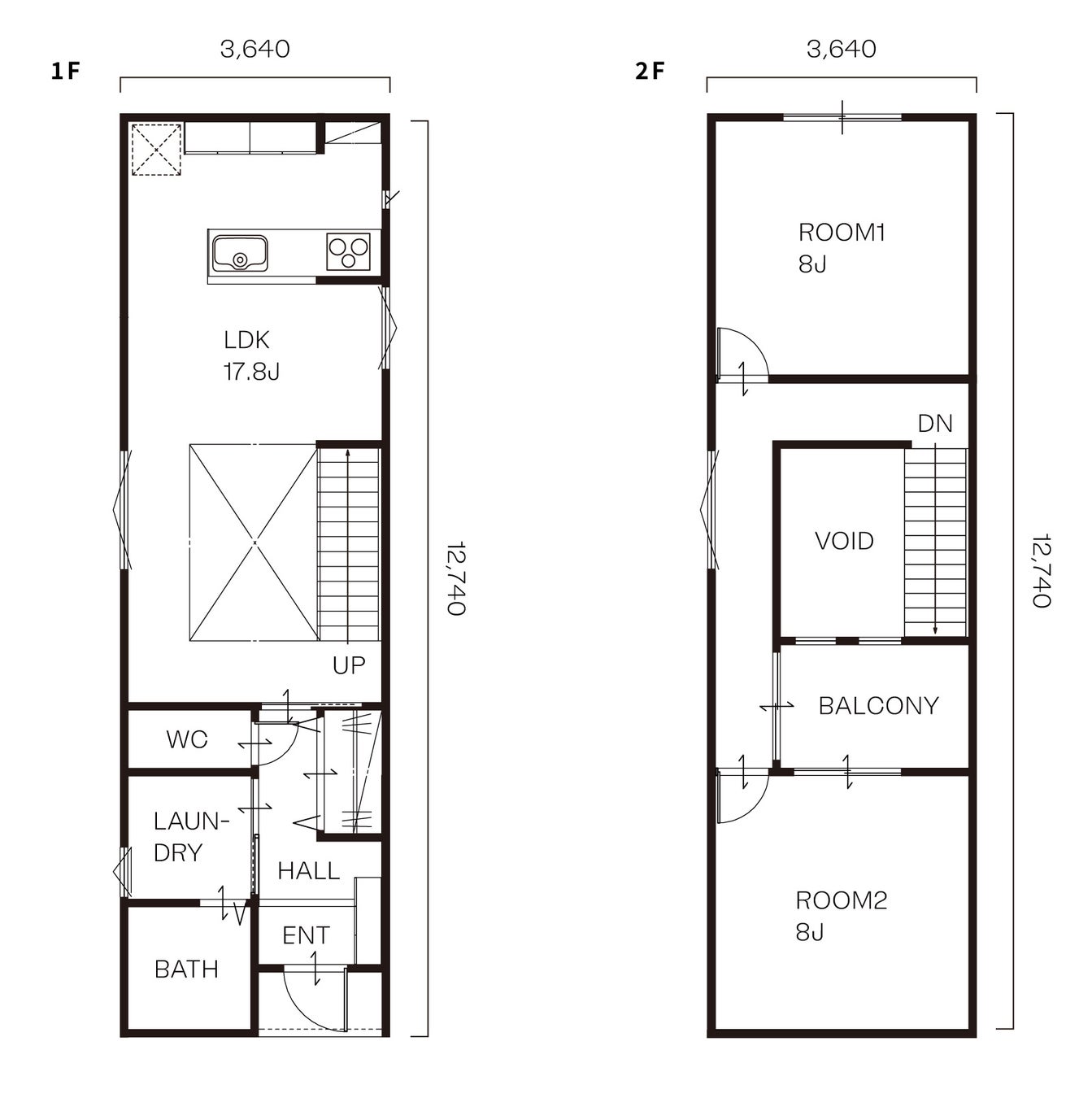
狭苦しさを感じさせない吹き抜けのあるリビング階段、陽当たりも意識した窓で部屋全体明るく風通しの良い空間に。狭小地で難点となりがちな採光性の課題をクリア。

縦につなげたLDKは無駄を省き、必要な分だけコンパクトにまとめた間取り。
どんな家具の配置でも居心地の良いリビングに食卓が見渡せるキッチン。家族でくつろぐスペースで一体感を感じやすく、空間を広々と使うことができる。

インテリアを自分の世界観でレイアウトできる要素がこの家にはたくさん詰まっている。
シンプルな構造だからこそ、模様替えもスムーズでワクワクが尽きない。

間口の狭い敷地は道路に接している面が少なく、プライバシーが守られやすいこともメリット。
外壁は内装とあわせたインスピレーションが沸くような、住む人の好みで自由に選べる。
好きな色をチョイスして、部屋のインテリアを楽しむ延長線で、外壁もお気に入りのアイテムで飾りたい。
外から見える佇まいをデザインできる。
<フロアプラン>

延床面積 / 81.14㎡ (24.54坪)
1F 床面積 / 44.71㎡ (13.52坪)
2F 床面積 / 36.43㎡ (11.02坪)
<プロダクトコピー>
あなたの“好き”で、好きな暮らしをデザインするお家。
自分らしいライフスタイルを楽しむなら、デザインされた家よりも、自分たちの “好き” で、
デザインしていけるNONDESIGNな家がいい。
例えば、Tシャツのタグの位置や色がちがうだけでデザインを楽しめるように、
ワンポイントでも “好き” なアクセントを足せば、そこはあなただけの、あなたらしい家になる。
NONDESIGNは、あなたの “好き” なライフスタイルが加わってデザインが完成する家。
お気に入りの暮らしと“好き”があふれる空間で、毎日をもっともっとカラフルに。
<プロダクトサイト>
NONDESIGN
https://unstandard.jp/nondesign
----------------------------------------
暮らしに対するデザインを提供するオウンドメディア
「UNSTANDARD MEDIA」はこちら
https://unstandard.jp/media01
「LIFE IS COLORFUL.」をテーマにライフスタイルや暮らし方を提案。ユーザーにとっての自分らしく人生
を楽しむ “場” について参考になる事例、アイデアなどを提供しライフスタイルへの関心が強いユーザー
が集うプラットフォームを目指しています。
【LIFE QUARTET】について
LIFE QUARTETは住宅ブランド「UNSTANDARD」の規格住宅ネットワークを運営。私たちと同じ視点で家づくりをする全国のパートナーと一緒に、今までの住宅業界の常識に捉われず、家を建てたその先も家が人生を楽しむ場所であるように、ユーザー視点での家づくりを提案しています。
URL:https://lifequartet.jp
UNSTANDARDは、NONDESIGNを筆頭に規格住宅を展開する規格住宅ネットワークです。新築事業が初めてでも安心してスタートできる。充実したサポートシステム。まずはご相談ください。
URL:https://unstandard.jp/contact/?genre=genre01
このプレスリリースには、メディア関係者向けの情報があります
メディアユーザーログイン既に登録済みの方はこちら
メディアユーザー登録を行うと、企業担当者の連絡先や、イベント・記者会見の情報など様々な特記情報を閲覧できます。※内容はプレスリリースにより異なります。
すべての画像
