SAUNaiDEA(サウナイデア)が『Well-Blend蒲田』に併設されるサウナ『SAUNA BESTA』の設計・監修を行いました。
暮らしを豊かにするサウナを企画・提案するSAUNaiDEA(サウナイデア)(本社:東京都新宿区、代表:島田大輔)は多機能交流型賃貸住宅『Well-Blend蒲田』に併設されるサウナ『SAUNA BESTA』の設計・監修を行いました。
株式会社リビタ(本社:東京都目黒区、代表取締役社長:長谷川 和憲 、以下「リビタ」)が『Well-Blend蒲田』の運営を行い、2階に併設されるパーソナルジムおよびサウナはRILISIST株式会社(本社:東京都渋谷区、代表取締役:黄皓、読み:リリシスト、 以下「RILISIST」)が運営を行います。
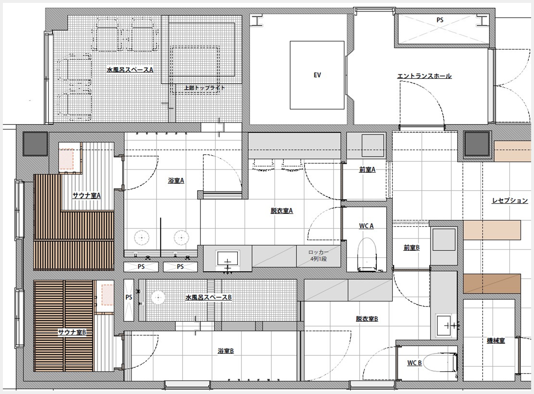
自分自身に没入できるサウナ空間を提供することにより、『Well-Blend蒲田』のコンセプトである「”深める”暮らし」をサウナを通じて提供します。
■『Well-Blend蒲田』について
URL:https://wellblend.jp/kamata/


■全体のコンセプト
”整う”ことに没入できる空間としました。脱衣室と浴室・サウナ室を明確に分けるのではなく、全体を一体的な空間とすることにより、脱衣室に入った瞬間から自分自身に意識を集中できるしつらえになっています。
■サウナ室へのこだわり
壁とベンチをグレー塗装で統一し、全体をモノトーンな空間とすることで、より一層没入感を高めたサウナ室としました。ベンチは奥行きを十分に広くとり、あぐらをかいたり、寝転んだり様々な体勢で利用できるようにしています。
■水風呂・外気浴へのこだわり
床・壁・浴槽を全て同じブルー系タイル仕上げとし、空間が全身を包み込むような水風呂スペースとしました。
他の空間と色を変えた空間とすることで、サウナ室から水風呂への意識の切り替えを促す計画としています。
■サウナに関するお問い合わせ・ご相談はこちら
info@saunaidea.tokyo
■株式会社リビタについて
社会、くらしをリノベーションし、あなたと環境にとって豊かな未来をつくる会社として設立。「次の不動産の常識をつくり続ける」を経営ビジョンに掲げ、一棟、一戸単位のマンションや戸建てのリノベーション分譲事業やリノベーションコンサルティング事業、投資事業、シェア型賃貸住宅や商業施設、公共施設の企画・運営、PM・サブリース事業、ホテル事業、オフィス事業を手がけています。
現在、一棟まるごとリノベーション事業の企画・分譲供給実績は55棟1,670戸、また『シェアプレイス』シリーズをはじめとするシェア型賃貸住宅は、都内近郊に19棟1,201室を運営中。リノベーション分譲事業では、100平米超の面積を有し、立地と資産価値にこだわったマンションを紹介する『R100 tokyo』をはじめ、一戸単位のマンションリノベーションの企画・供給実績は1,097戸。その他、東京内神田のシェア型複合施設『the C』、大人の部活がうまれる街のシェアスペース『BUKATSUDO』など、暮らしの概念を「働く」「遊ぶ」「学ぶ」などにも領域を広げたプロジェクトの企画・プロデュース・運営も多く手がけています。2016年3月にはホテル事業を開始、全国で『THE SHARE HOTELS』を9店舗展開。また、2021年よりオフィス事業を本格化し、暮らしを自由にするオフィス『12』シリーズを展開(2022年3月時点)。

名称:株式会社リビタ
設立:2005 年(2012年より京王グループ)
代表取締役社長:長谷川 和憲
住所:東京都目黒区三田 1-12-23 MT2ビル[中田1]
URL:https://www.rebita.co.jp
■RILISIST株式会社について
2階店舗運営・企画パートナー

BESTAは「Be a star(自分らしく輝く星になる)」という想いを込め、2016年に一号店がオープン。月額32,780円でトレーナーとマンツーマンの本格的なパーソナルトレーニングとセルフエステが通い放題で受けられるサービス『KARADA BESTA』を展開しています。 URL:https://besta.tokyo/
<代表取締役・黄 皓について>
早稲田大学卒業後、三菱商事株式会社へ入社。トレーディング業務に従事し、メキシコでの海外駐在も経て退社。その後、家業で国際物流の事業を経営しながら、RILISIST株式会社を設立し、2020年にはミラーフィット株式会社を設立。自社開発のスマートミラーデバイス『MIRROR FIT.』を通して、プロのトレーナーによる本格的なトレーニングをいつでも自宅で体験可能にする、新しい形のオンラインフィットネス事業を展開。
■株式会社トラフ建築設計事務所について
意匠設計・監修
鈴野 浩一(すずの こういち)と禿 真哉(かむろ しんや)により2004年設立。建築の設計をはじめ、インテリア、展覧会の会場構成、プロダクトデザイン、空間インスタレーションやムービー制作への参加など多岐に渡り、建築的な思考をベースに取り組んでいます。主な作品に『テンプレート イン クラスカ』『NIKE 1LOVE』『港北の住宅』があります。

■サウナイデア株式会社について
サウナ設計監修
サウナを愛する建築家たちで構成されたサウナデザインカンパニー。暖まる場所としてのサウナを提供するだけではなく、コミュニケーションの醸成や自分と向き合える場としてのサウナ空間を企画・設計しています。安心安全かつ、多くの方に心から愉しんで頂き入りたくなるサウナを本気で考え、創り上げることで皆さまの暮らしに豊かさをお届けしています。

【会社概要】
社名:サウナイデア株式会社
本社所在地:東京都新宿区下落合3-20-16 151A 1A
代表取締役:島田大輔
事業内容:サウナの設計、サウナ設置、コーディネート、サウナプロダクトの企画・製品化、サウナイベント企画、サウナ製作コンサルティング
HP:https://saunaidea.tokyo/
お問い合わせ:info@saunaidea.tokyo
すべての画像
