新しいプランが誕生!あなたの “好き” で、好きな暮らしをデザインするお家「NONDESIGN」サウナ付き住宅リリース
住む人が自分を自由に表現できる規格住宅、毎月新プラン発表!

自分の “好き” でデザインする「NONDESIGN」
NONDESIGNはその名の通り「デザインしない家」。これまでの住宅が提案してきたのは、構造や機能に重点を置いた「モノ」としての家。もちろんそれは安心して暮らすためには大切なこと。SNSが生活の一部になりファッションもグルメもボタン1つで手に入る。そんな自分の “好き” に囲まれた暮らしはもはや当たり前。だったら家はどうだろうか。「家は毎日を楽しむ場所」 それぞれの人生を、思いのままに表現できる自由な家をつくりたい。自分の “好き” を詰め込んで、毎日を自分らしくデザインする。そんなイメージから、NONDESIGNは生まれました。
NONDESIGN SAUNA プロダクト概要
サウナのあり方はパブリックからパーソナルへ
年々サウナブームと共に個々のニーズやライフスタイルが多様化し、より自由により気軽にサウナを楽しめる環境が求められるようになってきた。ブームの背景としては、コロナ禍やデジタル社会による情報過多で疲れた人々がサウナでリラックスすること。2019年にはテレビ東京のドラマ『サ道』が配信されるなど、“ととのう”という言葉が世に浸透していった。これまでのサウナは温泉やホテル、トレーニング施設に併設されている「パブリック(公共の)サウナ」が一般的。しかし、自宅サウナのメリットといったらやはり、好きな時に好きなだけ⼊れること。温度・明るさ・⾳楽・⽔⾵呂を⾃分好みに変更でき、もちろん周りのマナーを気にせずに自分好みにサウナを楽しむことができる。そんなサウナの楽しみ方を最大限に活かしたサウナ付き規格住宅が「NONDESIGN SAUNA」だ。
家族がこころからくつろげる、なにげない暮らしが楽しくなる。
五感を満たす、“こころ” と “からだ”をととのえる家。
心地良く快適に過ごせるようサウナルームは完全プライベートな空間に。ととのうための動線もよく、濡れることも気にせず日常にサウナのある生活が楽しめる。生活空間の広さはそのままに、家族がこころからくつろげるワンランク上の暮らしを実現。+Bathプランでは、外へとつながるBath courtがあり、外気浴まで満喫できる。家族の住まい方を考え、リラックスできることを最大限に追求した、“こころ” と “からだ”をととのえる家。

無駄を削ぎ落としたシンプルな外観。
吹き抜けに面しているので、1階からの声も届きやすく、家族との繋がりを感じやすい。
趣味の部屋やワークスペースなど、どう使うかはあなた次第。

こっくりとした木目が、空間に深みを出してくれるリビング。
日差しが優しく注ぎ、日々の暮らしをととのえてくれる、柔らかさもある憩いの空間。

リビングへと続く広がりのある土間。
ゆるく間仕切りながらも、1つの空間としてのオブジェやアート、植物などを飾りアトリエのように楽しめる。

周囲を気にせずに楽しめるプライベートサウナ。
日々の疲れを癒す、非日常感あふれる安らぎ空間で、自分らしく心穏やかになれる場所。
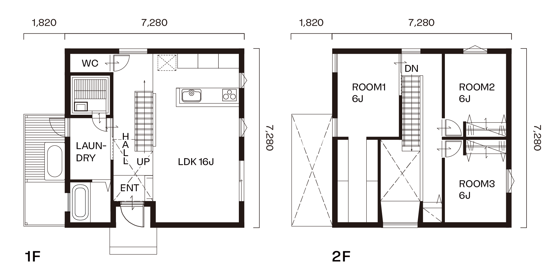
<フロアプラン>
▼NONDESIGN SAUNA / 本体価格1,980万円(税込価格 / 2,178万円)

延床面積 / 99.57㎡(30.12坪)
1F床面積 / 51.34㎡(15.53坪)
2F床面積 / 48.23㎡(14.59坪)
▼NONDESIGN SAUNA+PLUS Bath / 本体価格2,280万円(税込価格 / 2,508万円)

延床面積 / 99.57㎡(30.12坪)
1F床面積 / 51.34㎡(15.53坪)
2F床面積 / 48.23㎡(14.59坪)
<プロダクトコピー>
あなたの“好き”で、好きな暮らしをデザインするお家。
自分らしいライフスタイルを楽しむなら、デザインされた家よりも、自分たちの “好き” で、
デザインしていけるNONDESIGNな家がいい。
例えば、Tシャツのタグの位置や色がちがうだけでデザインを楽しめるように、
ワンポイントでも “好き” なアクセントを足せば、そこはあなただけの、あなたらしい家になる。
NONDESIGNは、あなたの “好き” なライフスタイルが加わってデザインが完成する家。
お気に入りの暮らしと“好き”があふれる空間で、毎日をもっともっとカラフルに。
<プロダクトサイト>
▼NONDESIGNはこちら
URL:https://unstandard.jp/nondesign
UNSTANDARDは、NONDESIGNを筆頭に規格住宅を展開する規格住宅ネットワークです。新築事業が初めてでも安心してスタートできる。充実したサポートシステム。まずはご相談ください。
URL:https://unstandard.jp/contact/?genre=genre01
▼UNSTANDARD MEDIAはこちら
URL:https://unstandard.jp/media
「LIFE IS COLORFUL.」をテーマにライフスタイルや暮らし方を提案。ユーザーにとっての自分らしく人生
を楽しむ “場” について参考になる事例、アイデアなどを提供しライフスタイルへの関心が強いユーザーが集うプラットフォームを目指しています。
会社概要
株式会社LIFE QUARTET
代表取締役:山本航聡
本部:〒514-0004 三重県津市栄町3丁目141-1モアビル4階
支店:〒107-0062 東京都港区青山2丁目9-18
事業内容:ローコスト住宅の開発、住宅部資材の販売、セールススキルの向上、集客ノウハウの提供、集客ツールのデザイン・企画、各種セミナーの運営・講演
株式会社LIFE QUARTET:https://lifequartet.jp
UNSTANDARD:https://unstandard.jp
株式会社HARMONY
代表取締役:山本航聡
本部:〒514-0815 三重県津市藤方1036番1
事業内容:自然素材を使用した工務店、建築士による設計、土地の売買や相続等を扱う不動産
株式会社HARMONY:https://shizensozainoie.co.jp
このプレスリリースには、メディア関係者向けの情報があります
メディアユーザー登録を行うと、企業担当者の連絡先や、イベント・記者会見の情報など様々な特記情報を閲覧できます。※内容はプレスリリースにより異なります。
すべての画像
