住宅ブランド「UNSTANDARD」×ドイツ家具ブランド「KARE」ファッションのように暮らしを楽しむ家 NONDESIGN COUTURE produced by KAREをリリース!
住む人が自分を自由に表現できる規格住宅NONDESIGN、待望のコラボレーション住宅を発表!

プロダクト概要
UNSTANDARDの基幹商品「NONDESIGN」を「KARE」の色彩豊かなアイテムでオールコーディネート。ブランドコンセプトは「ファッションのように暮らしを楽しむ家」。服を選ぶように家も自由なライフスタイルで楽しめる、住まう人の多様性を叶える家が誕生した。
多様性を叶える「NONDESIGN COUTURE produced by KARE」
・ユーザーの思想の変化に対応
多様化するSNS社会では好きなことを自由に発信し、自分自身を表現したいというアイデンティティが生み出された。ユーザーは本当の自分を表現できるプラットフォームを求め、それが新しい家の形である。誰かの模倣ではなく、自分の感性やニーズを優先した住まい方をより重視し、個性をもっと追求できる場へと変化している。自分自身にとっての“居心地の良さ”とインテリアで自分自身を表現する“遊び心”を求めているのだ。
・潜在的なニーズを引き出す新しい提案
KAREは暮らす人の個性を自分らしく自由に好きなように表現するのにぴったりなアイテムが揃う。NONDESIGN COUTUREは誰にとっても住みやすいシンプルな間取りにKAREのユニークネスなインテリアが交わり、ユーザーが求める“居心地の良さ”と“遊び心”を全て叶えている。ユーザーの潜在的なニーズを引き出しユーザーの“自己表現”を叶える、まだ誰も提案をしていない新しいポジションの住宅と言える。
・究極のパーソナライズ化
今、企業に求められているのは、職住一体生活による複雑な購買行動に対応したパーソナライズ化である。生活スタイルに合った買い方・買い物体験の提供、生活をより豊かにする商品・サービスの組合せ提案が必要となるのは住宅業界も同じ。NONDESIGN COUTUREは家具がオールコーディネートされていることで、完成イメージとギャップが生まれず、住んでからの暮らしの楽しみを体験することができる。洗練された間取りと自由自在に変えられる家具だからこそ、ユーザーが求める「本当の暮らし」を叶えられる。
【ネーム】
NONDESIGN COUTURE produced by KARE
(ノンデザイン クチュール プロデュースド バイ カレ)
【ロゴデザイン】

【プロダクトデザイン】

落ち着いた色でモダンスタイルを取り入れた外観。
家全体に一体感があるシンプルなゾーニングで、生活動線、美しさ、使いやすさを兼ね備えたシンプルな洗練されたお家。飾り気を抑えることでKAREの家具が一層引き立つ。

KAREの家具は機能的な役割を超え、インテリアからアートとして表現される。家に自分らしさを求め、自由に好きなだけ個性を表現できる。シンプルで何色にでも染まることができるNONDESIGNのお家をベースに、色、柄、形を重ねその人だけの空間を作り出す。

リビング階段のある1階は、空間同士を直接つなげることで広々としたLDKが実現。
家具やインテリアの枠を超えた色彩溢れるアートな空間は、まさに自己表現の場そのもの。

家事をスムーズに行える設計で、2階はバルコニーも広々と使いやすく服をたくさん収納できるウォークインクローゼット付き。間仕切りのできるお部屋は使い方は自由だ。
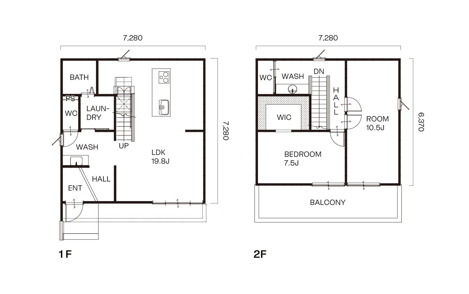
【フロアプラン】

延床面積 / 99.36㎡(30.05坪)
1F床面積 / 52.99㎡(16.02坪)
2F床面積 / 46.37㎡(14.02坪)
【NONDESIGNとは?】
NONDESIGNはその名の通り「デザインしない家」。これまでの住宅が提案してきたのは、構造や機能に重点を置いた「モノ」としての家。もちろんそれは安心して暮らすためには大切なこと。SNSが生活の一部になりファッションもグルメもボタン1つで手に入る。そんな自分の “好き” に囲まれた暮らしはもはや当たり前。だったら家はどうだろうか。「家は毎日を楽しむ場所」 それぞれの人生を、思いのままに表現できる自由な家をつくりたい。自分の “好き” を詰め込んで、毎日を自分らしくデザインする。そんなイメージから、NONDESIGNは生まれました。
【KAREとは?】
ドイツのミュンヘンで生まれたKAREは「クレイジー」と「ハッピー」をテーマに見ているだけでも楽しく、つい眺めてしまうような魅力を持った個性的なアイテムを揃えている人気の家具・インテリアブランド。型にはまらないユニークなデザインだからこそ、コーディネートは無限大。その魅力は海を渡り今では全世界25か国に250店舗以上を展開し、日本では青山の一等地を筆頭に取扱店を含め32店舗を展開中だ。「高価で退屈な家具では人生が短すぎる」と創造者ユルゲン・ライターの思いから、手が届きやすくファッションのように楽しんでもらえるよう、いいものをよりお手頃に届けたいという想いは老若男女問わずあらゆる世代に響いている。
【プロダクトサイト】
▼NONDESIGNはこちら
URL:https://unstandard.jp/nondesign
UNSTANDARDは、NONDESIGNを筆頭に規格住宅を展開する規格住宅ネットワークです。新築事業が初めてでも安心してスタートできる。充実したサポートシステム。まずはご相談ください。
URL:https://unstandard.jp/contact/?genre=genre01
▼UNSTANDARD MEDIAはこちら
「LIFE IS COLORFUL.」をテーマにライフスタイルや暮らし方を提案。ユーザーにとっての自分らしく人生
を楽しむ “場” について参考になる事例、アイデアなどを提供しライフスタイルへの関心が強いユーザーが集うプラットフォームを目指しています。
URL:https://unstandard.jp/media
会社概要
株式会社LIFE QUARTET
代表取締役:山本航聡
本部:〒514-0004 三重県津市栄町3丁目141-1モアビル4階
支店:〒107-0062 東京都港区青山2丁目9-18
事業内容:ローコスト住宅の開発、住宅部資材の販売、セールススキルの向上、集客ノウハウの提供、集客ツールのデザイン・企画、各種セミナーの運営・講演
株式会社LIFE QUARTET:https://lifequartet.jp
UNSTANDARD:https://unstandard.jp
株式会社HARMONY
代表取締役:山本航聡
本部:〒514-0815 三重県津市藤方1036番地1
事業内容:自然素材を使用した工務店、建築士による設計、土地の売買や相続等を扱う不動産
株式会社HARMONY:https://shizensozainoie.co.jp
このプレスリリースには、メディア関係者向けの情報があります
メディアユーザー登録を行うと、企業担当者の連絡先や、イベント・記者会見の情報など様々な特記情報を閲覧できます。※内容はプレスリリースにより異なります。
すべての画像
