あなたのライフスタイルをアレンジする家、ホンカSTUDIO(ストゥディオ)
ホンカの新しい住宅モデル「ストゥディオ」は、ライフスタイルにあわせてアレンジできる家。玄関のドアを開けると自由にアレンジできるスペースがあります。 あなただけのオリジナルの暮らしをお楽しみください。

フィンランド生まれのログハウスメーカー、「ホンカ」は世界50カ国以上に9万棟ものログホームを建築してきた木造建築のパイオニアです。世界初のマシンカットログハウスを生産し、様々な技術開発で健康的なログホーム、「本物の木の家」を世界に届けています。
ホンカの新モデル「STUDIO(ストゥディオ)」
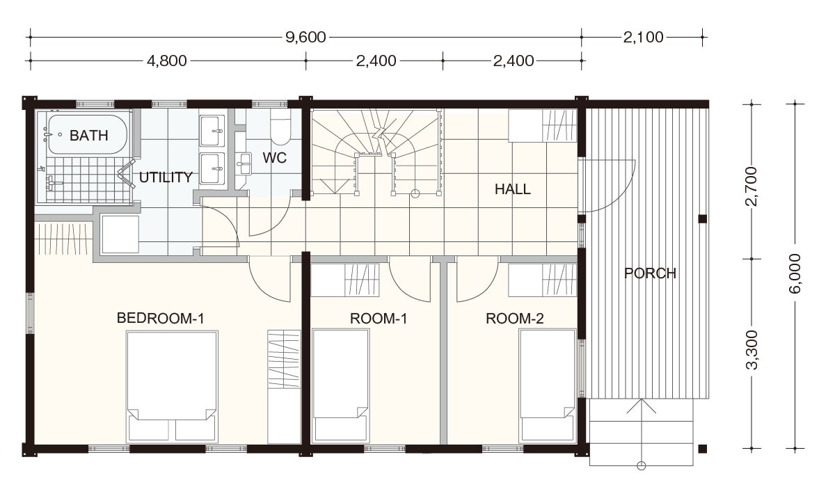
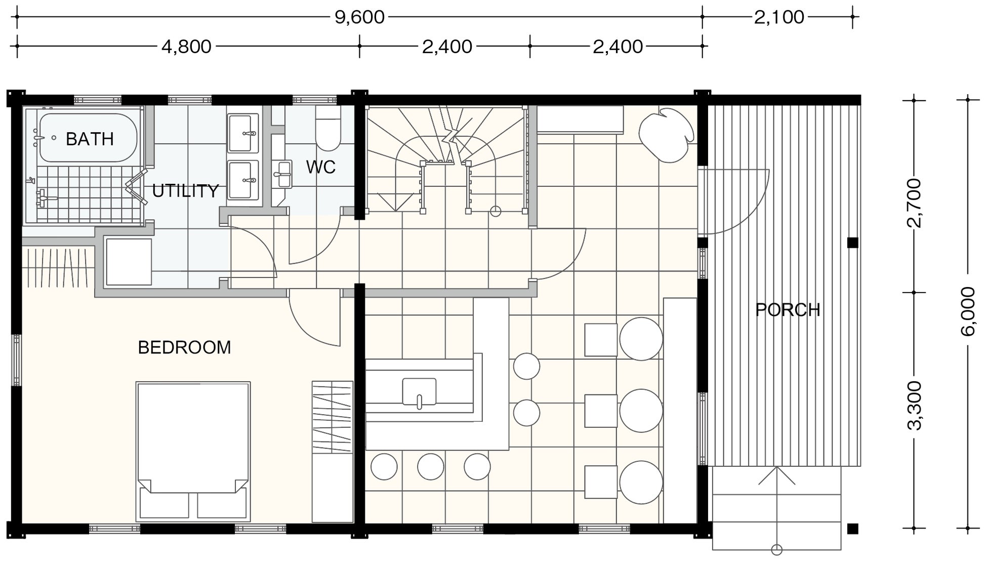
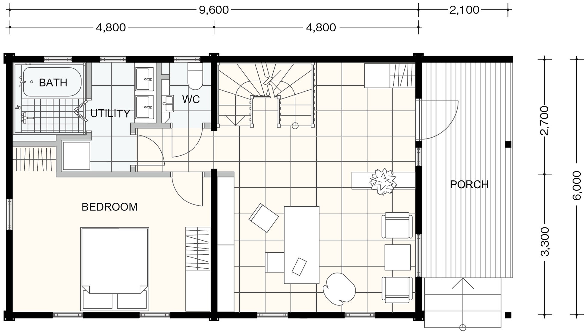
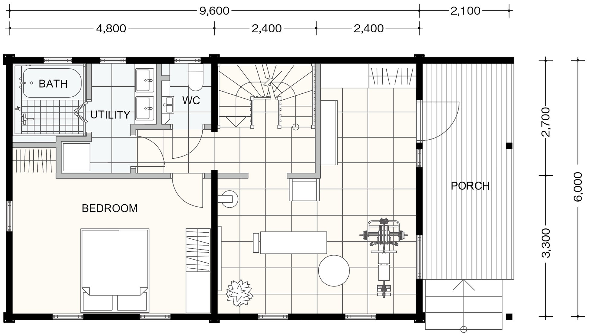
ストゥディオは、玄関ドアをあけて広がる約30㎡のスペースが自由にアレンジできる空間です。お子様の多い家庭では、ホール+子ども部屋2つと一般的な住宅の間取りの部屋として活用できます。


打ち合わせスペースもあるゆったりとしたホームオフィス、隠れ家的なカフェといった来客を迎える場所にもアレンジできます。プライベートギャラリー、ライブラリー、フィットネスルーム、音楽サロン、お茶室など趣味に没頭するスペースとしても活用できます。あなたの暮らしに無限の可能性をもたらす空間です。




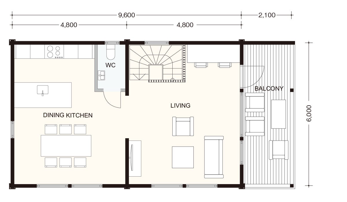
日々の暮らしの空間は、1階奥にある主寝室とバスルーム、そして陽当たりの良い2階に広がっています。リビング、ダイニング、キッチンを一体化したファミリースペースである2階は、家族全員が光あふれる開放的な空間で時間をすごせるスカイラウンジになっています。さらに、広々としたバルコニーでは、外の空気を感じながら、心ゆくまでリラックスできます。

サステナブルな北欧の木材をふんだんに使った総2階のログホームは、室内のどこにいても森林浴をしているような心地よさを感じられます。伐採されて「家」になってからも、無垢の木は呼吸します。木材によって、室内の相対湿度は最適に保たれるのが、ホンカの「本物の木の家」です。


ホンカの家は、オーダーを受けてからフィンランドにある自社工場で加工されているので、他のモデルでもアレンジを加えてプランニングをすることができます。
ホンカのカタログ「デザインブック」は、フィンランドならではのデザインに日本の建築基準を満たしたプランが豊富に掲載されています。ご希望の方には無料でカタログを送付します。

新宿にあるホンカの東京ショールームでは、ホンカのログホームの部屋を再現、ログ材、パネルやドア、窓などホンカ製品やカタログなどを実際にご覧いただけます。
ホンカやログホームを体験にぜひご来場ください。フィンランドならではの雰囲気の中、ホンカ・スタッフが家づくりの疑問についてもお答えします。
〒163-1408 東京都新宿区西新宿3-20-2
東京オペラシティタワー 8F
customer@honka.co.jp
すべての画像
