時代に選ばれる家、株式会社MISAWA-OTG100蔵住宅モデル
電気と水を作るオフザグリッド住宅は災害時も安心安全な家
当社は、2023年度より電力会社の送電網やガス、水道といったインフラシステムから独立し、自給自足で電気と水を作れるオフザグリッド(OTG)100年住宅の提供をしてまいります。
東北での震災、能登半島での震災で明らかになったのは、電気と水の安定供給の重要性です。ある程度、食糧をパントリーに貯蔵しておければ最悪の状況でもインフラの復旧が終わるまでの苦痛を緩和できます。
MISAWAのOTG100は耐震面では創業者がMISAWAホームで経験した阪神淡路大震災で、一棟も倒壊させなかった経験と実績から更に進化させた、強度の高い構造体を用い、耐震等級3をクリアする住宅は、災害から家族の安全を守ります。
今回、MISAWA-OTG蔵の住宅モデルについてお伝えいたします。
【OTG100蔵とは】
一般的に言われるオフザグリッドという考え方ですが、OTG100蔵は電力会社の送電網やガス、水道などのインフラシステムから独立し、太陽光による再生可能エネルギーから電力や水を生成する住宅です。
OTGとはオフザグリッドを意味する商品名でもともと欧米で生まれ、生活に取り入れられてきた考えですが、近年はソーラー発電システムのほか、水生成システムも進化しています。オフザグリッドの家は、水と電気をつくり公共のインフラに完全に依存せず生活できる工夫がされています。
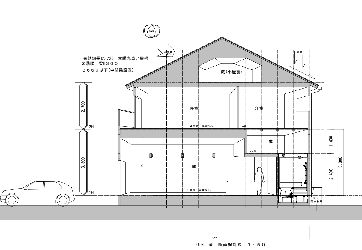
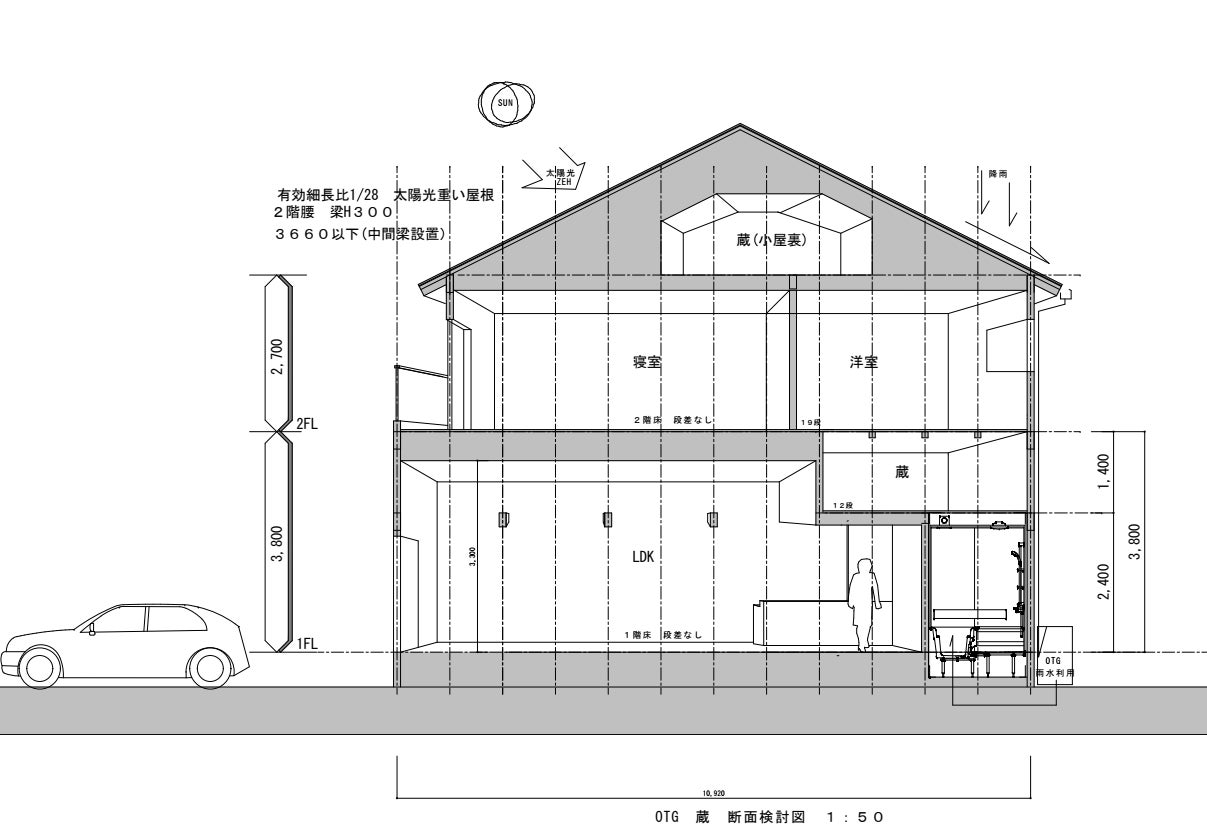
この、OTGの性能に加え、多くの人が収納の問題を解消できる蔵の性能を取り入れた、住宅モデルも去年発売いたしました。

【株式会社MISAWAのOTG100蔵の特長】
長年住宅の収納問題は解決されずにいますが、OTG100蔵はその問題を解決いたしました。
収納スペースを増やしたくても間取りによっては部屋が狭くなってしまったり、使い勝手が悪かったりすれば意味が半減してしまいます。中二階や屋根裏部分に大容量の蔵を設ける事で間取りに影響せず、十分な収納スペースを確保する事が可能です。更にOTG100蔵は、1年間で消費するエネルギー量を実質的にゼロ以下になる、ZEH(ネット・ゼロ・エネルギー・ハウス)を実現させる技術を取り入れつつ、電気を自家発電し停電や電力の高騰に対応できるのが特長です。さらに、雨水を再利用する雨水槽が整備されており、断水時にも正常な生活を続けられます。
基本的に既存インフラに依存せず、正常な生活を維持できる仕組みの構築をコンセプトとしています。
また、OTG100蔵は長期優良住宅であり、長い家族の時間を共に紡ぎ続ける住宅として商品開発されました。
最高の耐震等級である上、3世代にわたり使い続ける事ができ、劣化対策や無駄のないエネルギー効率と高性能の断熱等級を備えています。
これにより、住み心地の良い経済的で資産価値が下がりにくいのが、MISAWA-OTG100蔵の特長です。
さらに、固定費のかさむ営業の仕組みではなく、インターネットを中心に販路を広げている営業手法をとっているため、価格は大手メーカーの類似商品と比較し20~30%程度安くなっています。
加えて、近年木造住宅の良さが見直され始めています。
OTG100蔵は、健康や心理面によく作用する木の香の成分や抗菌作用、木の表しなどを工夫し木造住宅の良さを最大限活かしています。
木造住宅で可能になった、安全性や健康面に配慮した30項目以上の工夫を凝らしており、住宅の安全性が極めて高い商品になっています。

【OTG100蔵の開発に至った背景】
株式会社MISAWAのOTG100蔵は、十分な住空間と収納のバランスをとる事ができる住宅モデルです。
半世紀にわたり住宅業界を牽引し住宅産業を知り尽くした、ミサワホーム創業者で株式会社MISAWA会長の三澤 千代治が時間をかけて開発をした、長期優良住宅です。
長期優良住宅の耐用年数100年を超える「100年住宅」という意味で、OTG100と命名しました。
株式会社MISAWAがOTG100蔵に込めた思いは単なる住宅の長寿命化だけではありません。
人生100年時代を迎える中、住宅の建替え頻度を減らし、生涯を通し住居費を大幅に下げることで可処分所得を増やし、ゆとりある豊かで安全な暮らしが実現します。
「子や孫の代まで引き継いでもらいたい」との願いも込められたのが、長期優良住宅です。
資産価値が下がりにくく電気代のかからないOTG100蔵は、インフレや経済不安が広がる時代でも豊かな暮らしを可能にする住宅です。
不安の時代に代表される現象は気候変動や温暖化です。それに加えて、地政学的な問題やインフレやエネルギー問題は、私たちの安定した日常生活に影を落とし始めています。
近年は新型コロナウイルスなどの感染症が世界中にまん延し、社会不安の加速が進んでいます。このような状況を踏まえ、OTG100蔵は生活防衛の最善策となる住宅であると確信しています。
【今後の展開】
株式会社MISAWAは今後、社会に多角的に貢献できるOTG100シリーズを中心に精度の高い設計、デザイン、ゆとりある生活空間を持つ戸建てや集合住宅を多くの消費者にリーズナブルな価格で提供してまいります。
【株式会社MISAWAについて】
名称 :株式会社MISAWA
会長 :三澤 千代治
代表 :代表取締役 三澤 邦浩
所在地 :東京都中央区入船2-10-7 八弘ビル5階
資本金 :4,000万円
設立 :2021年9月28日
事業内容:住宅・建築物の設計、デザイン
知的財産のライセンシングビジネス
HP: https://misawa-otg100.co.jp/
YouTube:https://www.youtube.com/channel/UCReUUWLVFCdI_puFOzu7Bog
LP:https://misawa-otg100.co.jp/lp3/
公式Instagram:misawa.otg100
このプレスリリースには、メディア関係者向けの情報があります
メディアユーザー登録を行うと、企業担当者の連絡先や、イベント・記者会見の情報など様々な特記情報を閲覧できます。※内容はプレスリリースにより異なります。
すべての画像
