開始から10分で先行販売100万円達成した「HUBHUB御徒町」が追加チケット販売を決定
最大2名利用で8,000円とお得なプランを用意
- 「HUBHUB御徒町」追加販売チケット内容
☆最大3名/100分利用可能
☆人数分のノベルティとワンドリンク付き
☆一般のお客様が予約できないプレオープン期間のご利用可能
【50枚追加販売】貸切サウナ20%OFF早割2名利用チケット・¥8,000円 (税込)
☆最大2名/100分利用可能
☆人数分のノベルティとワンドリンク付き
☆一般のお客様が予約できないプレオープン期間のご利用可能
- 「HUBHUB御徒町」の特長
②天井高3mのポルタ(階段サウナ)と低い天井のウーラッコ(屋根裏サウナ)の2種類のサウナにチラー付水風呂と寝そべれる外気浴スペース
③デジタルギャラリー&シアター、カフェラウンジを備えたここにしかない「ととのい空間」
- 「HUBHUB御徒町」の概要
今回のHUBHUBの舞台は山手線「御徒町」駅から徒歩3分の鉄道高架下。何の開発もされず空地としてゴミが捨てられていた場所を、ここにしかない新しい「ととのい空間」として再生させるプロジェクトです。

(外観イメージ写真)
Point1. こだわり抜いたサウナ空間
天井3mの空間を生かした2種類の貸切サウナ
天井3mの高さを生かしたタワーサウナ・ポルタ(階段サウナ)と階段をのぼって入る、まるで屋根裏部屋のようなウーラッコ(屋根裏サウナ)の2種類のサウナ。どちらもフィンランド式のセルフロウリュができる特徴のあるサウナです。
サウナをでると3歩で水風呂へ。チラー付きで1年中キンキンに冷えた水温です。さらに寝そべれる外気浴で新たな「ととのい」をご体験いただけます。

(サウナ室イメージ写真)
Point2. デジタルギャラリー&シアター
五感を刺激する幻想的なデジタル空間
サウナスペースの外に広がる淡くライトアップされたデジタルギャラリー&シアター。
大型モニターとステージを配し、デジタルギャラリーだけでなく、シアター上映、ライブ、パーティー、イベント等にもご利用いただけます。

(デジタル空間イメージ写真)
Point3. カフェラウンジ
高級ラウンジを彷彿させるマルチ空間
サウナ上がりにご利用いただける高級ラウンジを彷彿させるカフェラウンジ。
バーカウンターやVIP用ソファスペースを備え、カフェ利用だけでなく、
貸切パーティー、ワークスペース、パーソナルフィットネストレーニングなど、マルチにご利用いただけます。

(カフェラウンジイメージ写真)
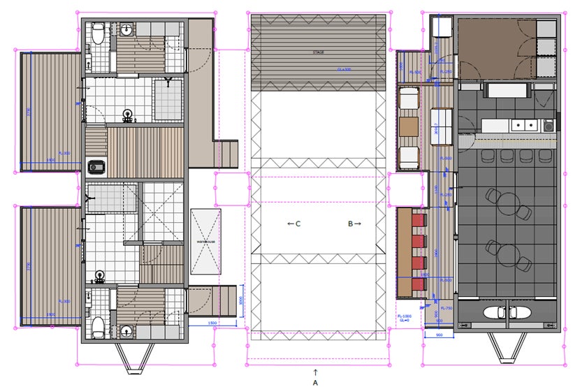
「HUBHUB御徒町」配置図

■施設概要

| 名称 | HUBHUB御徒町 |
| 所在地 | 東京台東区上野五丁目10-6 |
| 交通 | JR山手線・京浜東北線「御徒町」駅徒歩3分 東京メトロ銀座線「上野広小路」駅徒歩4分 東京メトロ日比谷線「仲御徒町」駅徒歩4分 都営大江戸線「上野御徒町」駅徒歩4分 |
| 敷地面積 | 176.66㎡(約53.43坪) |
| 延床面積 | 66.99㎡(約20.26坪) |
| トレーラー台数 | 2台 |
| 施設内容 | サウナ、デジタルシアター、カフェラウンジ |
| 公式ウェブサイト | https://hubhub.jp/ |
| 車両メーカー | 株式会社パークホームズ https://www.parkhomes.jp/ |
| 運営会社 | V37株式会社 https://v37jp.wordpress.com |
■アクセス
・JR山手線・京浜東北線「御徒町」駅徒歩3分
・東京メトロ銀座線「上野広小路」駅徒歩4分
・東京メトロ日比谷線「仲御徒町」駅徒歩4分
・都営大江戸線「上野御徒町」駅徒歩4分
- 「HUBHUB」プロジェクトについて
「HUBHUB」プロジェクトとは、移動式アセットを活用した遊休不動産の有効活用事業です。
本事業は都市の空洞化を解消し、街なかに便利さと賑わいをもたらします。また、スクラップ&ビルドではない資源循環型のビジネスモデルにより、建設廃棄物による環境負荷を減らし、SDGsへの貢献を推進します。
貸切サウナユニットやBBQパーティーユニットなど自宅では実現しづらいコンテンツを生活圏内に提供し、ユーザーの日常生活を「より豊かにより楽しく」変えていくことによりウェルビーイングの実現に寄与します。
公式ウェブサイト:https://hubhub.jp
- 株式会社ShareTomorrow について
■株式会社ShareTomorrowの概要
「生活者一人ひとりがそれぞれのライフスタイルに合わせて自由に選び、組み合わせることができるように、仕事、住まい、買い物、休日・余暇のすごし方の多様な選択肢を提供する。」をビジョンに掲げ、2021年7月1日に設立いたしました。当社グループ長期経営方針「VISION 2025」で定める「街づくりを通して、持続可能な社会の構築を実現」「テクノロジーを活用し、不動産業そのものをイノベーション」といったビジョンに基づき新規事業の開発・推進を手掛けています。
会社名 株式会社ShareTomorrow
設 立 2021年7月1日
代表取締役社長 石川 憲久
所在地 東京都中央区日本橋室町3-2-1
主要株主 三井不動産株式会社
【三井不動産グループの SDGsへの貢献について】
https://www.mitsuifudosan.co.jp/corporate/esg_csr/
三井不動産グループは、「共生・共存」「多様な価値観の連繋」「持続可能な社会の実現」の理念のもと、人と地球がともに豊かになる社会を目指し、環境(E)・社会(S)・ガバナンス(G)を意識した事業推進、すなわち ESG 経営を推進しております。三井不動産グループの ESG 経営をさらに加速させていくことで、日本政府が提唱する 「Society 5.0」の実現や、「SDGs」の達成に大きく貢献できるものと考えています。
*なお、本リリースの取り組みは、SDGs(持続可能な開発目標)における2つの目標に貢献しています。
【目標9 産業と技術革新の基盤をつくろう】
【目標11 住み続けられるまちづくりを】

※本リリースは複数社からお送りしているため、重複する場合がございます。ご了承いただけますと幸いです。
※本リリースは下記の記者クラブに配布しています。
このプレスリリースには、メディア関係者向けの情報があります
メディアユーザー登録を行うと、企業担当者の連絡先や、イベント・記者会見の情報など様々な特記情報を閲覧できます。※内容はプレスリリースにより異なります。
すべての画像