地域に開かれ繋がりによって広がるスモールビジネスの成長を支援する 北海道札幌市にSLOCビジネスのインキュベーション施設「RURAL BASE」がオープン
SLOCビジネスインキュベーション施設「RURAL BASE」
株式会社Rural frontier(代表取締役:坪田莉来)は、2022年より本社を東京から北海道札幌市に移転し、札幌市中央区西13丁目に所在する「喫茶わらび」跡地に、SLOCビジネス(スモールでローカルでオープンでコネクティッドなビジネス)に特化したインキュベーション施設「RURAL BASE」をオープンします。
▼ SLOCビジネスとは
当社が提唱する SLOCビジネスとはその名前の由来でもある「small、local、Open、connected 」の要素を含む新しい地域経済を作るビジネスのことです。スモールでローカルなビジネスをオープンかつコネクティッドにしていく仕組みを創っていくことにより、SLOCビジネスは地域内で確かな繋がりと、経済圏の確立を目指します。
▼ 地域に開かれたSLOCビジネスを生み出すインキュベーション施設「RURAL BASE」とは
東京を中心に地域ビジネスの支援や実店舗の運営、地域に根ざした商品開発、地方の大学などと連携したキャリア教育などを手がける当社では、過去約3年間に地域の魅力・資源を活かした店舗運営事業、地域ビジネス支援事業、まちなかマルシェの開催、地方大学での講演など多様な地域に根ざしたオープンで、繋がりによって広がるスモールビジネスの創出と運営に取り組んできました。
今回オープンする「RURAL BASE」は、地方で上記のようなスモールでローカルでオープンでコネクティッドな性質を持つビジネスを創出することを支援するインキュベーションオフィスとしての役割を担い、新たな事業創出に加え、それを生み出す側と支援する側の両者がその拠点に集うことで、地域を活性化させることを目指します。
RURAL BASE 所在地
https://goo.gl/maps/DgNxzX3xYRLN89nR9
▼ 地下一階24時間使えるワークスペースやビジネスコラボレーション、チャレンジスペースや探究コミュニティなどでSLOCビジネスの事業成長を後押し
1. どんな働き方にも対応する24時間稼働の会員制コワーキングスペースを整備
札幌市内では初の24時間使うことのできるコワーキングスペースを地下一階に整備。どんな働き方にも対応できる常に仕事に向かうビジネスパーソンの味方となるようなワーキングスペースを整備しております。
■ 設備内容
・24時間365日利用可能
・Wi-Fi
・電源
・複合機
・ホワイトボード
・冷蔵庫、電子レンジ etc.
2. 「ビジネスコラボレーション」で事業創造をさらに促進
当社Rural frontier代表の坪田がコミュニティマネージャーとして常駐し参加企業と東京にて当社が行う事業とのコラボレーションの提案も含む柔軟なビジネスコラボレーションを提供。また、当社だけでなく現地で教育や地域支援事業を行う企業や団体などと連携した幅広いビジネスコラボレーションの提案や、月に一度のオープンイベントの開催、10時・15時のカフェ交流タイムの設置など利用者の交流促進や事業創造を後押しする仕掛けを行います。
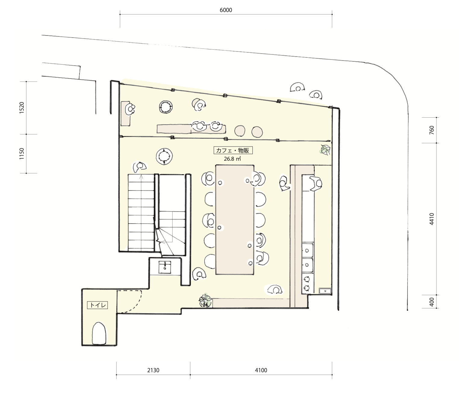
3. 地上一階に併設のサステナブルカフェ「wanna be」を間借りした「チャレンジスペース」で事業アイデアの実験をしやすい環境を提供
一階に当社運営のサステナブルカフェ「wana be」を間借りする形での会員様の新事業創造の実験をお助けする「チャレンジスペース」を設置。プロダクトの店頭販売から、遊休時間を活用した間借り・シェアキッチンなどによる店舗運営/商品開発の実証実験の支援を提供予定。主にD2Cブランドを展開されている事業者の方や、起業後間もない方や、開業予定の方などと一緒に実験していく店舗としての活用を考えています。この場所から新たな街の文化となる取り組みや店舗、商品が生まれることを全力でサポートします。
4.「産学連携」による当施設を利用した探究型コミュニティを構想
当施設はまだまだ日本では馴染みのない「SLOC」というビジネスのあり方を提唱し、育成していくことを主目的としています。その為このような形のビジネスの担い手を育て、より成功率の高い社会実装のための産学連携による探究コミュニティを構想しています。今後施設の進化に合わせてコミュニティの内容を形にしていければと考えています。連携、協働などいつでもお待ちしております。
■ 事業責任者 坪田より
弊社はこれまで、地域活性化を目的にスモールでローカルな事業展開を行ってきました。4期を迎えるにあたり、スモールでローカルな事業をオープンかつコネクティッドにしていく仕組みづくりに着手したいと考えました。これらの特徴をSLOCモデルといい、私たちはこのSLOCこそがスモールビジネスであり、地域内にこのようなスモールビジネスを創造して行きたいと考えております。新拠点では札幌をはじめとする道内でのネットワーク構築のみならず、道外とのコネクションを作り、「都市と地方を繋ぐ」という間に「地方都市」という新たな中間地点を設け、新たな展開を行っていきたいと考えております。
また、私自身今回のプロジェクト始動に伴い、札幌への移住をし、東京とのデュアルワーク・ライフを行います。その中で、新たなライフスタイルやワークスタイルの提案をRURAL BASEを拠点に発信していきたいと思います。
▼ 会社概要
会社名:株式会社Rural frontier
所在地:東京都文京区向丘1-16-17 LOG inn Tokyo
設立:2019年4月15日
代表取締役:坪田莉來
事業内容:SLOCビジネス創出事業、店舗事業、地域プロモーション事業、地域ビジネス支援事業
コーポレートサイト:https://www.ruralfrontier.com/
当社が提唱する SLOCビジネスとはその名前の由来でもある「small、local、Open、connected 」の要素を含む新しい地域経済を作るビジネスのことです。スモールでローカルなビジネスをオープンかつコネクティッドにしていく仕組みを創っていくことにより、SLOCビジネスは地域内で確かな繋がりと、経済圏の確立を目指します。

▼ 地域に開かれたSLOCビジネスを生み出すインキュベーション施設「RURAL BASE」とは
東京を中心に地域ビジネスの支援や実店舗の運営、地域に根ざした商品開発、地方の大学などと連携したキャリア教育などを手がける当社では、過去約3年間に地域の魅力・資源を活かした店舗運営事業、地域ビジネス支援事業、まちなかマルシェの開催、地方大学での講演など多様な地域に根ざしたオープンで、繋がりによって広がるスモールビジネスの創出と運営に取り組んできました。

今回オープンする「RURAL BASE」は、地方で上記のようなスモールでローカルでオープンでコネクティッドな性質を持つビジネスを創出することを支援するインキュベーションオフィスとしての役割を担い、新たな事業創出に加え、それを生み出す側と支援する側の両者がその拠点に集うことで、地域を活性化させることを目指します。
RURAL BASE 所在地
https://goo.gl/maps/DgNxzX3xYRLN89nR9
▼ 地下一階24時間使えるワークスペースやビジネスコラボレーション、チャレンジスペースや探究コミュニティなどでSLOCビジネスの事業成長を後押し
1. どんな働き方にも対応する24時間稼働の会員制コワーキングスペースを整備
札幌市内では初の24時間使うことのできるコワーキングスペースを地下一階に整備。どんな働き方にも対応できる常に仕事に向かうビジネスパーソンの味方となるようなワーキングスペースを整備しております。

■ 設備内容
・24時間365日利用可能
・Wi-Fi
・電源
・複合機
・ホワイトボード
・冷蔵庫、電子レンジ etc.
2. 「ビジネスコラボレーション」で事業創造をさらに促進
当社Rural frontier代表の坪田がコミュニティマネージャーとして常駐し参加企業と東京にて当社が行う事業とのコラボレーションの提案も含む柔軟なビジネスコラボレーションを提供。また、当社だけでなく現地で教育や地域支援事業を行う企業や団体などと連携した幅広いビジネスコラボレーションの提案や、月に一度のオープンイベントの開催、10時・15時のカフェ交流タイムの設置など利用者の交流促進や事業創造を後押しする仕掛けを行います。
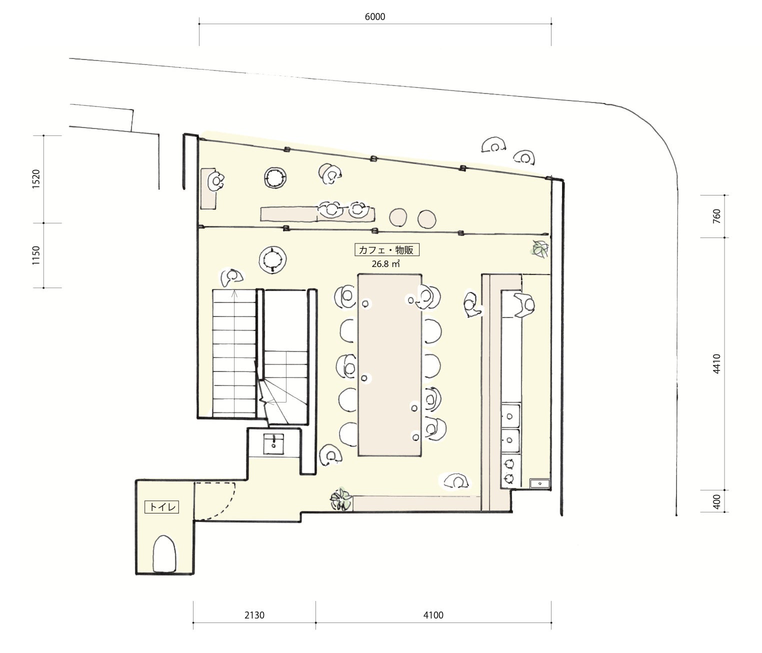
3. 地上一階に併設のサステナブルカフェ「wanna be」を間借りした「チャレンジスペース」で事業アイデアの実験をしやすい環境を提供
一階に当社運営のサステナブルカフェ「wana be」を間借りする形での会員様の新事業創造の実験をお助けする「チャレンジスペース」を設置。プロダクトの店頭販売から、遊休時間を活用した間借り・シェアキッチンなどによる店舗運営/商品開発の実証実験の支援を提供予定。主にD2Cブランドを展開されている事業者の方や、起業後間もない方や、開業予定の方などと一緒に実験していく店舗としての活用を考えています。この場所から新たな街の文化となる取り組みや店舗、商品が生まれることを全力でサポートします。

4.「産学連携」による当施設を利用した探究型コミュニティを構想
当施設はまだまだ日本では馴染みのない「SLOC」というビジネスのあり方を提唱し、育成していくことを主目的としています。その為このような形のビジネスの担い手を育て、より成功率の高い社会実装のための産学連携による探究コミュニティを構想しています。今後施設の進化に合わせてコミュニティの内容を形にしていければと考えています。連携、協働などいつでもお待ちしております。

■ 事業責任者 坪田より
弊社はこれまで、地域活性化を目的にスモールでローカルな事業展開を行ってきました。4期を迎えるにあたり、スモールでローカルな事業をオープンかつコネクティッドにしていく仕組みづくりに着手したいと考えました。これらの特徴をSLOCモデルといい、私たちはこのSLOCこそがスモールビジネスであり、地域内にこのようなスモールビジネスを創造して行きたいと考えております。新拠点では札幌をはじめとする道内でのネットワーク構築のみならず、道外とのコネクションを作り、「都市と地方を繋ぐ」という間に「地方都市」という新たな中間地点を設け、新たな展開を行っていきたいと考えております。
また、私自身今回のプロジェクト始動に伴い、札幌への移住をし、東京とのデュアルワーク・ライフを行います。その中で、新たなライフスタイルやワークスタイルの提案をRURAL BASEを拠点に発信していきたいと思います。

▼ 会社概要
会社名:株式会社Rural frontier
所在地:東京都文京区向丘1-16-17 LOG inn Tokyo
設立:2019年4月15日
代表取締役:坪田莉來
事業内容:SLOCビジネス創出事業、店舗事業、地域プロモーション事業、地域ビジネス支援事業
コーポレートサイト:https://www.ruralfrontier.com/
すべての画像
