災害時のトイレ問題を解決するプロジェクト「みんな元気になるトイレ」に参加するため、平生町がクラウドファンディングを開始
防災用モビリティトイレを導入、町民の命と尊厳を守ります!

【ふるさと納税型クラウドファンディング】
■実施期間:令和7年4月1日(火)~5月31日(土)
■目標金額:8,000,000円
■使途:防災用モビリティトイレの導入
■税制上の優遇措置
企業・団体:損金算入による税控除が受けられます。
個人:自己負担額の2,000円を除いた全額が控除の対象となります。
ただし、全額控除される寄付金額は、収入や家族構成等に応じて一定の上限があります
ので、あらかじめご確認ください。
■納付方法
https://readyfor.jp/projects/mintore-hiraocho にアクセス
■お問い合わせ先
平生町役場 総務課 地域安全班 TEL 0820-56-7111
■町長からのメッセージ
被災者の尊厳ある生活を確保する。
助けあいのネットワークに、山口県平生町も参加します。
近年、毎年のように全国各地で大雨による洪水や土砂災害などの自然災害が頻発し、甚大な被害が発生しています。また、南海トラフ巨大地震の発生確率が80%に引き上げられるなど、災害リスクは高まっており、いつ、どこで起こるか分からない大災害に備えておかなければなりません。

ひとたび大規模災害が発生すると、断水や下水道の損傷など、さまざまな原因で水洗トイレは使えなくなり、日ごろの快適なトイレ環境から一転し、不便を強いられます。
トイレが不衛生だったり使えなかったりすると、排泄の回数を減らすため水分や食事を控えてしまいエコノミー症候群等の発症により死に至る災害関連死に直結しかねません。
排泄は待ったなしの問題です。
能登半島地震では、被災地の一日も早い復旧・復興を願い、救援物資や義援金の提供のほか、応援職員を派遣するなどの支援を行ってまいりましたが、被災地ではトイレ問題が深刻化し、発災後、水や食料より早く必要になるのはトイレだと再認識いたしました。
そのため、被災者にとって安心できる快適なトイレ環境を確保するため、プライバシーが確保された清潔で安心して使用できるモビリティトイレの導入を決めました。
導入後は災害派遣トイレネットワークに参加し、全国の加入自治体がお互いに助け合う仕組みに加わることで、平生町から被災地へ派遣するだけでなく、平生町が被災した際には全国各地から派遣していただけることになります。災害派遣トイレネットワークプロジェクトによる助けあいの輪がますます広がっていくよう取り組んでまいりたいと思います。
どうか、本プロジェクトにご賛同いただき、皆様のご支援を賜りますようお願い申しあげます。
■「みんな元気になるトイレ」とは?

被災者の心身に追い打ちをかけるトイレ我慢。この状況を何とか変えていきたい。こうした思いから誕生したのが災害派遣トイレネットワークプロジェクト「みんな元気になるトイレ」です。
「みんな元気になるトイレ」を導入した自治体に大事があれば、仲間の自治体がモビリティトイレで全国各地から駆けつけます。ひとつの自治体では対応しきれない災害時のトイレ問題を、みんなで支援しあい、助けあうことで解決しようという取り組みです。
●参加自治体:32 ※2026年5月末予定:56自治体(24自治体が参加を予定)
●トレーラー型:22台+トラック型:10台 ※2025年4月現在
●対応避難者数:6,450人 トイレ回数:31,000回/日

■「みんな元気になるトイレ」の機能
機動性、快適性、各種防災機能を備えたモビリティトイレです。
災害時の利用を想定して企画・設計されており、どこにでも移動ができます。
給水タンク・汚水タンクを備えているため、到着後すぐに使用することが可能です。



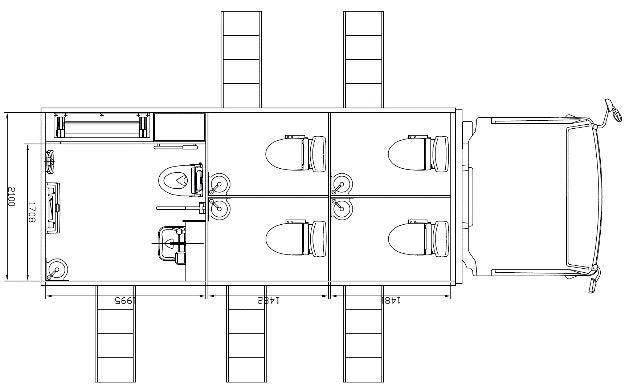
洋式の水洗トイレを備えた個室は5室で、最後部は電動車いすリフター、オストメイト対応設備、おむつ交換台、ベビーキープを備えた多機能トイレ室となっています。



お子様の着替えからお年寄りの付き添い、歯磨き、お化粧まで、レストルームとして活用できます。
また、停電地域への派遣を想定しているため、天井に設置されているソーラーパネルの太陽光充電機能により、必要な電気を自車で賄い、モビリティトイレ周辺と室内を明るく照らし、被災地の夜に安全・安心を届けることができます。

■寄付いただいた皆様の想いを乗せて、みんなで支援に向かいます!
平生町も「みんな元気になるトイレ」を導入し、全国の加入自治体がお互いに助けあうネットワークに加わります。災害派遣トイレネットワークプロジェクトによる助けあいの輪がますます広がっていくように取り組んでまいりたいと思います。
「みんなで」との趣旨のもと、ご寄付いただいた皆様のお名前(社名・団体名・個人名)を車両の背面に掲載させていただき、皆様と共に出動、トイレを待つ被災地に向かいます。
皆様のご支援・ご協力をお願いします。

すべての画像