玄関スペースに新提案!便利さと美しさを両立した『玄関ベンチ』発売!
カツデン株式会社は、このたびお客様から多くのご要望を受け、ノックダウンで後付け可能な『玄関ベンチ』を12月1日より販売開始しました。

◆バリアフリー× デザイン性
玄関で靴を脱ぎ履きする動作は、足腰に負担がかかります。特に高齢の方にとっては辛い体勢になることが多く、ロングブーツを履く方にとっても玄関で座り込む必要があり、面倒な動作は極力排除したいという需要がありました。
解決策として、5年ほど前から「玄関に椅子を置く」という手段が取られ始めましたが、
・間取りに合うサイズが見つからない
・建具とデザインを合わせたい
・足元をスッキリさせたい
という要望がたびたび当社に舞い込んでおり、本商品の発売に至りました。
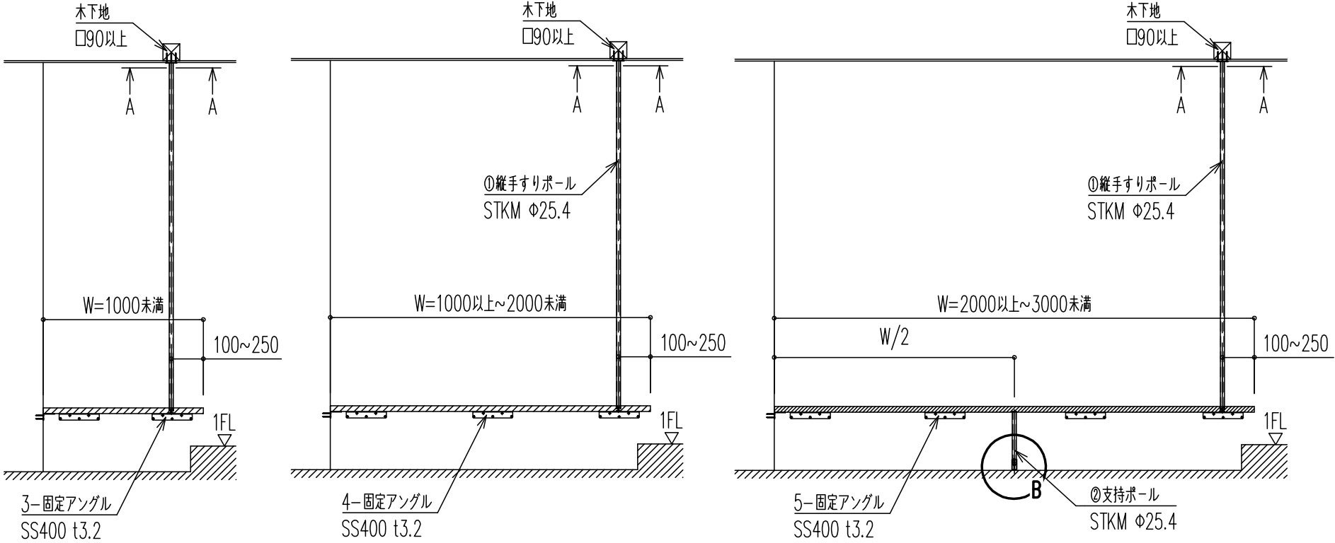
さらにカツデンの『玄関ベンチ』は、靴の脱ぎ履きのタイミングで掴むための縦手すりが通っており、一連の動作をスムーズに行えるよう配慮されています。

◆壁と天井に固定するシンプルなデザイン
間取りに合わせてサイズオーダーして製作すると大幅なコストアップとなってしまうことが建築主にとっての悩みです。極力コストを抑えるためにあらゆる要素を排除し、それをデザインとしての必然性に落とし込むことは、カツデンが提供する商品すべてで行われています。今回も同様の考え方で開発は進められ、サイズオーダー可能であるにも関わらず、それほど高価ではありません。
座面を壁固定し、補強と手すりを兼ねたパイプを天井固定するだけで成立します。この状態で耐荷重は120kg/m と、かなりの安定感があります。手すりとなるスチール部分は全 10 色、座面となる木製座板は全 6 色の展開です。

◆トレンドの間取りにも
近年、シューズクロークや広めの玄関を住宅に取り入れる方が増加中。収納力をアップさせる、生活動線を快適にすることが目的とされています。本商品はこれらの空間の利便性をさらにUP させることに加え、棚としての用途でも利用できるよう商品の汎用性をもたせています。

■製品詳細
『玄関ベンチ』

◆定価
左からそれぞれ、96,000円、156,000 円、229,000円となります。

このプレスリリースには、メディア関係者向けの情報があります
メディアユーザー登録を行うと、企業担当者の連絡先や、イベント・記者会見の情報など様々な特記情報を閲覧できます。※内容はプレスリリースにより異なります。
すべての画像
