ソロサウナtune 内装の意匠登録完了 日本で最初の個室サウナ<ソロサウナtune神楽坂>の新規性が認められる
洗練された機能と様式の没入空間 ソロサウナtune

サウナの本場フィンランドでも、公共のサウナは集団で入るサウナが中心です。
ソロサウナtuneは2020年12月に、着替え・サウナ室・冷水によるクールダウン・リラクゼーションの全てがひとつの個室で完結するサウナを開業しました。
今回の内装の意匠登録により、個室サウナという新しいサウナの体験の新規性が認められました。
また、開業からの2年間でご来店いただいたお客様は、延べ36,000人を突破。女性の来店者も3割を超え、タトゥがある方、性別を男女で区別することに抵抗のある方、障がいなど何らかの理由で大浴場を利用しにくい方にも、多数ご利用いただいております。そして、それぞれのお客様に即したご利用方法をサウナ・スパ健康アドバイザー、サウナ・スパプロフェッショナルの資格を持ったスタッフが丁寧にアドバイスをしています。
ソロサウナtuneは個室サウナのパイオニアとしてストレスの多い 現代社会で、より多くの人がサウナによって幸せになる社会の実現を目指します。
内装の意匠登録とは
昨今、企業が店舗の外観や内装に特徴的な工夫を凝らしてブランド価値を創出し、サービスの提供や製品の販売を行う事例が増えています。また、近年、オフィス家具・関連機器を扱う企業が、自社の製品を用いつつ、特徴的なオフィスデザインを設計し、顧客に提供する事例も生じています。そこで、令和元年、意匠法が抜本的に改正され、令和2年4月から、建築物の外観デザインが意匠権で保護できるようになりました。また、机やいす等の複数の物品等の組み合せや配置、壁や床等の装飾により構成される内装デザインも、全体として統一的な美感を起こさせるようなときは、一つの意匠として意匠権で保護することができるようになりました。
引用元 経産省WEBサイト
https://www.meti.go.jp/press/2020/11/20201102003/20201102003.html
ソロサウナtuneの意匠に係る物品の説明
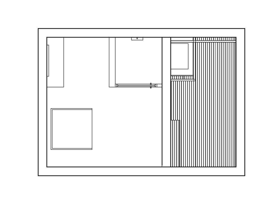
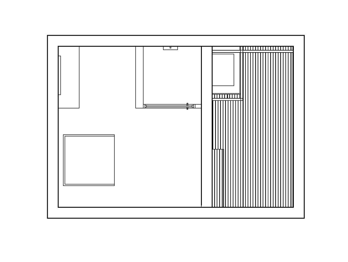
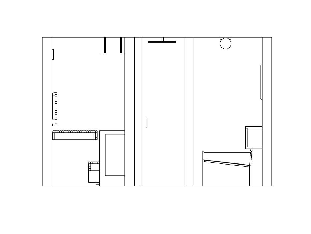
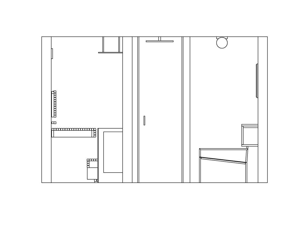
本内装は、一人用サウナ室であり、休憩スペース、冷水によるクールダウン等のためのシャワースペース及びサウナスペースを備えるものであり、一人の利用者が不特定多数の人々と接することなく、これら3スペースを行き来することができ、且つ各スペースを自分の好きなタイミングで自由に使用することができるものである。
【図面】
【天井及び手前側の壁を省略して表した正面左方向からの斜視図】

【天井及び手前側の壁を省略して表した正面右方向からの斜視図】

【天井及び手前側の壁を省略して表した背面右方向からの斜視図】

【天井を省略して表した平面図】

【手前側の壁を省略して表した正面図】



- ソロサウナtune店舗概要

◇店舗名:ソロサウナtune
◇住所:〒162-0808 東京都新宿区天神町23-1(UNPLAN Kagurazaka1F)
◇アクセス:東京メトロ東西線「神楽坂駅」徒歩3分/東京メトロ有楽町線「江戸川橋駅」徒歩7分/都営大江戸線「牛込神楽坂駅」徒歩9分
◇営業時間:7:50-23:25
◇定休日:不定休
WEB:https://www.solosauna-tune.com/
Facebook:https://www.facebook.com/solosauna.tune/
Instagram: https://www.instagram.com/solosauna_tune/
Twitter: https://twitter.com/solosauna_tune
『ソロサウナ』『SOLO SAUNA』はtune株式会社の登録商標(商標登録第6372032号)です。商用利用ではない個人利用はご自由にお使い頂けますが、事業者・法人の無許可での商用利用は認めておりません。
https://www.solosauna-tune.com/guideline/
このプレスリリースには、メディア関係者向けの情報があります
メディアユーザー登録を行うと、企業担当者の連絡先や、イベント・記者会見の情報など様々な特記情報を閲覧できます。※内容はプレスリリースにより異なります。
すべての画像
