個室ジムのパイオニア、ハコジムが東京に初進出。
無人の個室ジム『ハコジム』が 2022年11月4日(金)、東京都葛飾区新小岩にグランドオープンする。

【ハコジム サービス概要】
株式会社ハコジム(本社:広島県広島市)は24時間365日営業の無人の個室ジムを西日本を中心に14店舗展開中。スマホの簡単な操作で予約ができ、個室を占有して使用できる為、器具の順番待ちもなく周りを気にせずに自分のペースでトレーニングに集中できる。予約時にトレーナーを選択すれば提携しているトレーナーからマンツーマンの指導を受けることもできる。
月会費
- オフピークタイム会員 4,180円(税込)
- オールタイム会員 5,280円(税込)
 全室個室の無人ジム
全室個室の無人ジム
パーソナルトレーニング
- オプション:1時間につき3,270円(税込)
 マンツーマンのパーソナルトレーニング
マンツーマンのパーソナルトレーニング
AIスマートミラー ハコトレ
AIスマートミラー:フリーウェイトトレーニングルーム
AIスマートミラー:自重トレーニングルーム
ハコジム新小岩店について
- 2022年11月4日(金)オープン
- 24時間年中無休
- パーソナルトレーニング・AIパーソナルトレーニング提供
- 所在地:東京都葛飾区新小岩1−50−8丸善ビル3階
- https://hacogym.jp/tokyo/shinkoiwa
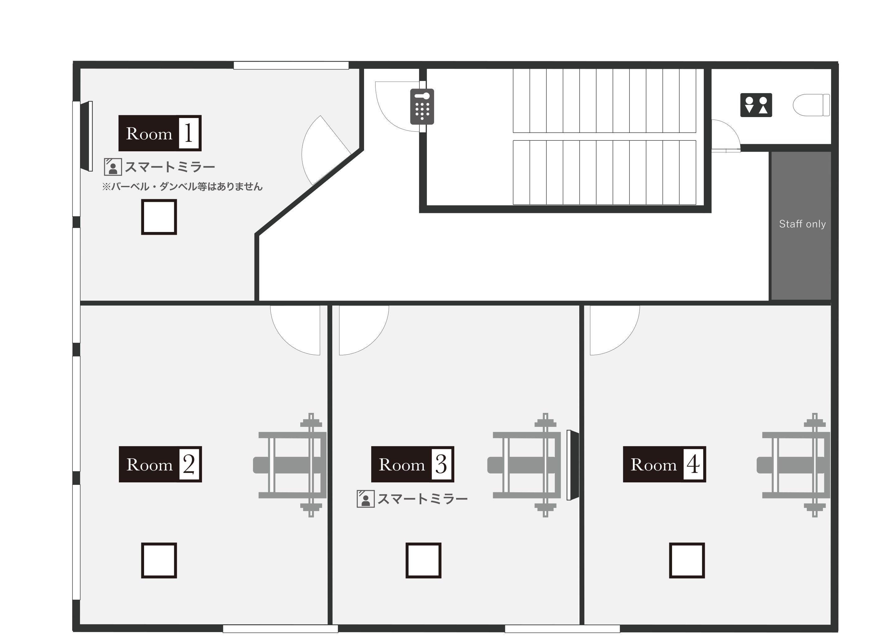
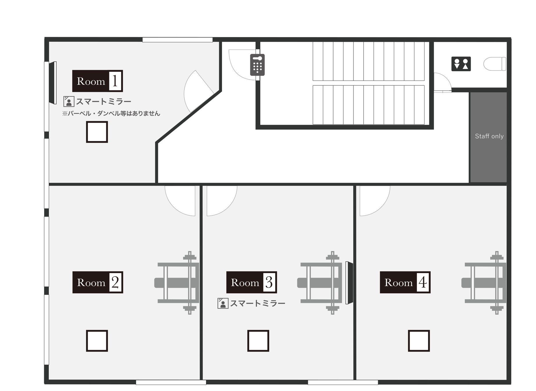
 新小岩店見取り図
新小岩店見取り図
フランチャイズ概要
加盟店コメント
- 40社以上のFC本部に深く関わってきた当社ですが、「ハコジム」の、合理的でユーザー評価も高いビジネスモデル、その将来性を高く評価しました。「フィットネスをもっと身近に。もっと気軽に。」という想いにも共感。当社が行う新規事業としてこれ以上適しているFCはないと判断し加盟を決断しました。
本部コメント
- 全国からFC加盟の問い合わせが集まる中、直営14店舗での経験・ノウハウが蓄積され、本部としての準備も整ってきたことから、フランチャイズ一号店のスタートに踏み切りました。個室ジムのパイオニアとしてフランチャイズ展開を加速させていきます。
直近の出店状況
- 2022年 7月 福岡 高宮店オープン
- 2022年 8月 大阪 堺筋本町店オープン
- 2022年11月 東京 新小岩店オープン
FC加盟店 会社概要
会社名 :株式会社カーネルコンサルティング
東京事務所 :〒124-0024 東京都葛飾区新小岩1−50−8丸善ビル3階
代表取締役 :高木仁
事業内容 :フランチャイズビジネスコンサルティング等
ウェブサイト:https://kernel-c.com
フランチャイズ本部 会社概要
会社名 :株式会社ハコジム
本社所在地 :〒732-0822 広島県広島市南区松原町10-22 5F
代表取締役 :永田 秀晶
事業内容 :フィットネスジム運営システムの開発・提供
ウェブサイト:https://hacogym.jp
このプレスリリースには、メディア関係者向けの情報があります
メディアユーザーログイン既に登録済みの方はこちら
メディアユーザー登録を行うと、企業担当者の連絡先や、イベント・記者会見の情報など様々な特記情報を閲覧できます。※内容はプレスリリースにより異なります。
すべての画像
