北九州イノベーションセンターは、屋内外2,000㎡超の実証実験フィールドを完備した「北九州R&Dセンター1901」の入居企業募集を開始。
先行してスタートアップ企業「株式会社TriOrb」の入居が決定しました。
この度、民間事業者ならではの「イノベーションハブ」として、誰しもがビジネスに挑戦できる社会スキームの構築を目指すGZキャピタル株式会社(本社:福岡県北九州市、代表取締役社長:日淺 二郎、以下「GZキャピタル」)は、2023年11月11日に第一期開業が決定した「北九州イノベーションセンター」内、R&Dセンターエリアで開業予定の「北九州R&Dセンター1901」に関する入居企業の募集を開始したことをお知らせします。

また、記念すべき第一弾として、全方向移動プラットフォーム「TriOrb BASE」の活用により、運用が困難であった製造現場環境下でのロボット導入や移動効率、強固な外乱性が求められる建築現場での資材搬送システムの実現を目指す株式会社TriOrb(本社:福岡県北九州市、代表取締役:石田 秀一、以下「TriOrb」)の入居が決定しました。TriOrbは、九州工業大学および産業技術総合研究所発のロボットベンチャー企業であり、「TriOrb BASE」を用いて、重労働や劣悪な環境での作業、人手不足等の産業界が直面する社会課題の解決を目指します。
>株式会社TriOrbはこちら:https://www.triorb.co.jp/
左:GZキャピタル株式会社 代表取締役社長 日淺 二郎、右:株式会社TriOrb 代表取締役 石田 秀一
TriOrbは、北九州R&Dセンター1091を新たな開発拠点、広大な実証フィールドを活用したロボットの性能検証や複数台のロボットを用いた実証実験、お客様向けのデモンストレーションの場として活用することで、開発機能強化やプロモーション活動の促進とともに、域内の研究機関や行政機関、スタートアップ、入居企業との連携を通して地域社会の発展に貢献します。
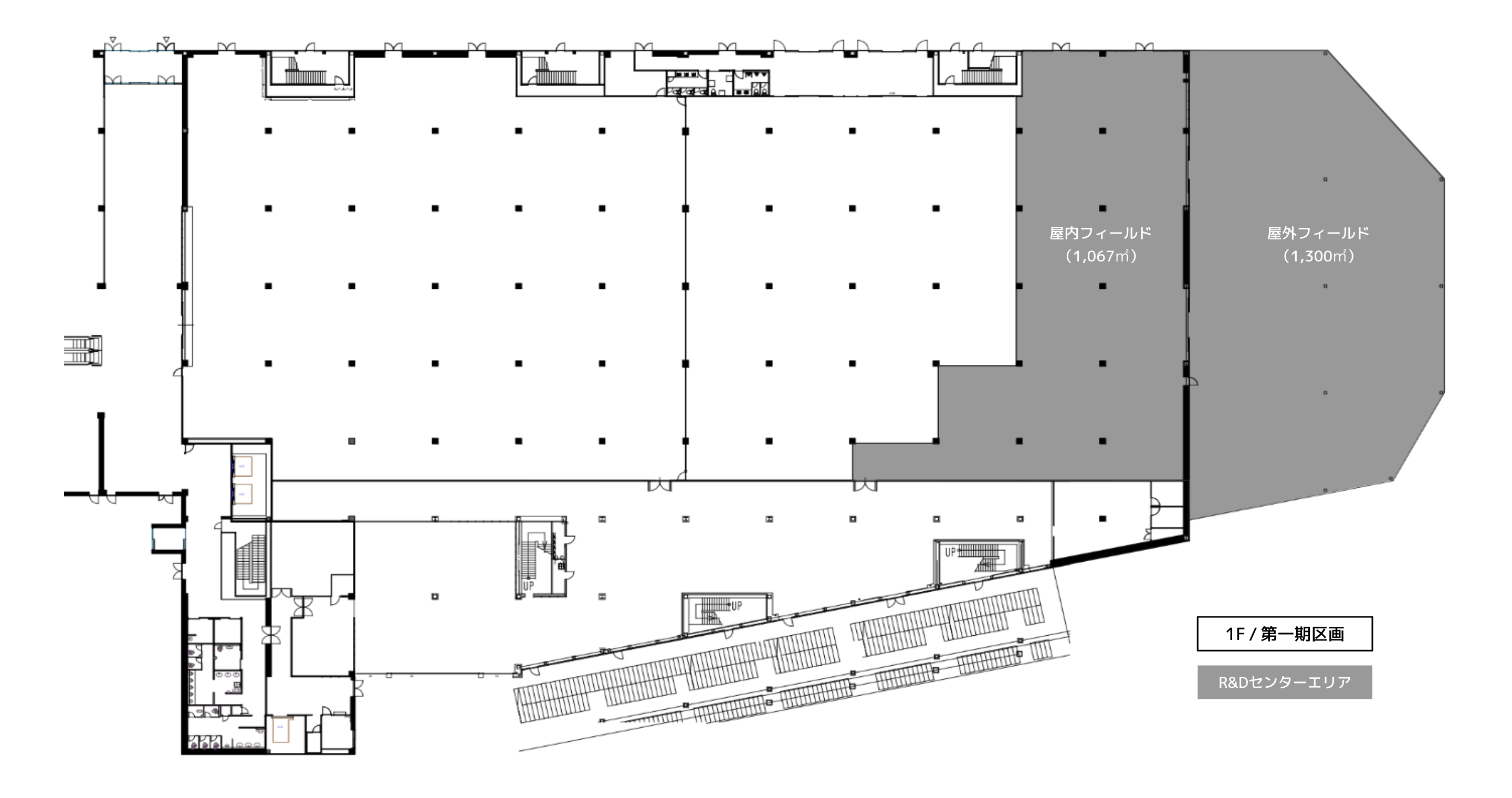
北九州R&Dセンター1901について
北九州R&Dセンター1901では、「Research(調査・研究)」と「Development(企画・開発)」、その先の事業化や、その過程で必要となる広報の役割を担います。オフィス利用のみならず、交流会やセミナー、勉強会を定期開催することで、企業同士の情報交換、懇親、紹介の場を通じて、ビジネスマッチングの機会を創出します。また、会議や研修、さらにはイベント環境も整っていますので、さまざまなシーンでご利用いただけます。
「工業都市」北九州の歴史は、20世紀(1901年)と共に幕を開けました。現在の北九州市八幡東区に、官営の八幡製鐵所が開設され、近くで採掘される石炭と、中国からの鉄鉱石の輸入によって製鉄業が盛んになり、次々と製鉄所や化学工場が増えていった背景が北九州工業地帯にはあります。そこから120年以上の時が経過した現在、北九州は深刻な公害を克服した技術と経験を生かし「環境都市」へと発展しました。産学官連携施設である北九州イノベーションセンターでは、長きに渡り力強く北九州をリードしてきた先人のDNAを受け継ぎ、さらなる北九州の発展を目指します。
>北九州イノベーションセンターはこちら:https://kitakyushu-innovation-center.jp/
R&Dセンターエリア「北九州R&Dセンター1901」該当区画
>入居希望・施設案内に関するお問い合わせ
施設名称:「北九州R&Dセンター1901」北九州イノベーションセンター内
運営会社:GZキャピタル株式会社
所在地:〒807-0865 福岡県北九州市八幡西区美吉野町16番 北九州イノベーションセンター(グランモール内)
アクセス:https://maps.app.goo.gl/dkjajSgk6XN8wUqZA
電話 / FAX:093-863-0108 / 093-863-0109
メール:operating@gz-group.co.jp
備考::平米単価5,000円〜 / 利用面積17平米〜
※北九州イノベーションセンターでは、通常オフィス区画も設置予定です。事務所や営業所、コールセンターなど、幅広い用途でご提案させていただきます。
各エリアの状況(2023年10月15日現在)について
左:屋内実証実験フィールド、右:屋外実証実験フィールド
左:オフィス区画「D〜G」、右:オフィス区画「A〜C」
【本件に関するお問い合わせ】
商号:GZキャピタル株式会社
本社:福岡県北九州市八幡西区美吉野町16番 北九州イノベーションセンター(グランモール内)
設立:2022年3月
代表:代表取締役社長 日淺 二郎
資本金:5,000万円
ホームページ:https://gz-group.co.jp/
電話 / FAX:093-863-0108 / 093-863-0109
メールアドレス:operating@gz-group.co.jp
このプレスリリースには、メディア関係者向けの情報があります
メディアユーザー登録を行うと、企業担当者の連絡先や、イベント・記者会見の情報など様々な特記情報を閲覧できます。※内容はプレスリリースにより異なります。
すべての画像
- 種類
- 商品サービス
- ビジネスカテゴリ
- 商業施設・オフィスビル広告・宣伝・PR
- ダウンロード
