[石膏ボード成形ユニットJUPITA]見付の厚みが薄く(20.5mm)シンプルで美しいL型間接照明を販売開始
日建スチール株式会社が製作する、国内唯一の石膏ボード成型ユニットJUPITAより、
間接照明の見付けの折り返しを作らないL型形状モデル【JP-J-L9.5(12.5)不燃】の販売を開始いたします。
同シリーズの、間接照明で最もベーシックな形状である【JP-J9.5(12.5)不燃】がベースとなった形状で、幕板の折り返しをなくすことにより、「より薄く」のニーズにお応えいたします。
【JP-J-L9.5(12.5)不燃】は芯材として鉄板材、スチール骨材の持ち出しサイズに合わせた2種からお選びいただくことができます。
鉄板材は最小20.5mmまで見付けを小さくすることが可能(9.5mmボードを使用した場合)で、昨今の照明器具の革新的な小型化に対応し、省スペースで美しい間接照明の製作に貢献します。
スチール骨材は先端に造作を取り付けたいシーンなどで強度を担保しつつ圧倒的な薄さを可能にします。
・新商品 JP-J-L9.5(12.5)不燃商品ページ
https://jupita.biz/product/jp-j-l/
間接照明の見付けの折り返しを作らないL型形状モデル【JP-J-L9.5(12.5)不燃】の販売を開始いたします。
同シリーズの、間接照明で最もベーシックな形状である【JP-J9.5(12.5)不燃】がベースとなった形状で、幕板の折り返しをなくすことにより、「より薄く」のニーズにお応えいたします。
【JP-J-L9.5(12.5)不燃】は芯材として鉄板材、スチール骨材の持ち出しサイズに合わせた2種からお選びいただくことができます。
鉄板材は最小20.5mmまで見付けを小さくすることが可能(9.5mmボードを使用した場合)で、昨今の照明器具の革新的な小型化に対応し、省スペースで美しい間接照明の製作に貢献します。
スチール骨材は先端に造作を取り付けたいシーンなどで強度を担保しつつ圧倒的な薄さを可能にします。
・新商品 JP-J-L9.5(12.5)不燃商品ページ
https://jupita.biz/product/jp-j-l/
日建スチール株式会社(本社:兵庫県尼崎市、代表取締役:井上 好男)は石膏ボード成型ユニットJUPITAの新商品、JP-L(JP-J-L)9.5(12.5)不燃を発表。間接照明まわりの造作を薄く小さく製作が可能になりました。
 
創業約50年の内装仕上工事業を本業とする日建スチール株式会社が業界問題の「職人不足」を解消するための新規事業として「石膏ボード成型ユニット製造事業のJUPITA(https://jupita.biz/)」を立ち上げました。
その後対応できる形状が増え多くの設計ニーズにも応える製品となっています。
JUPITAは主に間接照明ユニットを主製品としており、それ以外もデザインルーバーやカーテンボックスなど、内装役物を幅広くカバーしています。
すべての商品は
・オーダーメイドで特殊なデザインやサイズ・角度調整も可能!
・取り付けはビスを打つだけの簡単施工で、1ユニット(910サイズ)で2分程度で完了!
・角を調整する塩ビコーナー材が不要だからパテ処理もジョイントのみで最小限!
など広い特性を持ち、すべての商品が現場の施工性を大きく上げ、工数短縮に貢献する製品となっています。
[参考]JP9.5取り付け動画
https://www.youtube.com/watch?v=ZyMa_SfXRZ0
※JUPITAは全製品同様の施工方法です)
JUPITAは施工性だけが価値ではなく「形状」に関しても軽鉄・ボード施工では不可能な薄さやミニマム形状で製作ができます。
さらに本来のデザインでは、金物や人工木材などの建材を使い対応している45°以下のエッジ形状やR形状であっても、JUPITAユニットなら内装施工時の石膏ボードと同じ厚みで取り合うシームレス化が大きな売りです。
上記の建材採用で、経年の不具合事例で挙がることの多い「現場施工の石膏ボード取合いにおける仕上げのひび割れ」に対し、防止効果を発揮していることが、シームレス化と合わせてJUPITAの付加価値です。
多数の設計スペックインを受けており、大型商業施設、ホテル、オフィス、高級ブランド店舗などのご採用は、約1000件の受注実績があり、高いリピート率も製品の信頼を物語っております。
近年では、建築融合した建築化照明や、リビング、寝室等の居住空間に間接照明の持つ「癒やし・やすらぎ」「高級感の演出」で多くのご採用をいただいております。
■JP-J-L9.5(12.5)不燃について
普通の石膏ボードと同様に扱いやすく、簡単な取付で薄型の間接照明を実現できるユニットです。
内装石膏ボードと異種素材の取り合いで、発生率の高い「ひび割れ」「目違い」等の不具合や意図しない「段差」を石膏ボードの同素材で抑制いたします。
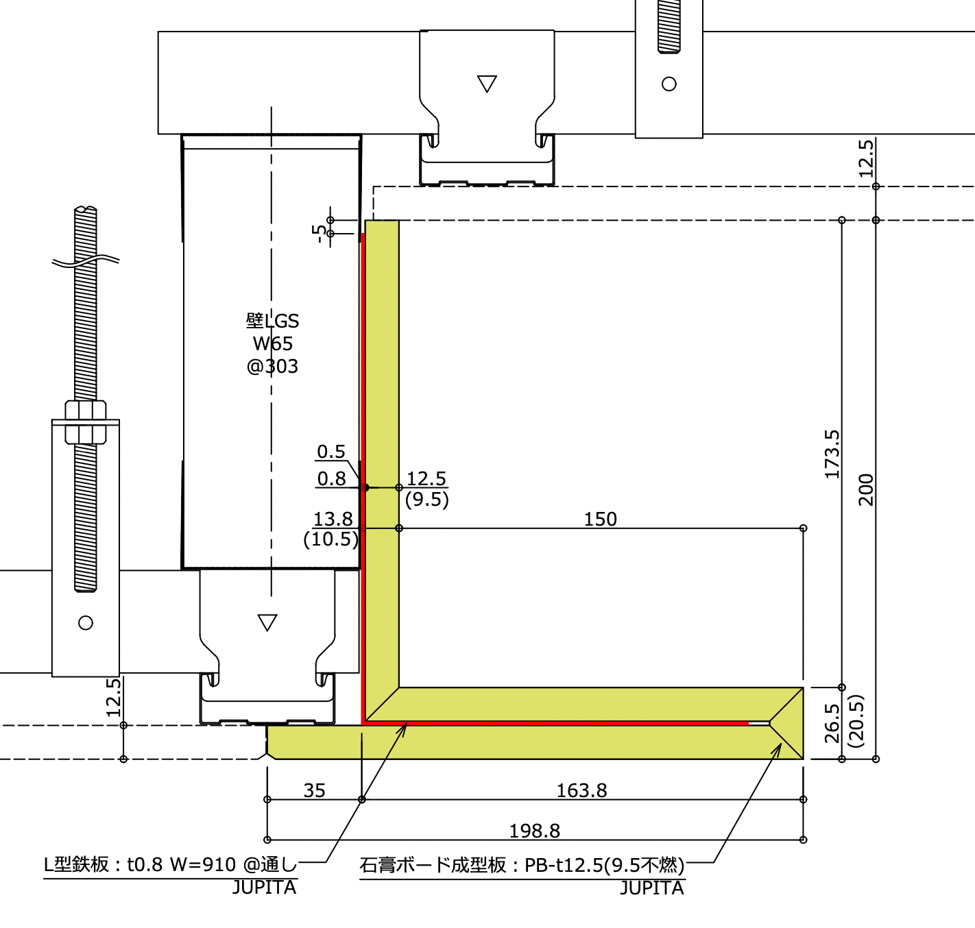
照明台座の総厚みは、使用する石膏ボードで変わります。
鉄板材
・9.5mm使用の場合、20.5mm
・12.5mm使用の場合、26.5mm
チャンネル骨材
・9.5mm使用の場合、31mm
・12.5mm使用の場合、37mm
形状寸法は、建築設計・内装デザイナーさまのご希望のW×Hの各寸法をmm単位で再現いたします。
下がり壁部分に排煙等で必要になるボード開口もオプションで承ります。
 
不燃石膏ボード (t9.5、t12.5)
C型鋼 11×40×11× t1.0
■ユニットサイズ
1ユニット L=910
■価格
お問合せください
■主なお客様
※一部抜粋 敬称略
ゼネコン関係
・大和ハウス工業株式会社
・株式会社大林組
・清水建設株式会社
・大成建設株式会社
・株式会社竹中工務店
・鹿島建設株式会社
・株式会社長谷工コーポレーション
・戸田建設株式会社
他
テナント工事業者
・株式会社乃村工藝社
・株式会社丹青社
・株式会社スペース
・株式会社ラックランド
・高島屋スペースクリエイツ株式会社
他
■お問い合わせ先
会社名 :日建スチール株式会社(https://nikken-st.co.jp/)
事業責任者 :三輪 賢二
公式サイト :https://jupita.biz/
※問い合わせフォームございますTEL :03-5875-7702
 
正面
正面斜め上
斜め
横
後
出隅とストレートジョイント
入隅とストレートジョイント
創業約50年の内装仕上工事業を本業とする日建スチール株式会社が業界問題の「職人不足」を解消するための新規事業として「石膏ボード成型ユニット製造事業のJUPITA(https://jupita.biz/)」を立ち上げました。
その後対応できる形状が増え多くの設計ニーズにも応える製品となっています。
JUPITAは主に間接照明ユニットを主製品としており、それ以外もデザインルーバーやカーテンボックスなど、内装役物を幅広くカバーしています。
すべての商品は
・オーダーメイドで特殊なデザインやサイズ・角度調整も可能!
・取り付けはビスを打つだけの簡単施工で、1ユニット(910サイズ)で2分程度で完了!
・角を調整する塩ビコーナー材が不要だからパテ処理もジョイントのみで最小限!
など広い特性を持ち、すべての商品が現場の施工性を大きく上げ、工数短縮に貢献する製品となっています。
[参考]JP9.5取り付け動画
https://www.youtube.com/watch?v=ZyMa_SfXRZ0
※JUPITAは全製品同様の施工方法です)
JUPITAは施工性だけが価値ではなく「形状」に関しても軽鉄・ボード施工では不可能な薄さやミニマム形状で製作ができます。
さらに本来のデザインでは、金物や人工木材などの建材を使い対応している45°以下のエッジ形状やR形状であっても、JUPITAユニットなら内装施工時の石膏ボードと同じ厚みで取り合うシームレス化が大きな売りです。
上記の建材採用で、経年の不具合事例で挙がることの多い「現場施工の石膏ボード取合いにおける仕上げのひび割れ」に対し、防止効果を発揮していることが、シームレス化と合わせてJUPITAの付加価値です。
多数の設計スペックインを受けており、大型商業施設、ホテル、オフィス、高級ブランド店舗などのご採用は、約1000件の受注実績があり、高いリピート率も製品の信頼を物語っております。
近年では、建築融合した建築化照明や、リビング、寝室等の居住空間に間接照明の持つ「癒やし・やすらぎ」「高級感の演出」で多くのご採用をいただいております。

■JP-J-L9.5(12.5)不燃について
普通の石膏ボードと同様に扱いやすく、簡単な取付で薄型の間接照明を実現できるユニットです。
内装石膏ボードと異種素材の取り合いで、発生率の高い「ひび割れ」「目違い」等の不具合や意図しない「段差」を石膏ボードの同素材で抑制いたします。
照明台座の総厚みは、使用する石膏ボードで変わります。
鉄板材
・9.5mm使用の場合、20.5mm
・12.5mm使用の場合、26.5mm
チャンネル骨材
・9.5mm使用の場合、31mm
・12.5mm使用の場合、37mm
形状寸法は、建築設計・内装デザイナーさまのご希望のW×Hの各寸法をmm単位で再現いたします。
下がり壁部分に排煙等で必要になるボード開口もオプションで承ります。
断面図
不燃石膏ボード (t9.5、t12.5)
C型鋼 11×40×11× t1.0
■ユニットサイズ
1ユニット L=910
■価格
お問合せください
■主なお客様
※一部抜粋 敬称略
ゼネコン関係
・大和ハウス工業株式会社
・株式会社大林組
・清水建設株式会社
・大成建設株式会社
・株式会社竹中工務店
・鹿島建設株式会社
・株式会社長谷工コーポレーション
・戸田建設株式会社
他
テナント工事業者
・株式会社乃村工藝社
・株式会社丹青社
・株式会社スペース
・株式会社ラックランド
・高島屋スペースクリエイツ株式会社
他
■お問い合わせ先
会社名 :日建スチール株式会社(https://nikken-st.co.jp/)
事業責任者 :三輪 賢二
公式サイト :https://jupita.biz/
※問い合わせフォームございますTEL :03-5875-7702
このプレスリリースには、メディア関係者向けの情報があります
メディアユーザーログイン既に登録済みの方はこちら
メディアユーザー登録を行うと、企業担当者の連絡先や、イベント・記者会見の情報など様々な特記情報を閲覧できます。※内容はプレスリリースにより異なります。
すべての画像
