「ディアレイシャス高井戸Ⅱ」販売開始のお知らせ
センチュリー21レイシャス(株式会社レイシャス、本社:東京都中央区、代表:住吉 秀⼀)は、本年1⽉5⽇(木)より東京都杉並区において自社で販売・管理を行う投資⽤のブランドマンション「ディアレイシャス高井戸Ⅱ」の販売を開始いたしました。
- 物件の特徴
当物件は投資⽤マンションとして自社で販売・管理を行う、ブランドマンション「ディアレイシャスシリーズ」の70棟目となる物件です。杉並区高井戸東。<ディアレイシャス高井戸Ⅱ>が建つこの地域は、良好な住環境を保護するために、建物の高さ制限や、敷地境界から建物の外壁までの距離の制限などが定められています。したがって、現地付近はもちろん、駅までの動線も、閑静な雰囲気と優しい緑の樹々に包まれたゆったりと落ち着きのある周辺環境に守られています。アクティブな毎日を過ごす方々にとって、住まいは癒しの場所。ここには、オンとオフが自然に切り替わる環境が用意されています。
- デザイン
シンボルツリーが印象的なエントランス。その奥に佇む迎賓空間は、癒しと寛ぎを提供してくれます。
ディアレイシャス高井戸Ⅱ
エントランスアプローチ
- アクセス
「渋谷」へ16分、「新宿」へも19分と、ふたつのビックターミナルステーションへ身近にアクセスできるのが魅力です。また、「吉祥寺」へも8分とスムーズに移動できます。スマートな交通アクセスは日常にゆとりをもたらしてくれます。
アクセス
- ロケーション
徒歩7分のスーパー「スーパーバリュー杉並高井戸店」をはじめ、京王井の頭線「高井戸」駅には、駅SHOP「京王リトナード高井戸」があり、ベーカリー&カフェや夜遅くまで営業しているスーパー「キッチンコート高井戸店」が入店しています。駅を降りてすぐに買い物ができる便利な環境が整っています。
ロケーションイメージ
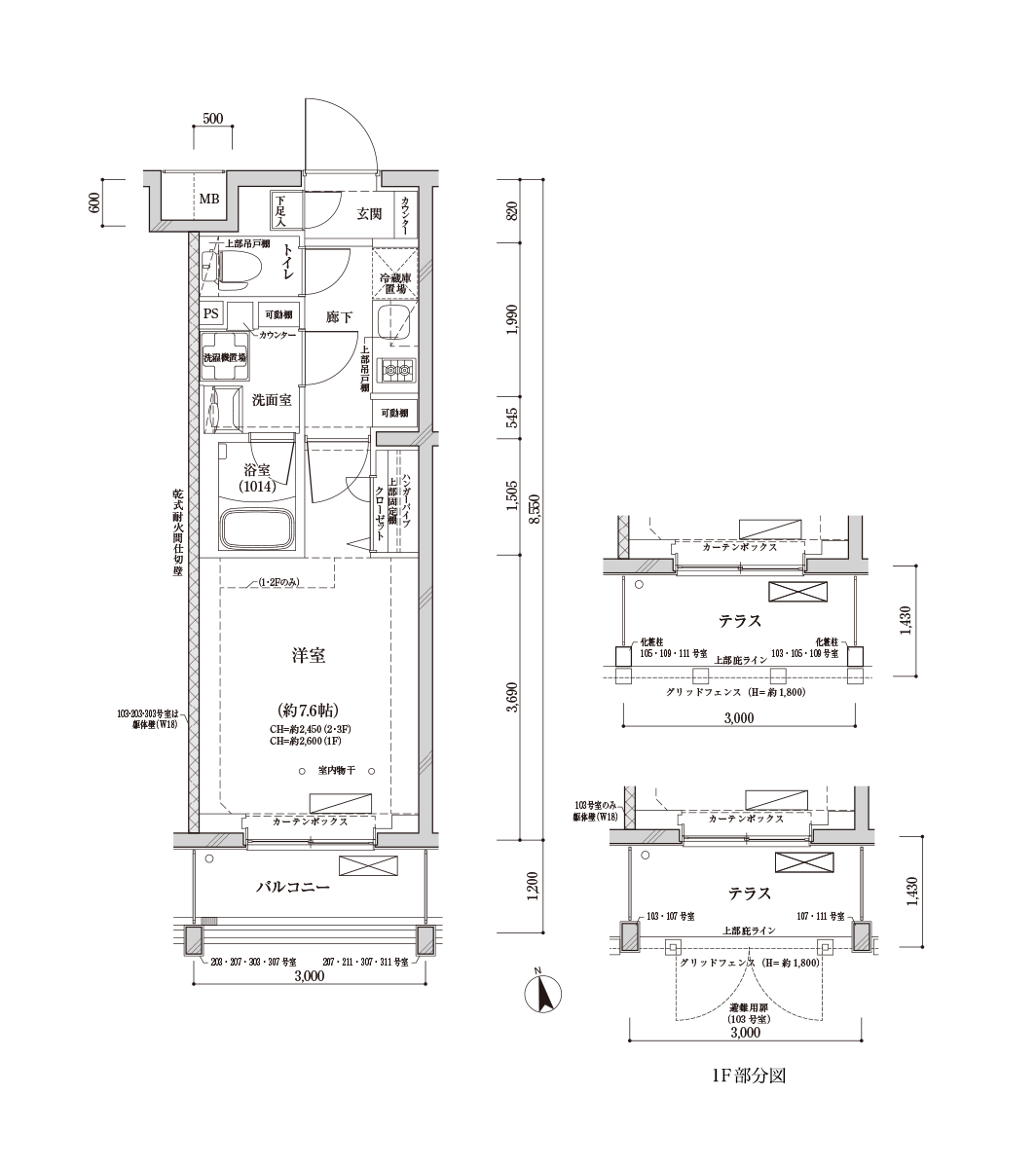
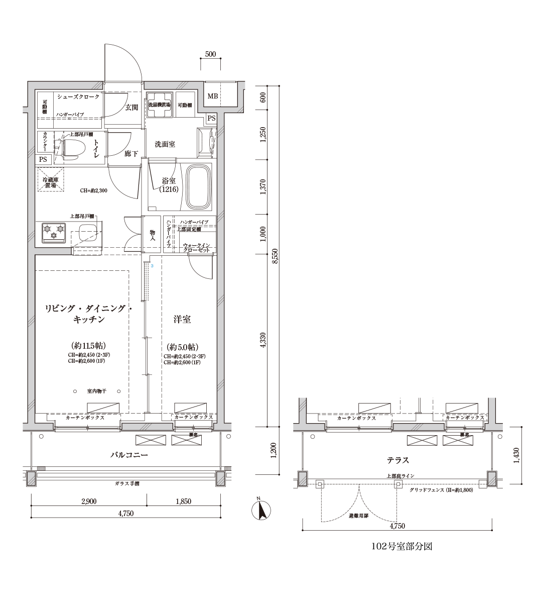
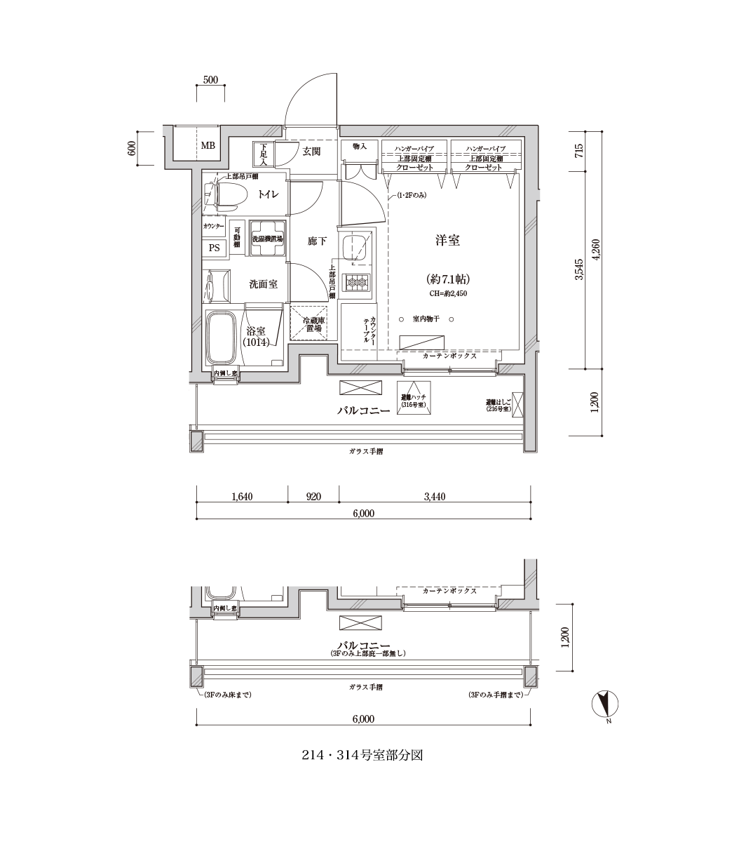
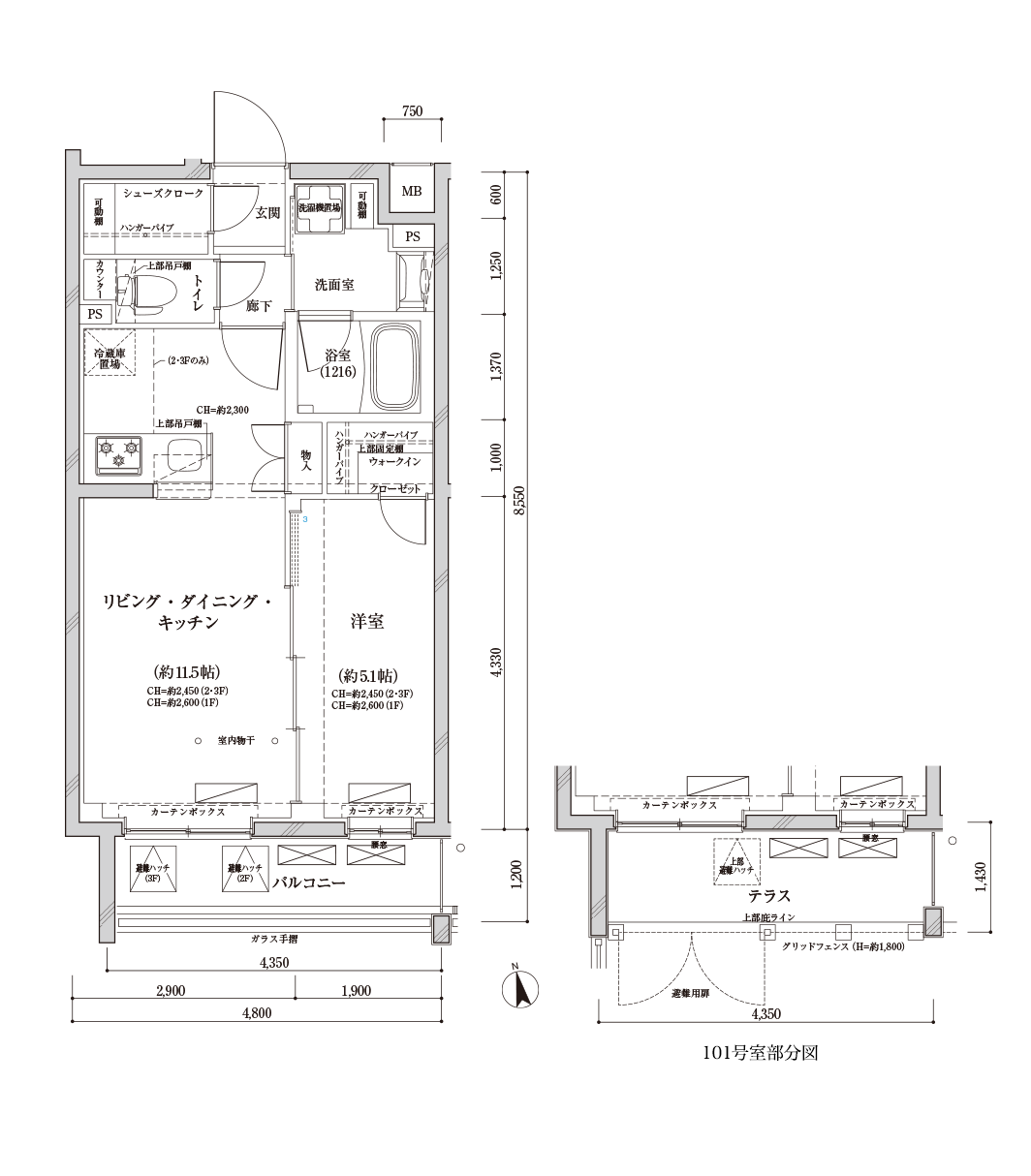
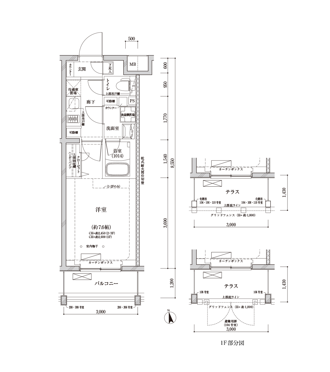
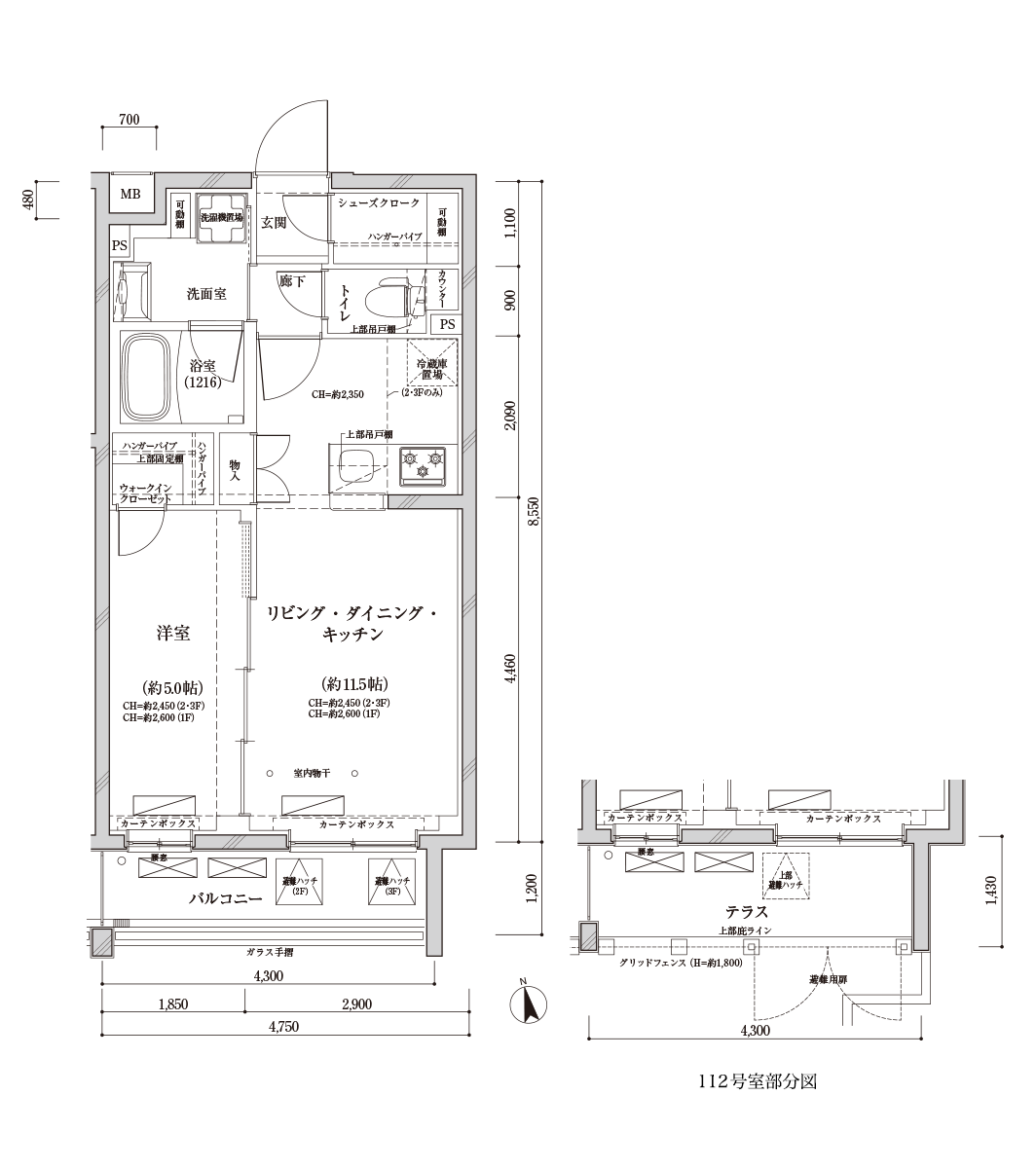
- プラン
Aタイプ
Bタイプ
C1タイプ
C2タイプ
Dタイプ
E1タイプ
E2タイプ
- 物件概要

| 名称 | ディアレイシャス高井戸Ⅱ |
| 所在地 | 東京都杉並区高井戸東二丁目548-1、548-23、548-42、550-1、550-17(地番) 東京都杉並区高井戸東二丁目6番18(住居表示) |
| 交通 | 京王井の頭線「高井戸」駅徒歩10分 |
| 用途地域 | 第1種低層住居専用地域 |
| 地域・地区 | 第1種高度地区・準防火地域・日影規制3h/2h(1.5m)・最高高さ10m・敷地面積の最低限度80㎡ |
| 建ぺい率 | 38.58%(許容40%) |
| 容積率 | 79.64%(許容80%) |
| 敷地面積 | 1533.31㎡(登記簿) 1670.50㎡(実測)(道路後退部6.01㎡・自主管理地11.73㎡含む) 1652.76㎡(建築確認) |
| 建築面積 | 637.52㎡ |
| 延床面積 | 1653.45㎡ |
| 容積対象床面積 | 1316.10㎡ |
| 構造・規模 | 鉄筋コンクリート造(壁式)、地上3階 |
| 総戸数 | 45戸(他に管理室1戸) |
| 販売戸数 | 45戸 |
| 間取り | 1K(36戸)1LDK(9戸) |
| 専有面積 | 25.54㎡(9戸)〜41.04㎡(3戸) |
| バルコニー面積 | 3.60㎡(18戸)〜7.21㎡(8戸) |
| テラス面積 | 4.29㎡(9戸)〜8.59㎡(1戸) |
| 建築確認番号 | 第TBTC21000495号(令和4年2月14日) |
| 分譲後の権利形態 | 敷地および建物共用部分は専有面積割合による所有権の共有、建物専有部分は区分所有権 |
| 売主 | 株式会社レイシャス |
| 設計・監理 | PCMC・アーキテクト・サポート株式会社 一級建築士事務所 |
| 施工 | 株式会社 小川建設 |
| 分譲後の管理形態 | 区分所有者全員で管理組合を結成し、管理会社へ委託 |
| 管理会社 | 株式会社レイシャス |
| 設計図書閲覧場所 | 株式会社レイシャス |
| 竣工 | 2023年1月下旬 |
| 入居予定 | 2023年2月上旬予定 |
- 自社ブランドマンション「ディアレイシャス」シリーズの特徴
センチュリー21レイシャスでは、東京、名古屋を中心に自社ブランドマンション「ディアレイシャスシリーズ」を展開しております。駅徒歩10分以内の好立地で、人気設備を備えた物件は、ご入居者様にも好評となっており、賃貸稼働率98%以上を実現しております。
- センチュリー21レイシャスについて
東京23区を中⼼に、⾃社ブランドの投資⽤マンション開発・販売・管理を⾏っている。将来を⾒すえた資産形成を「真に価値あるマンション経営」という形で提案している。専任のコンサルタントは税務や法律に渡る幅広い知識を習得しており、FP(ファイナンシャルプランナー)や相続の資格保有者も多数在籍。不動産にとどまらず、顧客の資産運用や相続全般の支援を行なっている。
このプレスリリースには、メディア関係者向けの情報があります
メディアユーザーログイン既に登録済みの方はこちら
メディアユーザー登録を行うと、企業担当者の連絡先や、イベント・記者会見の情報など様々な特記情報を閲覧できます。※内容はプレスリリースにより異なります。
すべての画像
