新しいプランが誕生!あなたの “好き” で、好きな暮らしをデザインするお家「NONDESIGN」ガレージ付き住宅リリース
住む人が自分を自由に表現できる規格住宅、新プラン発表!

自分の “好き” でデザインする「NONDESIGN」
NONDESIGNはその名の通り「デザインしない家」。これまでの住宅が提案してきたのは、構造や機能に重点を置いた「モノ」としての家。もちろんそれは安心して暮らすためには大切なこと。SNSが生活の一部になりファッションもグルメもボタン1つで手に入る。そんな自分の “好き” に囲まれた暮らしはもはや当たり前。だったら家はどうだろうか。「家は毎日を楽しむ場所」 それぞれの人生を、思いのままに表現できる自由な家をつくりたい。自分の “好き” を詰め込んで、毎日を自分らしくデザインする。そんなイメージから、NONDESIGNは生まれました。
NONDESIGN GARAGE プロダクト概要
- ガレージのあり方は収納から暮らしへ -
近年、クルマやバイクを「所有する」だけでなく、「楽しむ」スタイルへと人々の価値観が変化してきた。ライフスタイルの多様化が進む中で、趣味や暮らしの延長としてのガレージ空間が注目されている。背景には、働き方の変化や自宅時間の増加により、自分の好きなものとじっくり向き合う時間を大切にしたいという想いがある。これまでのガレージは、駐車場や倉庫のような“モノを置く場所”が一般的だった。しかし、自宅ガレージの魅力といえば、愛車を眺めながら音楽を聴いたり、整備やDIYを楽しんだり、自分だけの“秘密基地”として過ごせること。照明・収納・レイアウトまですべてを自分好みに設計できるのも魅力だ。そんな“好き”をとことん楽しむ暮らしを叶えるのが、「NONDESIGN GARAGE」である。

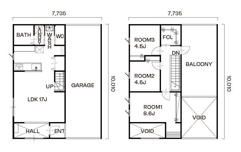
NONDESIGNの特徴であるシンプルなBOX型を活かしたガレージハウス。
2台駐車も余裕の奥行き10m。車いじりを楽しむも良し、家族とのアウトドアスペースとして使うも良し。楽しみ方は無限大。

吹き抜けの玄関を抜けると広がる17帖のLDK。対面式のダイニング・キッチンで家族とのコミュニケーションもとりやすく、会話も弾む設計です。水廻りを1箇所に集約し、家事動線にも配慮。

書斎を並設した落ち着いた大人モダンな8.6帖の寝室。DIYやテレワークなど、集中したい自分時間にも最適な空間です。

4.5帖のシンプルな子ども部屋。廊下に2帖のファミリークローゼットを配置し、家族の収納を一括管理することでそれぞれのプライベートスペースをスッキリ保つことができます。
<フロアプラン>
▼NONDESIGN GARAGE/ 本体価格1,950万円(税込価格 / 2,145万円)

延床面積 / 138.90㎡(42.02坪)
1F床面積 / 77.42㎡(23.42坪)
2F床面積 / 61.48㎡(18.60坪)
<プロダクトコピー>
あなたの“好き”で、好きな暮らしをデザインするお家。
自分らしいライフスタイルを楽しむなら、デザインされた家よりも、自分たちの “好き” で、
デザインしていけるNONDESIGNな家がいい。
例えば、Tシャツのタグの位置や色がちがうだけでデザインを楽しめるように、
ワンポイントでも “好き” なアクセントを足せば、そこはあなただけの、あなたらしい家になる。
NONDESIGNは、あなたの “好き” なライフスタイルが加わってデザインが完成する家。
お気に入りの暮らしと“好き”があふれる空間で、毎日をもっともっとカラフルに。
<プロダクトサイト>
▼NONDESIGNはこちら
URL:https://unstandard.jp/nondesign
UNSTANDARDは、NONDESIGNを筆頭に規格住宅を展開する規格住宅ネットワークです。新築事業が初めてでも安心してスタートできる。充実したサポートシステム。まずはご相談ください。
URL:https://unstandard.jp/contact/?genre=genre01
▼UNSTANDARD MEDIAはこちら
URL:https://unstandard.jp/media
「LIFE IS COLORFUL.」をテーマにライフスタイルや暮らし方を提案。ユーザーにとっての自分らしく人生
を楽しむ “場” について参考になる事例、アイデアなどを提供しライフスタイルへの関心が強いユーザーが集うプラットフォームを目指しています。
会社概要
株式会社LIFE QUARTET
代表取締役:山本航聡
本部:〒514-0815 三重県津市藤方1036番地1
支店:〒450-0002 愛知県名古屋市中村区名駅1-1-1 JPタワー名古屋21F
〒453-0015 愛知県名古屋市中村区椿町12-8 椿町ビル2C
事業内容:ローコスト住宅の開発、住宅部資材の販売、セールススキルの向上、集客ノウハウの提供、集客ツールのデザイン・企画、各種セミナーの運営・講演
株式会社LIFE QUARTET:https://lifequartet.jp
UNSTANDARD:https://unstandard.jp
株式会社HARMONY
代表取締役:山本航聡
本部:〒514-0815 三重県津市藤方1036番1
事業内容:自然素材を使用した工務店、建築士による設計、土地の売買や相続等を扱う不動産
株式会社HARMONY:https://shizensozainoie.co.jp
このプレスリリースには、メディア関係者向けの情報があります
メディアユーザー登録を行うと、企業担当者の連絡先や、イベント・記者会見の情報など様々な特記情報を閲覧できます。※内容はプレスリリースにより異なります。
すべての画像
