「WOODBOX」の人気商品住宅「STASH」がリニューアル!家族との時間を大切にできる家
デザイン・性能・価格を追求した1200万円から “理想の家づくり”が叶う規格住宅

【プロダクト概要】
WOODBOXシリーズでも人気を誇る「STASH」が、スタイルをアップデートしリニューアル。
コンセプトは「家族との時間を大切にできる家」。
白のガルバリウムと天然木が調和する、シンプルナチュラルな外観。
間接照明がやさしく照らすLDK。
階下とのつながりを感じられるフリースペース。
モノトーンで設えた、落ち着きのある寝室。
自分の”好き”で彩る子ども部屋。
デザインと使い勝手の良さを兼ね備えた、家族の時間を豊かに彩る住まいが誕生した。
【プロダクトデザイン】





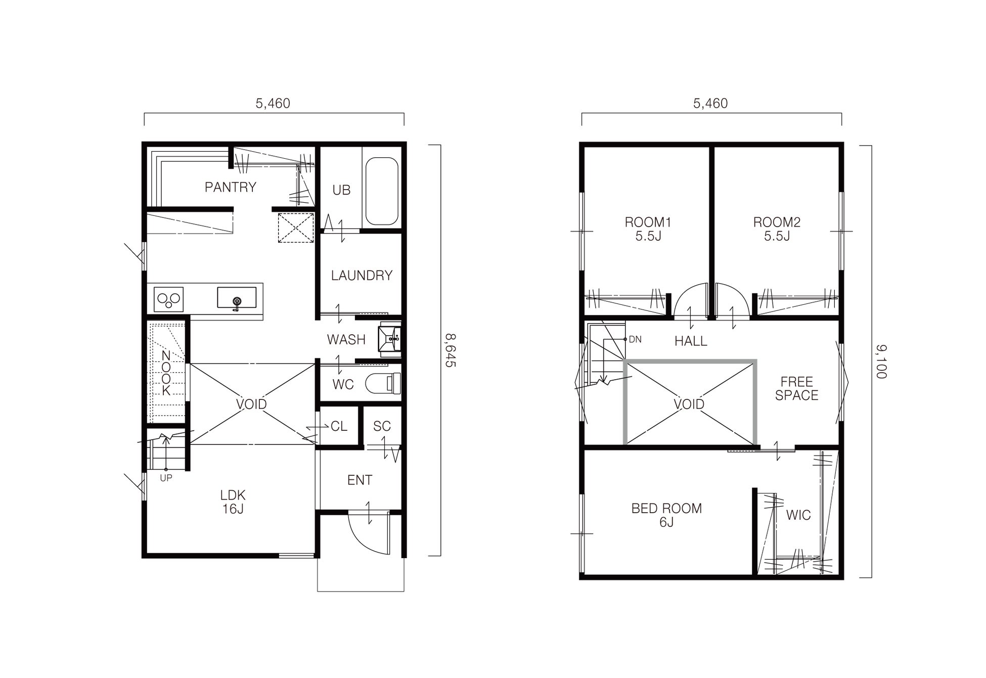
【フロアプラン】

1F
水廻りを集約し、3帖のパントリーを設けた忙しいママのための家事動線に配慮した設計。 LDKの一角に設けたヌックは、自分だけの時間を過ごしながらも家族の気配を感じられるスペースに。
2F
吹き抜けでつながる2階フロアには、大容量のWICを備えた寝室と5.5帖の洋室2部屋を完備。 家族構成の変化やライフスタイルに合わせて柔軟に対応可能な設計です。
延床面積 / 90.25㎡(27.3坪)
1F床面積 / 45.54㎡(13.78坪)
2F床面積 / 44.71 ㎡(13.52坪)

【WOODBOXとは?】
WOODBOXはデザイン・性能・価格を追求した1200万円から “理想の家づくり”が叶う規格住宅。
規格住宅は専門家によって設計・耐震構造計算が行われているので、安心感が高く 、決められたプランの中で自由にデザインや設備を選択できます。
建築時の見える費用だけでなく、住み始めてからかかる光熱費などWOODBOXの住宅は生涯コストを意識した家づくりをおこなっています。
性能の良い家ほど月々の光熱費が少なく、またメンテナンス性を高めることで維持費を抑えることができ、ランニングコストのかからない家になります。
URL:https://unstandard.jp/lineup/
【プロダクトサイト】
STASHの公式サイトはこちら
https://unstandard.jp/lineup/woodbox_stash/
LIFE QUARTETは住宅ブランド「UNSTANDARD」の規格住宅ネットワークを運営。私たちと同じ視点で家づくりをする全国のパートナーと一緒に、今までの住宅業界の常識に捉われず、家を建てたその先も家が人生を楽しむ場所であるように、ユーザー視点での家づくりを提案しています。
URL:https://lifequartet.jp
UNSTANDARDは、NONDESIGNを筆頭に商品住宅を展開する商品住宅ネットワークです。新築事業が初めてでも安心してスタートできる、充実したサポートシステム。まずはご相談ください。
URL:https://biz.unstandard.jp
【UNSTANDARD MEDIAはこちら】
「LIFE IS COLORFUL.」をテーマにライフスタイルや暮らし方を提案。ユーザーにとっての自分らしく人生を楽しむ “場” について参考になる事例、アイデアなどを提供しライフスタイルへの関心が強いユーザーが集うプラットフォームを目指しています。
URL:https://unstandard.jp/media
会社概要
株式会社LIFE QUARTET
代表取締役:山本航聡
本部:〒514-0815 三重県津市藤方1036番地1
支店:〒450-0002 愛知県名古屋市中村区名駅1-1-1 JPタワー名古屋21F
〒453-0015 愛知県名古屋市中村区椿町12-8 椿町ビル2C
事業内容:ローコスト住宅の開発、住宅部資材の販売、セールススキルの向上、集客ノウハウの提供、集客ツールのデザイン・企画、各種セミナーの運営・講演
株式会社LIFE QUARTET:https://lifequartet.jp
UNSTANDARD:https://unstandard.jp
株式会社HARMONY
代表取締役:山本航聡
本部:〒514-0815 三重県津市藤方1036番地1
事業内容:自然素材を使用した工務店、建築士による設計、土地の売買や相続等を扱う不動産
株式会社HARMONY:https://shizensozainoie.co.jp
このプレスリリースには、メディア関係者向けの情報があります
メディアユーザー登録を行うと、企業担当者の連絡先や、イベント・記者会見の情報など様々な特記情報を閲覧できます。※内容はプレスリリースにより異なります。
すべての画像
