【グッドデザイン賞ベスト100等のデザイン各賞を受賞した建築の概要を公開!】エリアノとtyfaによる建築作品「巡る間」の計画概要について
~建設・解体・移築を容易にする木造住宅の新しいプロトタイプ~

■ 住まい手が環境をつくる循環する建築
巡る間は、将来道路拡幅が予定されている交通量の多い道路沿いにたつ60平米に満たない小住宅である。道路拡幅がいつ行われるかは定かではないが、この住宅は物理的な寿命よりも前に取り壊される運命にあることは想像に難くない。建築の循環に取り組む藤貴彰、動産建築に取り組む鳥海宏太、新しい大工像を構造の観点で模索する金田泰裕の3人で考えた末、近所のホームセンターでも購入可能なDIY規格木材をプレカットせずにボルトやビスで留めつけるのみで、主架構を成立させることとした。これにより、容易に建設・解体・移築ができ、また仮に移築されなかったとしても転用可能な状態で貯木されており、廃棄物にすることなく部材の循環性富んだサーキュラー建築を実現することができる。
■ 光と風の循環
コンテクストとしての光と風
光と風は地球が誕生した瞬間から存在し、地球がなくなるその日まで存在し続ける。また、世界中を見回しても光と風がない地域はない。歴史性・地域性の最たるコンテクストである。


朝晩で風向きの変わる谷戸の環境を住みこなす
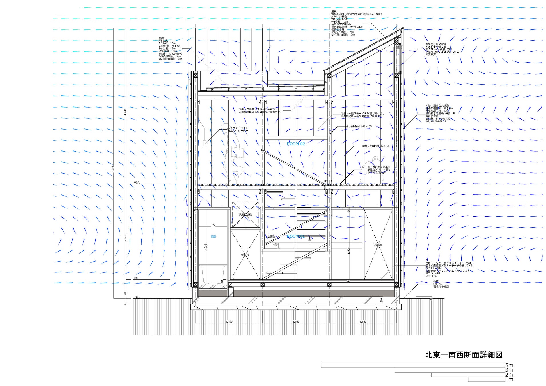
敷地は海が近く小山に囲われており、陸と海の比熱の違いから昼と夜で風向きが変わる海陸風が吹く。前面道路側は熱負荷の最も高い南西面であり、交通量も多く、プライバシーの観点でも開口部を設けるのが容易ではないことから、年間を通して採光・通風を充足できるように環境シミュレーションにより方位を最適化した3つのハイサイドライトを屋根に設けることとした。ハイサイドライトからの光や風はスノコ状の2階の床を介して1階にも届く様になっている。

機械設備を適切に使う
極力パッシブに過ごすことを理想としながらも、機械空調も抜き去り難く存在する環境の要素である。夏は2階のエアコンから冷気を下ろし、冬は1階の床暖房による上昇気流によって、スノコ床を介して空気のサーキュレーションを起こし、一次消費エネルギーの削減と快適性を両立している。夏と冬の様子について住まい手に伺ってみると、夏はルームエアコン1台で空間全体が十分に涼しく、冬場も床暖房のみでTシャツで過ごせるほど快適とのことだった。

■ 汎用性のある木造2階建て住宅構造のオルタナティブ
プレカットを前提としない木造軸組構造
現在、ほとんどの木造の建設現場で働いている職人に要求される職能は、かつてのノミやカンナを扱うことができ、木材の性質をよく理解し、自由自在に木の加工ができる「大工」とは全く違うものになっていると感じている。決まった仕口・継手はプレカット加工のラインにのり、接合部金物の取付き方までセットで現場搬入されるのが一般的で、現場ではそれらを組み立てれば良い状況である。大工が組み立て屋になった実情に対して、かつての大工職能を一般住宅の現場に、取り戻すことは困難だと思っている。そこでこのプロジェクトでは、「プレカット」を前提としてない構造形式で、軽量な2層の住宅を実現させ、従来の在来軸組み構法や2x4といった構法のオルタナティブとなる木質構造を考案した。
下地サイズの部材で汎用性のある木造2階の建築をつくる
構造材は、1.82x1.82mグリットの交点の柱を105角、それ以外の梁と柱は、全て45x105のマツと杉の企画寸法材で構成されている。これらの小さな部材は、必要長さにカットし、孔開けをするだけのシンプルな加工のみとし、施工プロセスは、徹底的に「簡略化」され、材幅は45mmに統一され「軽量化」している。
また、床には合板を使用せず、45角の根太を70mmピッチと細かく並べ、各梁との交点でビスを2本留めすることで、回転を留めるようなディテールとし、水平剛性を確保した。
構造と環境を融合させる
巡る間では2階の床のみならず、壁及び天井にも合板を使わなかった。ケミカルな接着剤を極力使いたくなかったのがその理由である。代わりに天然鉱物をベースとし、構造耐力を負担できるモイスを外壁の下地として用い、そのまま室内側に現した。光を増幅するキラキラとした質感は、光環境解析にもその効果を加味した。その上、調湿作用もあり快適性を高めてくれる。



■ 住まい手が修理をする権利
建物の寿命は、構造部材の寿命で決まってしまうのが普通である。一般的な仕口と金物で取り付けられた接合部は、部分的に解体するか切断する方法でしか、状態の悪くなった部材を交換することはできない。しかし、この材を添わせて縫うだけの構成であれば、ボルトを外して、部材をとりはずし、同じサイズの材を切って孔あけをして、横から沿わせてボルトで縫い直すだけで、新しい部材と交換が可能なのである。この計画ではいつでも交換可能な作り方をすることで、半永久的に構造体の更新が可能である。
施工性や解体容易性への配慮から、部材を単純に大きくして長寿命化を図るのではなく、小さく取り扱いのしやすい部材で全体を構成し、部材点数を最小限とした結果、内壁はなく配管やビスやボルトが現わしとなり構成が一目瞭然となっている。不具合も一目瞭然な為、住まい手自らホームセンターに赴き大概のことは修繕可能だ。これは、サーキュラーエコノミーにおける「自ら修理し使い続ける権利」を担保するものである。




■ 衣替え感覚で空間をカスタマイズする
住宅に限らずほとんどの建築物において、利用者が制御可能な環境は窓やカーテンの開け閉め、空調スイッチのオンオフ程度である。修繕なども多くの人にとっては容易ではない。この点に日頃から疑問を持っている。巡る間では、2階のスノコ床の上に置く家具によって微気候をコントロールできることに気づいた。住空間においては家具が占める割合は大きいにも関わらず、環境シミュレーションで加味されることは稀である。そこで、季節ごとに衣替え感覚で住まい手が家具配置を変え、季節に合わせた快適性が得られる様に、着衣量や運動量もパラメータとして加味できるPMV(予測平均温冷感申告)の感度解析を行うファーニチャースケープシステムをプログラミングに長けたPOに協力を仰ぎ実験的に構築し、微気候への感受性を高める工夫をした。
実際に季節を変えて訪れてみると、春先は写真10のような形で自然換気を主体として、1・2階の空気の循環を促していたが、夏場になると写真11のように南側の窓辺に畳が置かれていた。キッチンへの直達日射を遮る為と、2階の床面積の1/3を塞ぐことで、残りの範囲のスノコの通過風速を上げ、2階に設置されたエアコンからの涼しい風の気流感をより感じられるように工夫がなされていた。
巡る間では、大きなワンルームのようながらんどうの空間に置かれた家具が、まるで衣服のように適度な快適性を住まい手にもたらす。




■ 建築家が担保すべき環境
簡易なつくりの住宅ながらZEH+を上回るHEAT20 G2(断熱性能等級6)の外皮性能や、設計一次消費エネルギーにおける建築物省エネ法 建築物エネルギー消費性能誘導基準(エコまち法 エネルギーの使用の合理化の一層の促進のために誘導すべき基準)の達成、BEI値0.77を達成している。これらは、住まい手の振る舞いに自由を与える為に必要な最低条件であると考えた。
また、移築の際は、移築先の環境に合わせて、断熱材の厚みを増すことや、ハイサイドライトの位置の変更も可能であり、移築時に部材の破損があっても、移築先の近傍のホームセンターで部材の入手もできる。万が一移築されずに解体となっても、ほぼ製材そのままの材を用いているので、別の用途や他の住宅の一部に用いることも容易である。
巡る間は、都市計画道路をきっかけとした部材の循環、地形が生む海陸風をきっかけとした光や風のサーキュレーション、住まい手の権利に思いを巡らせ、建築家チームが環境に対しての責任を果たした小住宅である。

■ 建物概要
意匠設計:tyfa/Takaaki Fuji + Yuko Fuji Architecture 藤 貴彰
AREANO 鳥海宏太
構造設計:yasuhirokaneda Structure
環境解析協力:合同会社ぽ
施工者:三物建設
所在地:神奈川県逗子市
家族構成:夫婦+子供1人
構造:木造在来軸組工法(プレカットを使用せず)
階数・地上2階
建築面積:29.81㎡ 延床:59.62㎡
竣工年月:2023年3月
UA値:0.46W/㎡K、η AC値:1.2
設計一次エネルギー消費量: 29.1 GJ/年
写真 Takuya seki
■ 用語解説
PMV感度解析
住まい手が自ら室内快適性をコントロールするために、人の着衣量や運動量を加味できるPMV(平均予測温冷感申告)が季節ごとに家具配置と窓の開閉の関係でどの様に変化をするかの解析プログラムを構築した。所有物が生活の中で変化していっても、将来に渡りファインチューニングが可能である。
CFD解析
地形的特性から、風は気象庁のデータ通りに必ずしも吹いていない。そこで、1km四方→500m四方→100m四方→敷地周辺と順に解析を行い、広域の解析結果を次のスケールの入力条件とすることで、敷地周辺の風の流れの精度を高め、ハイサイドライトの向きを定めた。
UDI(Useful Daylight Illuminance)解析
100lx〜2,000lxの範囲の照度が年間を通して得られる割合を可視化した。緑の箇所は、照度が不足している、あるいはオーバーしている箇所である。足りない箇所は照明を補い、オーバーの箇所はロールスクリーンなどで、照度を抑制している。
■取材に関するお問い合わせ
お問合せ先:info@stylecabin.net
電話:03-6826-2377
株式会社エリアノ 鳥海
■メンバーの募集
エリアノではエリアの新しい未来を描けるメンバーを募集しています。
(特に設計、デザインができる方)
エリアの新しい価値を創造し世界と地域と人をつなぐことをミッションに掲げて、建築物や動産の企画・設計・製造・販売から、新事業やサービスの企画・運営、地域活性化支援、宿泊施設運営等幅広い活動をしています。
ぜひ一緒に働きましょう!
勤務形体も柔軟に検討致しますので、まずはお気軽に連絡ください。
連絡先:info@stylecabin.net
すべての画像
- 種類
- 商品サービス
- ビジネスカテゴリ
- 建築・空間デザイン環境・エコ・リサイクル
- 関連リンク
- https://areano.jp/
- ダウンロード
