宮崎市広島一丁目プロジェクト(NTT西日本宮崎支店敷地)NTT広島ビル南棟新築工事の着工について ~広島通りに国内最大級34台の建築用コンテナを集積した商業施設が誕生~
NTTアーバンソリューションズ株式会社
NTT都市開発株式会社(本社:東京都千代田区、代表取締役社長:辻󠄀上 広志)およびNTTアーバンソリューションズ株式会社(本社:東京都千代田区、代表取締役社長:辻󠄀上 広志)は、2022年12月23日に宮崎市及び西日本電信電話株式会社(以下、「NTT西日本」)宮崎支店と締結した「次世代型まちづくりの推進に関する連携協定」(以下、「連携協定」)に基づき、NTT西日本宮崎支店敷地(宮崎市広島1丁目12-1)にて進めております宮崎市広島一丁目プロジェクト(以下、「本計画」)について、2024年2月のNTT広島ビル北棟(高千穂通り側)リノベーション工事着工に引き続き、南棟(広島通り側)の新築工事に着手しました。なお、2024年秋に南棟の一部先行開業を行うとともに、2025年春に現在リノベーション工事中の北棟と合わせて全体開業を予定しています。
■南棟開発コンセプト
個性あふれるローカルマーケット
地域の素材を活かした食物販店や日常的に立ち寄りたくなる飲食店、こだわりの品が揃う物販店等に加え、イベント広場の賑わいが日々の生活に彩りを与えます。テラスで休息しながらお気に入りの店舗を巡り、楽しめる施設をめざします。
南棟外観イメージ
■計画概要
国内最大級となる建築用コンテナ34台を集積し、広島通りに沿って店舗や共用テラス等が連続的に繋がる滞留の場を設ける事で、ウォーカブルで賑わいあふれる街づくりをめざします。
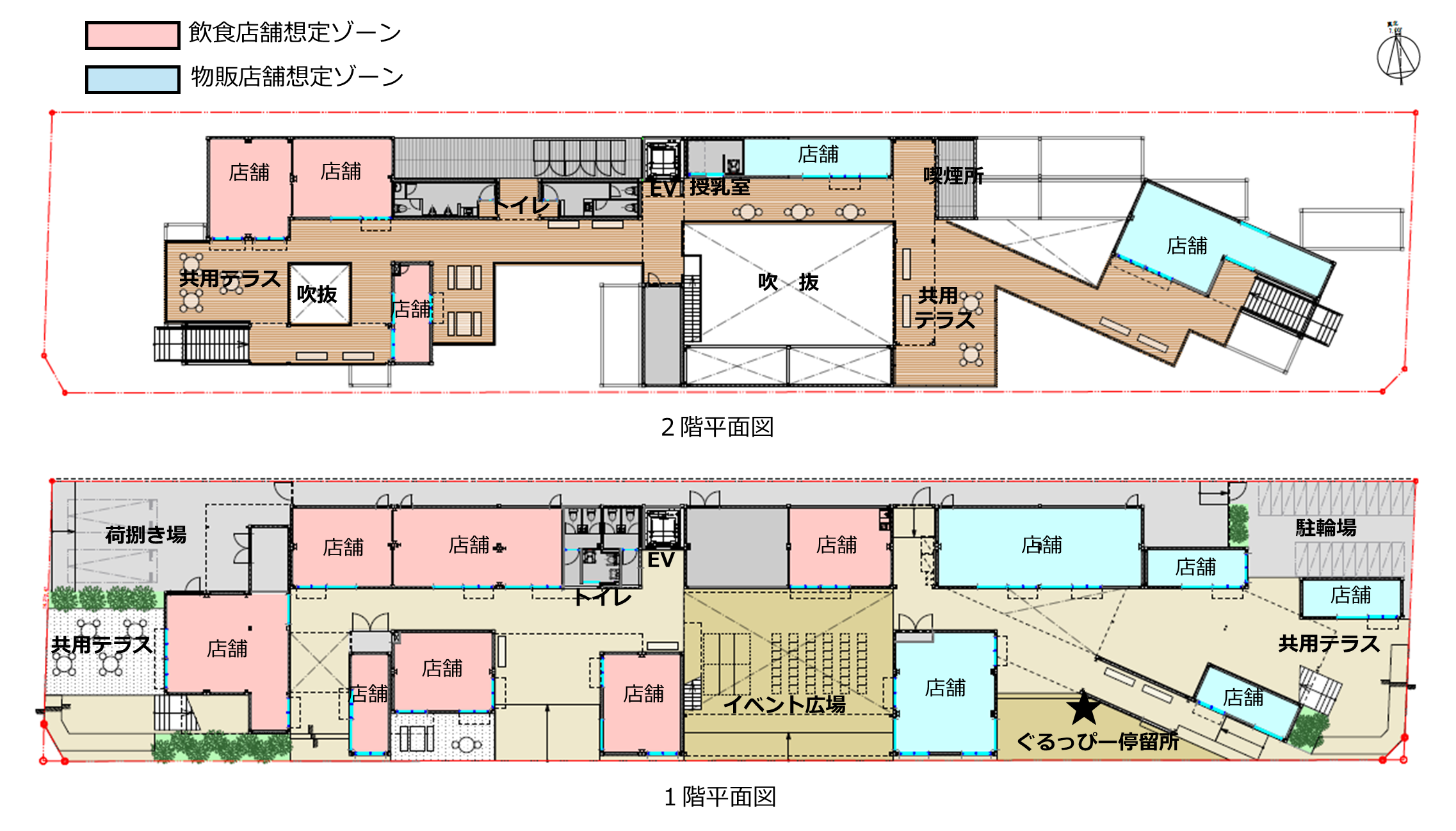
1店舗当たりの面積は最小約4坪(20ftコンテナサイズ)の小規模区画とし、最大17店舗のテナントを誘致します。
施設中央には車両の乗り入れも可能なイベント広場を設け、各種イベントや展示会、キッチンカーによる催事等が可能です。また施設内に複数設ける共用テラスにはベンチ等を設け、市民の皆さまが様々なシーンで自由に過ごしていただける、市民の憩いの場となるような空間とします。
また、敷地内にはグリーンスローモビリティ「ぐるっぴー」の停留所を設け、ぐるっぴーを活⽤したウォーカブルな街づくりを促進します。



■南棟商業施設配置イメージ
建築用コンテナが織りなす特徴ある共用空間で歩きながらショッピングを楽しんでいただけるよう、ゆとりあるデッキを配した2層の建物に1階に12店舗、2階に5店舗を設けます。

■本計画における役割
NTT都市開発株式会社
NTTアーバンソリューションズグループの総合不動産会社として、本計画の開発推進(企画、工事発注、テナントリーシング、運営計画等)を通して宮崎駅周辺エリアの歩いて楽しむ魅力を発信するとともに、賑わいと活力の増進に貢献します。
NTTアーバンソリューションズ株式会社
宮崎市及びNTT西日本宮崎支店と締結した連携協定に基づき、宮崎駅周辺エリアが抱える課題と向き合い、NTTグループ企業が有するICT、エネルギー、環境技術等のリソースを最大限に活用し、個性豊かで活力ある街づくりをサポートします。また、「ぐるっぴー」の運営サポーターとして、宮崎市の宮崎駅周辺エリアの回遊性向上に関する取り組みへ参加しています。
■関連リリース
・宮崎市とNTTグループによる「次世代型まちづくりの推進」に関する連携協定の締結について
(2022年12月23日)
https://www.ntt-us.com/news/2022/12/news-221223-02.html
・宮崎市広島一丁目プロジェクト(NTT西日本宮崎支店敷地)第1弾 NTT広島ビル北棟リノベーション工事の
着工について(2024年2月6日)
https://www.nttud.co.jp/news/detail/id/n26683.html
■事業概要

■【参考】NTT広島ビル北棟 リニューアルイメージ(2024年2月着工済)


■位置図

■【本件に関するお問い合わせ先】
NTT都市開発株式会社 広報室 鈴島、若松 nttud-pr@ntt-us.com
【ご出店に関するお問い合わせ先】
NTT都市開発株式会社 ビル・商業事業本部 nttudretail-gm@ntt-us.com

※現在、北棟の最大6店舗と併せて出店者を募集しております。
※掲載している情報、図面、イメージパースは現段階のもので、今後変更となる可能性があります
※イメージパースの著作権は、「株式会社篠崎弘之建築設計事務所」にあります
すべての画像
- 種類
- その他
- ビジネスカテゴリ
- 商業施設・オフィスビル
- ダウンロード