【最新の都市型民泊】天王寺駅徒歩4分「eni.suite tennoji」が待望のオープン!大人気の都市型バケーションレンタル誕生!【プライベートサウナ付】
2024年7月4日(木) 大阪市阿倍野区に ニッポンのあたらしい滞在体験をつくる 都市型バケーションレンタル「eni.suite tennoji」がグランドオープン。


《Instagram》https://zero-share.com/eni_prs_inst_tnj
《公式予約》https://zero-share.com/tennoji_prt
eni.suite tennojiについて

今回オープンする「eni.suite tennoji」は、地下鉄御堂筋線 天王寺駅から徒歩4分、JR天王寺駅から徒歩7分の場所にある都市型バケーションレンタル施設です。付近には通天閣やてんしば、天王寺動物園など魅力的な観光名所がたくさんあり、旅行者にとって最高のロケーションとなっています。

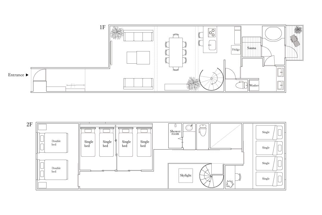
リビングダイニングは約35㎡で広々としており、大きなダイニングテーブルやソファ 対面キッチンは大勢のゲストを迎えるのに最適です。民泊にしてはめずらしく最大16名まで宿泊可能なので、様々な人の生活スタイルに合うよう家電や調理器具 カトラリーも充実。個々の生活に合わせた宿泊が可能となっています。

全体を白を基調としたモノトーン調のインテリアで統一。ラグジュアリーな空間で都会にいながらまるでリゾートで過ごしているような気分を味わう事ができます。
ダイニング奥には大きな吹き抜けと螺旋階段があり、天窓からの光が空間全体に降り注ぐ設計に。

リビングには4人掛けのソファを2台設置。広げればダブルベッドとして使用可能です。テーブルはネスト式になっているので人数に合わせて長さを調整する事もできます。
浴室はプライベートサウナ付き

大阪の宿泊施設にはめずらしくプライベートサウナが設置されているのが当施設の大きな特徴です。
特に水回りの導線にはこだわっており、浴室から直接バルコニーへ出る事ができます。バルコニーには竹細工が施されており、サウナの後はチェアに座って和を感じながら外気でととのう事ができます。


浴室には目線の高さに窓を設置。浴槽やサウナ、バルコニーのどこにいてもコミュニケーションがとれるオープンな空間にしています。同じ空間でそれぞれが好きな事をできる、そんな間取りを目指しました。

洗面室には充実したアメニティを用意。幅のある化粧ミラーとダブルボウルは複数人で使用可能です。
また、他階にも洗面台とシャワールームが別途あるため、複数人での宿泊でも快適に過ごせます。
各寝室




寝室は合計で3部屋あり、最大16名まで宿泊が可能です。その内の1室は仕切りドアもあるので、状況に応じてプライベート空間を増やす事も可能です。(和室:布団4組、洋室1:シングルベッド4台、洋室2:ダブルベッド2台、リビング:ダブルサイズソファベッド2台)
洋室だけでなく和室も完備しているのでお子様連れでも安心。ワークスペースもついているのでちょっとしたお仕事にも最適です。

隣にはSNSで有名なカフェ「SHIMATONERIKO 路地裏 COFFEE ROASTER 」があります。この路地には他にも寿司屋やイタリアン、Barも揃っているので飲食には困りません。特にカフェは行列ができるほどの大人気店。

人気のモーニング
忙しい日は開店前から行列ができる事も。宿のすぐ隣なので行列にも早く並ぶことができるのも嬉しいポイントです。事前予約で大人数テーブルの貸し切りも可能だそうです。


ここ「eni.suite tennoji」で人生に綴られるひとときを過ごしませんか。
ご予約お待ちしております。
<間取り図>

<当施設の概要>
●施設名:eni.suite tennoji
●住所 :〒545-0053 大阪府大阪市阿倍野区松崎町2-3-5
●アクセス :地下鉄御堂筋線 天王寺駅から徒歩4分、JR天王寺駅から徒歩7分
●予約サイト:https://zero-share.com/tennoji_prt ※最低宿泊日数は2泊3日からとなります。
●料金プラン:40,000円~
《eni.公式予約》https://zero-share.com/eni_prt
《Instagram》https://zero-share.com/eni_prs_inst_tnj
<事業主概要>
企業名:株式会社BOA
所在地:〒545-0034 大阪市阿倍野区阿倍野元町4-3
代表者:代表取締役 春田幸一
設立: 2015年11月
事業概要:飲食事業、民泊事業
URL : https://lit.link/boa2007
「都市型バケーションレンタル eni.」 とは

eni.のコンセプト
extraordinary(非日常)
narrative(物語)
identity(自分であること)
忙しい日々を離れて、人生をすこしだけステイしませんか。eni.(エニ)はニッポンのあたらしい滞在体験をつくる都市型バケーションレンタルです。ゆっくりとくつろげる空間づくりをいちばんに考えながら、思い出に残したくなる世界観とインテリアにもこだわりました。リラックスするほどに、本来のジブンを取り戻していく。旅する人たちの物語の1ページをつづる、そんな居場所になりたいと思います。
《eni.公式予約》https://zero-share.com/eni_prt
※最低宿泊日数は2泊3日からとなります。
《Instagram》https://www.instagram.com/eni_no_room/
わたしたちLDKプロジェクトについて

人生に綴られる ひとときをつくる
宿泊は「お客様の時間をお預かりして、快適で価値のある空間とサービスを提供すること」だと私たちは考えています。「また泊まりたい」と思ってもらえる施設をつくりたい。 設備やサービス、インテリア、清掃にいたるまで、 手を抜かず、心をこめる。訪れた人の「人生」 という物語の1ページになるような思い出に残る時間と体験できる宿泊施設を提供します。
企業名: 株式会社LDKプロジェクト
所在地: 〒541-0051 大阪府大阪市中央区備後町2丁目5-6-1409
代表者: 代表取締役 生田博之
事業概要: 民泊施設の運営管理、レンタルスペースの運営管理、不動産賃貸業、清掃業務、貸別荘運営、サウナ事業
【民泊運営代行に関するご相談やご質問があればお気軽にお問い合わせください。】
問い合わせフォーム:https://ldk-pjt.com/service/
【本件に関するお問合わせ・取材等のお申込み先】
株式会社LDKプロジェクト 運営管理担当
E-mail:marketing.div@ldk-pjt.com
すべての画像
