Baseconnectがオフィス移転、リモートベースの働き方に対応した「Baseconnect Kyoto Camp」を新たにオープン
法人営業支援企業情報データベース・次世代型検索エンジンを開発するBaseconnect株式会社(本社:京都府京都市、代表取締役:國重侑輝)は、2022年11月よりオフィスを河原町三条に移転し「Baseconnect Kyoto Camp」として新しくオープンしたことをお知らせいたします。
■ オフィス移転とリニューアルの背景
Baseconnectは、2022年5月1日より新しい働き方としてリモートベースを組織に導入いたしました。リモートベース組織とは、リモートをベースとして繋がる組織です。パフォーマンスの最大化を目的とし、場所と時間に制約を受けず働き方を選択することができます。居住地やオフィスで勤務しているかどうかによって機会や働きやすさが変わらないことを目指しています。
また、リモートをベースとしながらも、チームビルディング強化の観点から、同じ空間で働き、実際に会って対面でのコミュニケーションを取ることの重要性を全員が認識しています。そのため、コミュニケーション活性化や組織力向上のための施策として、メンバー同士がコミュニケーションをより深めることを目指し、2022年11月に京都オフィスを「Baseconnect Kyoto Camp」として、河原町三条に移転オープンしました。
今後リモートがベースであることを前提に、全メンバーが多様性のある働き方を効果的に行えるオフィスとすることで、より円滑なコミュニケーション環境を構築し、事業及び組織の拡大を進めてまいります。
■ 新オフィス「Baseconnect Kyoto Camp」の概要
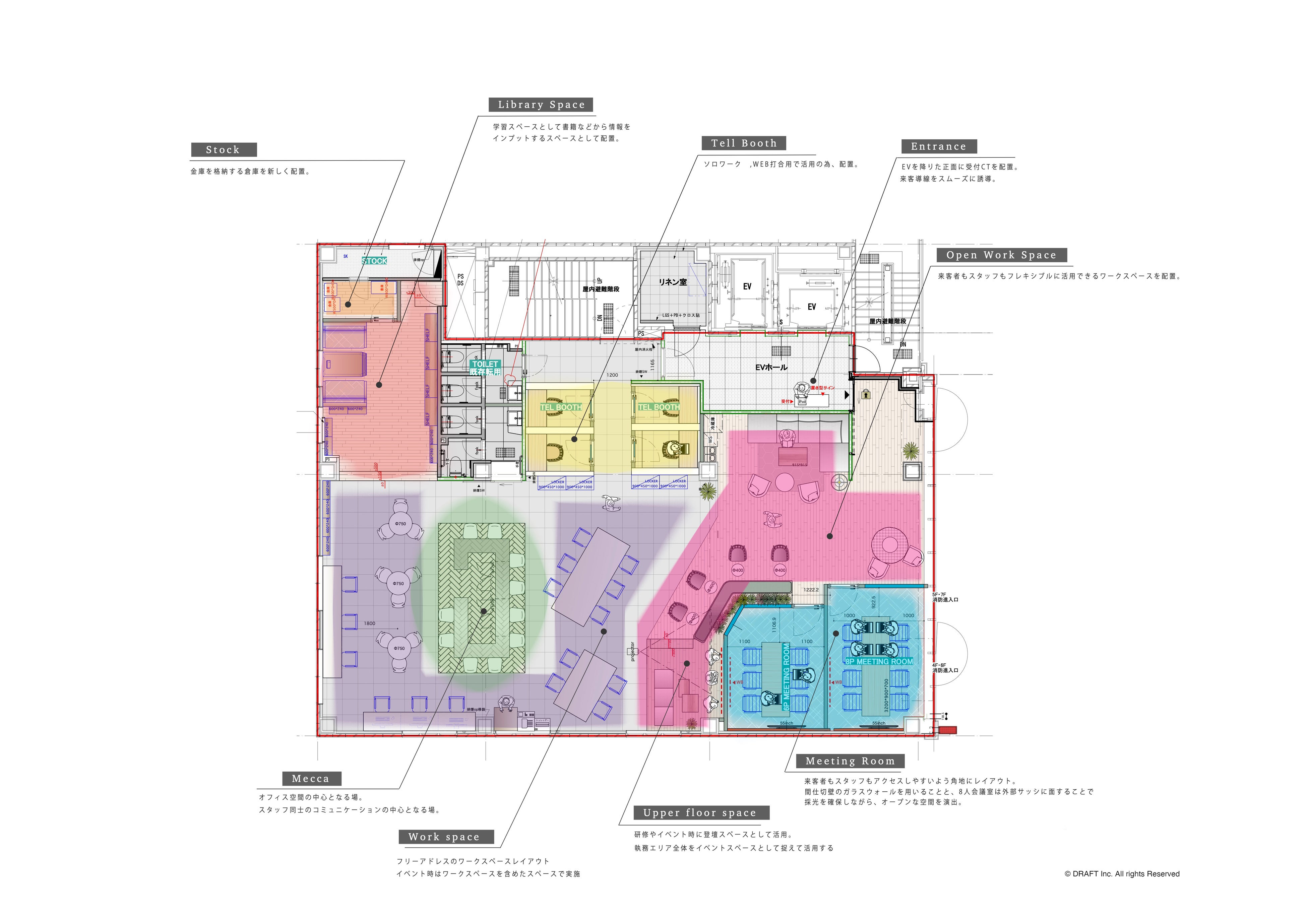
「Baseconnect Kyoto Camp」は「コミュニケーションステーション」「ABW(Activity Based Working)」「カルチャー体現」の3つをコンセプトに、メンバー同士のコミュニケーションの活性化やパフォーマンスの向上を目指しています。
全社でのコミュニケーション活性化を目指し、オフィス移転に伴いフリーアドレス化を行ったほか、オフラインで集まり、協業する際に活用できるスペースや、メンバー同士が気軽にコミュニケーションを取れるコミュニケーションエリア(メッカ)を新たに設置しました。
オフィスに出社するメンバーとリモートワークで働くメンバーが、スムーズなコミュニケーションを築ける空間を目指し、個人でのオンラインミーティングに適したフォンブースエリアや、学習ができるライブラリーエリアなどを導入しています。また、オフィス全体を使ったプレゼンテーションなども可能になっています。
Baseconnectには、カルチャー(文化・価値観・行動指針)を言語化してまとめた「CULTURE CODE ver 2.0」というカルチャーコードがあります。このカルチャーコードは、自律分散協調の組織運営を核としているメンバー同士を繋ぐものであり、個々が自律しながらも全体が一丸となって同じ方向を向いて目的を達成するために不可欠なものです。
「CULTURE CODE ver 2.0」では、3つのコアバリュー「Learn to Change(学習して変化する)」「Customer Focus(お客様と向き合う)」「Openness(信頼してオープンにする)」を掲げています。そのため、「Baseconnect Kyoto Camp」では、学習のためのライブラリースペースの設置や、オープンさを表現する見通しの良いレイアウトなど、バリューを実現するための要素をオフィスの機能やデザインに落とし込むことで、メンバー同士の共通の価値観の醸成を目指しています。今後もBaseconnecではコミュニケーション活性化や組織力向上のための施策を促進してまいります。
■ 新オフィス所在地
〒604-8032
京都府京都市中京区山崎町235 4F
■「CULTURE CODE ver 2.0」について
Baseconnectのカルチャー(文化・価値観・行動指針)を言語化してまとめたカルチャーコード。
「CULTURE CODE ver 2.0」
https://speakerdeck.com/baseconnect/baseconnect-culture-code
■ Baseconnectについて
Baseconnectは「世界中のデータを繋げることで、ダイレクトに必要な情報にアクセスできる世界を作る」をミッションに掲げる、2017年1月設立のスタートアップ企業です。クエリに対してページリンクを返す従来型の検索エンジンではなく、ダイレクトにユーザーが求める情報を提供する次世代型検索エンジン(ナレッジエンジン)を開発しています。現在はビジネス領域での検索エンジンの展開を進め、法人営業の業務効率化に特化した「Musubu」を提供し、上場企業から中小企業まで幅広くご利用頂いています。
【会社概要】
社名:Baseconnect株式会社 / Baseconnect, Inc.
設⽴:2017年1月17日
代表者:代表取締役社⻑ 國重侑輝
所在地:〒604-8032 京都府京都市中京区山崎町235 4F
会社HP:https://company.baseconnect.in
サービスHP:https://www.musubu.in
Baseconnectは、2022年5月1日より新しい働き方としてリモートベースを組織に導入いたしました。リモートベース組織とは、リモートをベースとして繋がる組織です。パフォーマンスの最大化を目的とし、場所と時間に制約を受けず働き方を選択することができます。居住地やオフィスで勤務しているかどうかによって機会や働きやすさが変わらないことを目指しています。
また、リモートをベースとしながらも、チームビルディング強化の観点から、同じ空間で働き、実際に会って対面でのコミュニケーションを取ることの重要性を全員が認識しています。そのため、コミュニケーション活性化や組織力向上のための施策として、メンバー同士がコミュニケーションをより深めることを目指し、2022年11月に京都オフィスを「Baseconnect Kyoto Camp」として、河原町三条に移転オープンしました。
今後リモートがベースであることを前提に、全メンバーが多様性のある働き方を効果的に行えるオフィスとすることで、より円滑なコミュニケーション環境を構築し、事業及び組織の拡大を進めてまいります。
■ 新オフィス「Baseconnect Kyoto Camp」の概要
「Baseconnect Kyoto Camp」は「コミュニケーションステーション」「ABW(Activity Based Working)」「カルチャー体現」の3つをコンセプトに、メンバー同士のコミュニケーションの活性化やパフォーマンスの向上を目指しています。
- 「Baseconnect Kyoto Camp」の3つのコンセプト
全社でのコミュニケーション活性化を目指し、オフィス移転に伴いフリーアドレス化を行ったほか、オフラインで集まり、協業する際に活用できるスペースや、メンバー同士が気軽にコミュニケーションを取れるコミュニケーションエリア(メッカ)を新たに設置しました。

オフィスに出社するメンバーとリモートワークで働くメンバーが、スムーズなコミュニケーションを築ける空間を目指し、個人でのオンラインミーティングに適したフォンブースエリアや、学習ができるライブラリーエリアなどを導入しています。また、オフィス全体を使ったプレゼンテーションなども可能になっています。
インテリアデザインから建築設計・プロダクトデザインまで幅広い領域を手掛けるデザイン会社 DRAFT がコンセプト・設計デザインを手掛けています。
Baseconnectには、カルチャー(文化・価値観・行動指針)を言語化してまとめた「CULTURE CODE ver 2.0」というカルチャーコードがあります。このカルチャーコードは、自律分散協調の組織運営を核としているメンバー同士を繋ぐものであり、個々が自律しながらも全体が一丸となって同じ方向を向いて目的を達成するために不可欠なものです。
「CULTURE CODE ver 2.0」では、3つのコアバリュー「Learn to Change(学習して変化する)」「Customer Focus(お客様と向き合う)」「Openness(信頼してオープンにする)」を掲げています。そのため、「Baseconnect Kyoto Camp」では、学習のためのライブラリースペースの設置や、オープンさを表現する見通しの良いレイアウトなど、バリューを実現するための要素をオフィスの機能やデザインに落とし込むことで、メンバー同士の共通の価値観の醸成を目指しています。今後もBaseconnecではコミュニケーション活性化や組織力向上のための施策を促進してまいります。
■ 新オフィス所在地
〒604-8032
京都府京都市中京区山崎町235 4F
■「CULTURE CODE ver 2.0」について
Baseconnectのカルチャー(文化・価値観・行動指針)を言語化してまとめたカルチャーコード。
「CULTURE CODE ver 2.0」
https://speakerdeck.com/baseconnect/baseconnect-culture-code
■ Baseconnectについて
Baseconnectは「世界中のデータを繋げることで、ダイレクトに必要な情報にアクセスできる世界を作る」をミッションに掲げる、2017年1月設立のスタートアップ企業です。クエリに対してページリンクを返す従来型の検索エンジンではなく、ダイレクトにユーザーが求める情報を提供する次世代型検索エンジン(ナレッジエンジン)を開発しています。現在はビジネス領域での検索エンジンの展開を進め、法人営業の業務効率化に特化した「Musubu」を提供し、上場企業から中小企業まで幅広くご利用頂いています。
【会社概要】
社名:Baseconnect株式会社 / Baseconnect, Inc.
設⽴:2017年1月17日
代表者:代表取締役社⻑ 國重侑輝
所在地:〒604-8032 京都府京都市中京区山崎町235 4F
会社HP:https://company.baseconnect.in
サービスHP:https://www.musubu.in
このプレスリリースには、メディア関係者向けの情報があります
メディアユーザーログイン既に登録済みの方はこちら
メディアユーザー登録を行うと、企業担当者の連絡先や、イベント・記者会見の情報など様々な特記情報を閲覧できます。※内容はプレスリリースにより異なります。
すべての画像
