山梨で築130年の古民家に暮らす寿木けいさんが「家づくり」と向き合う日々をつづったエッセイ『澄んでゆけ住まい――古民家からひらく、生活の哲学』3月2日発売!
住むの語源は、澄む――。家と土地の購入から改修、毎日の手入れ。女が家をもつ困難を乗り越えて「私」の家ができるまで。
東京で慌ただしく過ごした日々から離れ、山梨にある築130年の古民家へ――
紹介制の宿「遠矢山房」を営みながら、2人の子供、1匹の犬と暮らしはじめた著者の住まいへの願いと愛しさが詰まった書き下ろしエッセイ『澄んでゆけ住まい』が、3月2日(月)に晶文社より発売となります。
★★★出版を記念し、序文を全文公開中★★★
https://note.com/shobunsha/n/na7b08102796a

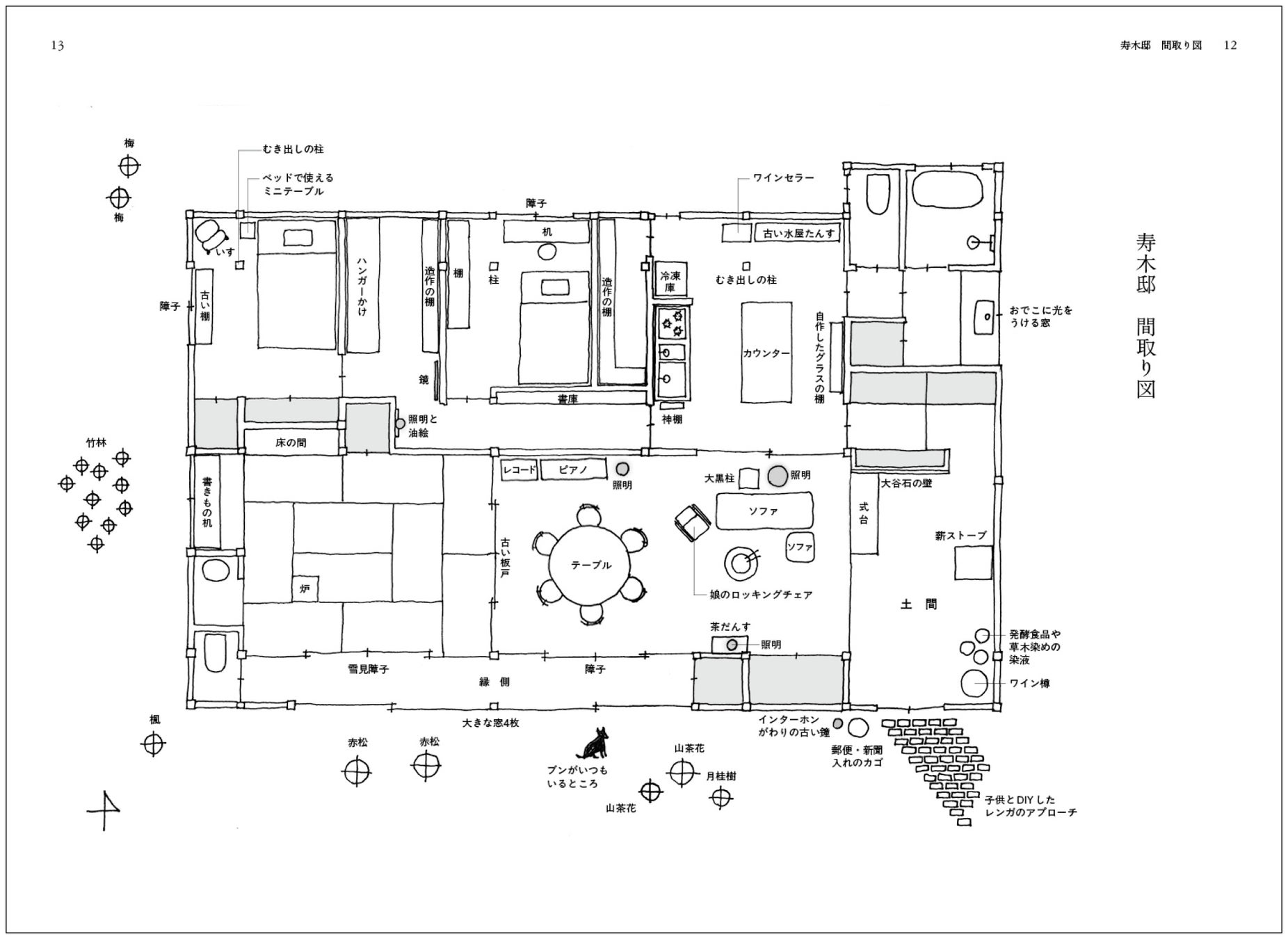
「私が暮らしているのは、ぶどうの産地として知られる里山に建つ、築百三十年の古民家です。四階建てに相当する大きな家の一階部分を、平屋として使っています。初めて家の内部に入ったとき、木の骨格の美しさに、思わず、わあー声にならない太い息が漏れました。長い年月の間にやや傾いていたとはいえ、釘を使わずに栗材で作られた家は、職人の手仕事の賜物です。壊してしまったら、このような家は二度と作れないでしょう。次の百年に向けて、手を加えること。それが私の希望でした。[…]十八か月間に及んだ改修工事を経て、現代の生活に合うように整えられたこの家は、女が建てた、ささやかな数寄の住まいです。」(本文より)

「更地に家を建てるとき。土の上に自由に箱を思い描くということは、不透明な状況で考え続ける孤独に耐えるということです。資金作りや予算管理にも向き合わなければなりません。仕事や家事と並行してスケジュールをこなすには、タフな生活能力が必要です。
本気で家を作ることは、余裕があるごく一部の層か、情熱的な人たちだけの道楽になりつつあります。ならば、その道楽を解きほぐすことで、住まうことの根っこにあるよろこびを見つけられるのではないでしょうか。」(本文より)
家づくりが生き方を澄ませてゆく。読んだ人だれもが「家」を見つめたくなる一冊です。

■目次
序 住まいをつくる
ぶどう畑の小さな家
過去を澄ます
名を澄ます
未来を澄ます
日々を澄ます
心を澄ます
[column]
家に値段を付ける
最大の防犯は挨拶である
引越しそば
玄関先の教え
外構は暮らしながら
[特別寄稿]
寿木邸のこと(坂野由美子)
■著者プロフィール

寿木けい(すずき・けい)
大学卒業後、出版社に就職。編集者として働きながら執筆活動をはじめる。25年間の東京生活を経て、2022年に山梨市に移住。築130年の古民家を改修し、自邸を兼ねた紹介制の宿「遠矢山房」を開く。調理から薪割り、室礼まですべてを手がける。富山県砺波市出身。主な著書に『いつものごはんは、きほんの10品あればいい』(小学館)、『閨と厨』(CCCメディアハウス)、『土を編む日々』(集英社)、『愛しい小酌』(大和書房)、『わたしのごちそう365』(河出文庫)、『泣いてちゃごはんに遅れるよ』(幻冬舎文庫)、『わたしの美しい戦場』(新潮社)。
【オフィシャルサイト】 https://www.keisuzuki.info/
【X】 https://x.com/140words_recipe
【Instagram】https://www.instagram.com/kei_nstagram/
■書誌情報
書名 澄んでゆけ住まい――古民家からひらく、生活の哲学
著者名 寿木けい
判型 四六判並製
頁数 182頁
定価 1,980円(本体1,800円)
ISBN 978-4-7949-8040-3
発売日 2026年3月2日
発行元 株式会社晶文社
このプレスリリースには、メディア関係者向けの情報があります
メディアユーザー登録を行うと、企業担当者の連絡先や、イベント・記者会見の情報など様々な特記情報を閲覧できます。※内容はプレスリリースにより異なります。
すべての画像
