【民泊のスイートルーム】庭園付き壺風呂あり「eni.suite unryuen」誕生。寝室数5部屋/最大20名まで宿泊可【地域最大規模】
2024年8月21日(水)「eni.suite unryuen(エニ スイート うんりゅうえん)」NEW OPEN!最大20名まで収容可の大型施設!庭付き壺風呂やこだわりの設備を紹介【ご予約受付中】

大阪を中心に民泊施設を運営する株式会社LDKプロジェクト(所在地:大阪府中央区、代表:生田博之)は2024年8月21日(水)に大阪「天下茶屋」に新しい民泊施設「eni.suite unryuen(エニ スイート うんりゅうえん)」をオープンいたします。
《公式予約》https://go2eni.com/prtimes_enunrehp
《Instagram》https://go2eni.com/prtimes_eniinst
・eni. suite unyuen(エニ スイート うんりゅうえん) について

「eni.suite unryuen」は南海/大阪メトロ「天下茶屋」駅から徒歩9分、大阪メトロ「岸里」駅徒歩5分の場所にあります。天下茶屋は関西空港から大阪市内へと向かう経由地であるため、インバウンドの旅行客が集まるエリア。特に、インバウンドが本格化したこの10年で外国人観光客が急増。近年では高級ブランドホテルも進出するほど注目のエリアとなっています。

「和」をコンセプトにした今回の施設最大の特徴は、寝室内に併設する庭園付きの壺風呂。光を抑えた落ち着いた雰囲気の中で「和」を体感していただけます。庭園内には竹細工の照明を設置。間接的な照明により一層リラックスできる空間に仕上げました。

・LDK、水廻り設備



2階は滞在者一同が集える広々としたキッチン付きリビングダイニング。調理器具や食器類、キッチン家電を豊富に取り揃えているので料理も可能です。大きなソファはダブルサイズのソファベッドとしても利用できリビングルームでもお休みいただけます。


洗面化粧台は2階と3階の2か所に設置。うち1か所はシャワールームと共に主寝室内に設置されており、プライベートな使用も可能です。各種アメニティも充実したラインナップで用意。ハンドソープだけでなくクレンジングや化粧水乳液はすべてPOLAで統一されています。ミラーや洗面ボウル含め部屋のインテリアになじむようセレクトしました。
・各寝室





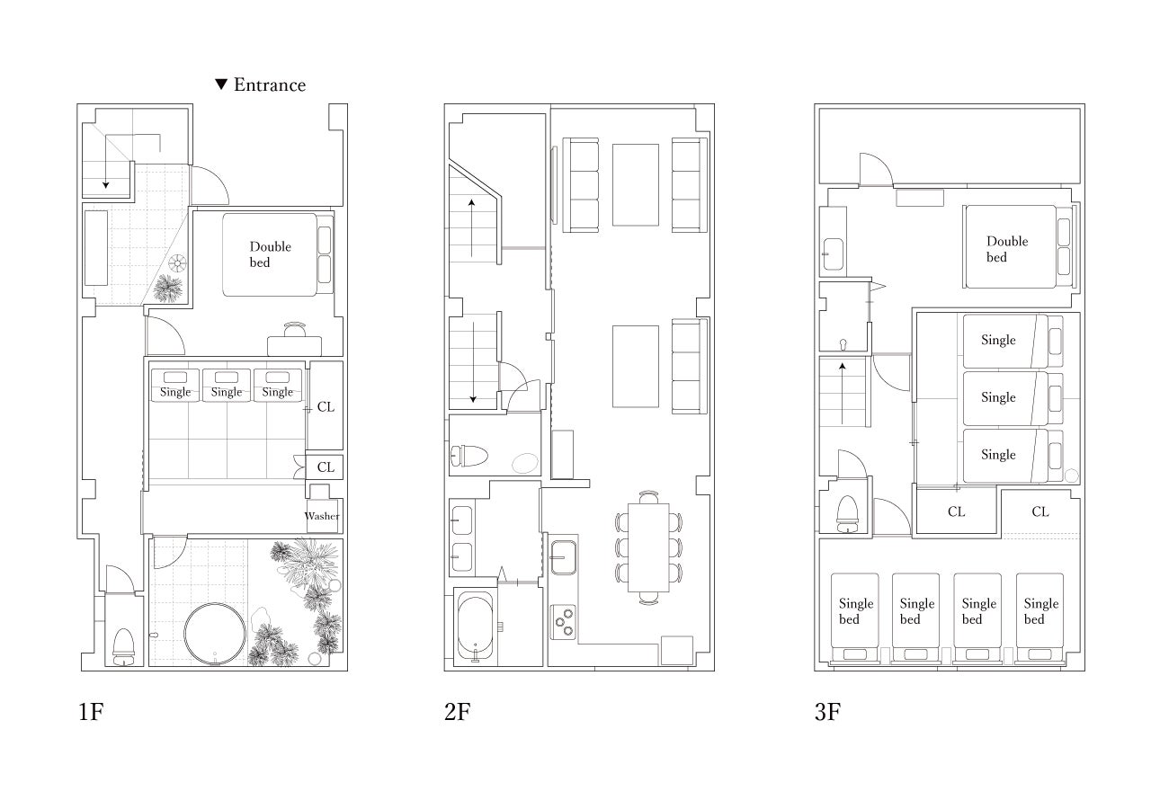
寝室は合計で5部屋あり、最大20名までの宿泊が可能です。洋室だけでなく和室も用意しているので、小さいお子様やベッドが苦手な方も安心です。(1F/洋室1:ダブルベッド1台,和室1:布団3組 2F/リビング:ダブルサイズソファベッド3台 3F/洋室2:ダブルベッド1台,和室2:布団3組,洋室3:シングルベッド4台)


「eni.suite unryuen」へのご予約お待ちしております。
・間取り図

<当施設の概要>
●施設名:eni. suite unryuen (エニ スイート うんりゅうえん)
●住所 :〒557-0052 大阪府大阪市西成区潮路2丁目8-6
●アクセス :大阪メトロ「岸里」駅から徒歩5分、南海/大阪メトロ「天下茶屋」駅から徒歩9分
●料金プラン:24,000円~
《公式予約》https://go2eni.com/prtimes_enunrehp
・eni.とは

eni.のコンセプト
extraordinary(非日常)
narrative(物語)
identity(自分であること)
. 周りを旅する
忙しい日々を離れて、人生をすこしだけステイしませんか。eni.(エニ)はニッポンのあたらしい滞在体験をつくる都市型バケーションレンタルです。ゆっくりとくつろげる空間づくりをいちばんに考えながら、思い出に残したくなる世界観とインテリアにもこだわりました。リラックスするほどに、本来のジブンを取り戻していく。旅する人たちの物語の1ページをつづる、そんな居場所になりたいと思います。
《Instagram》https://go2eni.com/prtimes_eniinst
・わたしたちLDKプロジェクトについて

人生に綴られる ひとときをつくる
宿泊は「お客様の時間をお預かりして、快適で価値のある空間とサービスを提供すること」だと私たちは考えています。「また泊まりたい」と思ってもらえる施設をつくりたい。 設備やサービス、インテリア、清掃にいたるまで、 手を抜かず、心をこめる。訪れた人の「人生」 という物語の1ページになるような思い出に残る時間と体験ができる宿泊施設を提供します。
企 業 名 : 株式会社LDKプロジェクト
所 在 地 : 〒540-0017 大阪府大阪市中央区松屋町住吉6-26 eninal MACCHAMACHI 2F
代 表 者 : 代表取締役 生田博之
事業概要: 民泊施設の運営管理、レンタルスペースの運営管理、不動産賃貸業、清掃業務、貸別荘運
営、サウナ事業
《公式HP》https://ldk-pjt.com/
【民泊運営代行に関するご相談やご質問先】
使用していない部屋を活用したい、民泊に興味があるけれど知識もなく不安、実際に自分でもできるか確認したいなど些細な相談でもかまいません。業界をリードする大阪で長年民泊を営むLDKプロジェクトが丁寧にお答えします。お気軽にどうぞ!
《民泊代行ページ》https://ldk-pjt.com/service/
【本件に関するお問合わせ・取材等のお申込み先】
株式会社LDKプロジェクト 運営管理担当
テレビや雑誌、新聞社様からの取材大歓迎です。
お気軽にお問合せくださいませ。
E-mail:marketing.div@ldk-pjt.com
すべての画像
- 種類
- 商品サービス
- 関連リンク
- https://ldk-pjt.com/
- ダウンロード
