【一軒家の宿】最大19名宿泊可!ナチュラル和モダンのインテリアとガラス張りのシャワールーム【完全プライベート】
2024年12月23日(月)「eni.kishinosato (エニ きしのさと)」NEW OPEN!なんばまで電車6分、梅田まで乗り換え無し!京都や和歌山へのアクセスも抜群◎【ご予約受付中】

大阪を中心に民泊施設を運営する株式会社LDKプロジェクト(所在地:大阪府中央区、代表:生田博之)は2024年12月23日(月)に大阪「岸里」に新しい民泊施設「eni.kishinosato(エニ きしのさと)」をオープンいたします。
《公式予約》https://go2eni.com/prtimes_enkst
《Instagram》https://go2eni.com/prtimes_eniinst
・「eni.kishinosato」について

「eni.kishinosato」は大阪メトロ四ツ橋線「岸里」駅から徒歩5分。最寄り駅から観光地なんば駅までは電車で6分、梅田駅(西梅田駅)まで約15分という抜群のアクセスを誇ります。四ツ橋線は大阪の地下鉄の中でも比較的混雑が少なく、大きな荷物を持ちながらでも快適に移動できる点も魅力です。
また、岸里駅から徒歩5分以内にある「天下茶屋」駅と連携させると、そのアクセスの良さはさらに広がります。天下茶屋駅には関西空港へ行く「南海線」や京都方面へ向かう「大阪メトロ堺筋線」もあるので、この宿を拠点に京都や和歌山まで出かける事も可能です。

当施設は貸し切り一軒家の完全プライベートハウスになっています。従来のホテルでは、グループ旅行の際にそれぞれの個室で別れる形になりますが、一軒家の宿であれば、リビングに全員で集まって楽しい時間を過ごす事も、寝室でプライベートな時間を過ごす事も両方可能です。各々が快適に過ごせる空間を確保し、みんなで楽しい時間を過ごしながらも、個人の空間を大切にできるような設計となっています。
・水廻り設備
今回の施設一番の特徴は3階の主寝室にあるガラス張りのバスルームです。
寝室内には解放感のある浴室とeni.施設のシンボルである円形ミラーの造作洗面を設置。天井の関節照明と相まって、ゆったりした雰囲気で夜の時間を過ごしていただけます。





浴室内は大理石を模した壁と幅のあるシャワーヘッドを設置し、まるで海外雑誌の中のインテリアのような雰囲気を再現しました。
造作洗面は石目のボウルを採用。大きく広がる木目天井との質感のメリハリが効いて、空間全体をスタイリッシュに引き締めてくれます。朝の準備が寝室だけで完結できるよう設備を整えました。グループ旅行の際の「こんな間取りだったら嬉しい!」を反映しました。

また、1階にも別途シャワールームを2か所設置。それぞれに洗面台を設けています。


ドライヤーはパナソニックのイオニティを採用。そのほかシャンプーコンディショナーなどのアメニティもPOLAで統一しています。このアメニティへのこだわりと、大人数に対応したゆったりした水廻り設計は「eni.」の特徴ともいえます。

・各寝室




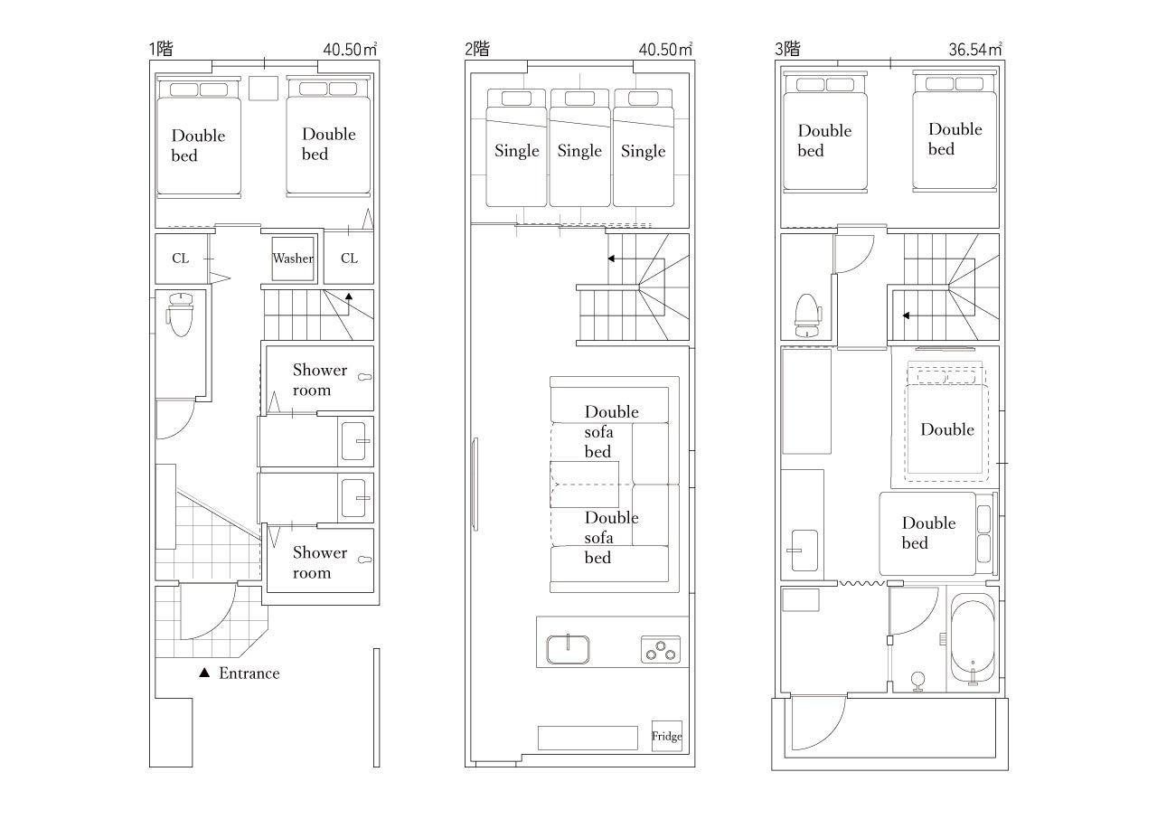
寝室は合計で4部屋あり、リビングのソファベッドも使用すれば最大19名までの宿泊が可能です。家族や友人など大人数でのグループ旅行でもプライバシーが保てるように個室を多めに用意しました。
(寝室1:ダブルベッド2台 和室:シングル布団3組 寝室2:ダブルベッド2台 寝室3:ダブルベッド1台,ダブル布団1組 リビング:ダブルソファベッド2台)


「eni.kishinosato」へのご予約お待ちしております。
・間取り図

<当施設の概要>
●施設名:eni.kishinosato(エニ きしのさと )
●住所 :〒557-0055 大阪府大阪市西成区千本南1-5-3
●アクセス :大阪メトロ 四つ橋線「岸里」駅から徒歩5分
●料金プラン:25,000円~
《公式予約》https://go2eni.com/prtimes_enkst
・「eni.」とは

eni.のコンセプト
e xtraordinary(非日常)
n arrative(物語)
i dentity(自分であること)
. (周りを旅すること)
忙しい日々を離れて、人生をすこしだけステイしませんか。eni.(エニ)はニッポンのあたらしい滞在体験をつくる都市型バケーションレンタルです。ゆっくりとくつろげる空間づくりをいちばんに考えながら、思い出に残したくなる世界観とインテリアにもこだわりました。リラックスするほどに、本来のジブンを取り戻していく。旅する人たちの物語の1ページをつづる、そんな居場所になりたいと思います。
《Instagram》https://go2eni.com/prtimes_eniinst
《eni公式HP》https://go2eni.com/prtimes_eni
・わたしたちについて

人生に綴られる ひとときをつくる
宿泊は「お客様の時間をお預かりして、快適で価値のある空間とサービスを提供すること」だと私たちは考えています。「また泊まりたい」と思ってもらえる施設をつくりたい。 設備やサービス、インテリア、清掃にいたるまで、 手を抜かず、心をこめる。訪れた人の「人生」 という物語の1ページになるような思い出に残る時間と体験ができる宿泊施設を提供します。
企 業 名 : 株式会社LDKプロジェクト
所 在 地 : 〒540-0017 大阪府大阪市中央区松屋町住吉6-26 eninal MACCHAMACHI 2F
代 表 者 : 代表取締役 生田博之
事業概要: 民泊施設の運営管理、レンタルスペースの運営管理、不動産賃貸業、清掃業務、貸別荘運
営、サウナ事業
《公式HP》https://ldk-pjt.com/prs_ldk_hp
【民泊運営代行に関するご相談やご質問先】
使用していない部屋を活用したい、民泊に興味があるけれど知識もなく不安、実際に自分でもできるか確認したいなど、些細な相談でもかまいません。業界をリードする大阪で長年民泊を営むLDKプロジェクトが丁寧にお答えします。お気軽にどうぞ!
《民泊代行ページ》https://ldk-pjt.com/ldk_daiko
【本件に関するお問合わせ・取材等のお申込み先】
株式会社LDKプロジェクト 運営管理担当
テレビや雑誌、新聞社様からの取材大歓迎です。
お気軽にお問合せくださいませ。
E-mail:marketing.div@ldk-pjt.com
このプレスリリースには、メディア関係者向けの情報があります
メディアユーザー登録を行うと、企業担当者の連絡先や、イベント・記者会見の情報など様々な特記情報を閲覧できます。※内容はプレスリリースにより異なります。
すべての画像
