三和建設、レンタブル比最大化主義に一石を投じる、住まい手のためのマンション

■住まい手のためのマンション開発の背景
従来のマンション経営は、高額なローンを組んで建物を建設し、入居者を募集することで収益を得るというビジネスモデルが一般的でした。しかし、近年では空室リスクや修繕費の増加など、課題も多く存在しています。
また、従来の賃貸マンションは、経済性を重視し、片廊下による、いわゆる羊羹型マンションが一般的でした。本マンションは、単に収益を追求するのではなく、限られた空間でいかに豊かな暮らしを届けるかに着目し、外観や内部にもこだわりをもって各タイプの間取りデザインを行っています。
その最大の特徴は、全室が角部屋で内廊下を採用していることです。入居者目線にこだわり抜いた、永く使い続けられる、味わい深い変化を楽しめる次世代型賃貸マンションとして開発いたしました。
■ 全室角部屋や内廊下は珍しい
賃貸マンションにおいて全室角部屋と内廊下を採用することは、面積効率や建設コストの観点から比較的稀です。
■ 全室角部屋と内廊下のメリット
採光・通風良好: 2面に窓があるため、明るく風通しの良い開放的な住空間を実現
プライバシーの保護:周囲の住戸と面していないため、生活音が気になりにくく、プライバシーを守りやすい
開放感: 角部屋ならではの開放感で、広々とした空間を体感できる
静けさ・防犯性:内廊下を採用することで、廊下を歩くと生活音が響いたり、防犯面で不安を感じたりするケースを軽減
■家賃相場を飛び越える入居者想いのこだわり
全戸角部屋: 隣人の生活音が気になりにくく、採光と通風に優れた住空間を実現
内廊下: プライバシーを守り、防犯性も向上
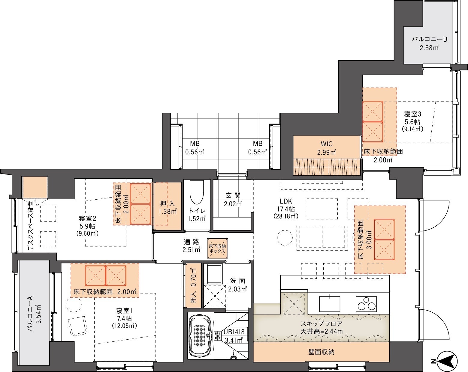
60cmの床下収納:賃貸マンションの収納問題も解決
逆梁工法: 階下に音や振動が伝わりにくい、優れた遮音性を実現
スキップフロア:段差を利用した開放的な天井高
2.2mのハイサッシ: 明るく開放的な空間で、風通しも抜群
壁面収納とデスクの作り付け家具:立体的な空間を実現
■ 高い収益性と住み心地の両立
入居率の向上と長期的な安定収益を目指し、高品質な設備とデザインを採用しております。また、入居者の満足度を高めることで、空室リスクを低減し、資産価値の向上にも繋げていきます。
三和建設は、入居者の快適性を最優先し、質の高い住空間の提供を通じて、真に豊かな住生活の実現を目指します。
■クレアトーレ日暮里 完成見学会について
入居者想いのこだわりを体感いただくための完成見学会を開催いたします。土地活用を検討している方々を対象とした見学会です。
メディア向けにも開放しております。詳しくは問い合わせ先までご連絡ください。
開催日程:2024年5月17日(金)東京都荒川区東日暮里4丁目10-10
(JR山手線「日暮里駅」徒歩13分・「鶯谷駅」徒歩12分、JR常磐線「三河島駅」徒歩12分、東京メトロ 日比谷線「三ノ輪駅」徒歩13分・「入谷駅」徒歩13分
完成見学会 詳細はこちらから:https://www.sgc-web.co.jp/news/240517_si200/
■エスアイ200について
エスアイ200(ルネス工法:国土交通省の推奨する「スケルトン・インフィル住宅」に最適の工法と言われるのが逆梁工法。その逆梁工法さらに進化させたのがルネス工法)
スケルトン・インフィル工法を用いて、逆梁2重床工法とした上下階の遮音性向上、ハイサッシによる採光性、床下空間を利用した室内空間及び床下収納を採用。
エスアイ200は、2024年4月現在で58棟、総戸数768戸と着実に実績を積んできました。入居率は97.8%と、結果的に空室リスクを解決するブランドへと成長しました。
■会社概要
商号 : 三和建設株式会社
代表者 : 代表取締役社長 森本 尚孝
所在地 : 〒532-0013 大阪府大阪市淀川区木川西2丁目2番5号
設立 : 1947年5月
事業内容 : 総合建設業
資本金 : 一億円
URL : https://www.sgc-web.co.jp/
※参考資料
■クレアトーレ日暮里 物件概要
・敷地面積:312.73㎡
・構 造:鉄筋コンクリート造 6階建
・延床面積:1024.52㎡
・戸 数:16戸
・間 取 り :Aタイプ 1K(①32.03㎡ ②31.82㎡)
Bタイプ 1LDK(44.63㎡)
Cタイプ 1K(①36.52㎡ ②37.04㎡)
Dタイプ 3LDK(76.56㎡)
Eタイプ 2LDK(69.04㎡)
その他の入居者ファーストのこだわり
コピーがしにくい、安心のカードキーを採用
エントランスに顔認証システムを設置
ninjaエントランス:置き配に対応(2024年問題も考慮)
将来のIOT家電への対応を見据えてインターネット使い放題
LUUPポート設置 (電動自転車・電動キックボードのステーション)
【Cタイプ】

【Dタイプ】


このプレスリリースには、メディア関係者向けの情報があります
メディアユーザー登録を行うと、企業担当者の連絡先や、イベント・記者会見の情報など様々な特記情報を閲覧できます。※内容はプレスリリースにより異なります。
すべての画像
