宮崎市広島一丁目プロジェクト(NTT西日本宮崎支店敷地) 施設名称を「HAROW(ハロウ)」に決定 11月23日(土・祝日)に南棟商業施設8店舗が先行開業
NTT都市開発株式会社
NTT都市開発株式会社(本社:東京都千代田区、代表取締役社長 池田 康)は、2022年12月23日に宮崎市、NTTアーバンソリューションズ株式会社および西日本電信電話株式会社(以下「NTT西日本」)宮崎支店と締結した「次世代型まちづくりの推進に関する連携協定」に基づき、NTT西日本宮崎支店敷地(宮崎市広島1丁目12-1)にて進めております宮崎市広島一丁目プロジェクトにおいて、北棟、南棟全体の施設名称を「HAROW(ハロウ)」に決定したことをお知らせします。
また、宮崎市制100周年イベント(「SMILE MIYAZAKI100年祭」)にあわせた2024年11月23日(土・祝日)に、南棟商業施設全17店舗のうち8店舗が先行開業するほか、同日グリーンスローモビリティ“ぐるっぴー”の停留所※1を南棟敷地内に新規開設し、今後の宮崎市中心市街地における回遊性向上や更なる賑わいの創出に貢献していきます。
*NTT都市開発株式会社は、NTTグループの街づくり事業会社であるNTTアーバンソリューションズ株式会社の子会社です
※1 広島通りに新設される停留所名は「HAROW広島通」となり、また高千穂通りにある停留所名は「NTT前」から「HARO
W高千穂通前」に変更となります。
1.施設名称・ロゴの決定
HAROW(ハロウ)
HAROWは北棟、南棟共通した名称であり、各施設はそれぞれ下記の名称となります。
・北棟オフィス:HAROW高千穂通オフィス(HAROW TAKACHIHO St. OFFICE)
・北棟商業施設:HAROW高千穂通(HAROW TAKACHIHO St.)
・南棟商業施設:HAROW広島通(HAROW HIROSHIMA St.)
■施設ロゴ

■施設名称「HAROW(ハロウ)」とロゴマークに込めた想い
本施設は、オフィス街である高千穂通りと路面店が立ち並ぶ広島通りに面し、「宮崎のまちなかを歩いて楽しみたくなる賑わいの発信地」というコンセプトをもとに、宮崎駅西側の回遊性向上と街の活性化をめざしています。施設名称の「HAROW(ハロウ)」は、“Hello(ハロー)”を連想させる音感を由来とし、通りを意味する「ROW」を掛け合わせた造語です。高千穂通りと広島通りにあいさつや会話のはじまりとしても使う“Hello(ハロー)”の音があふれ、「賑わいの発信となる通り」となるよう願いが込められています。施設のロゴマークは、会話を連想させる吹き出しが、向かい合うことで、人と人との繋がりやコミュニケーションを表現しています。




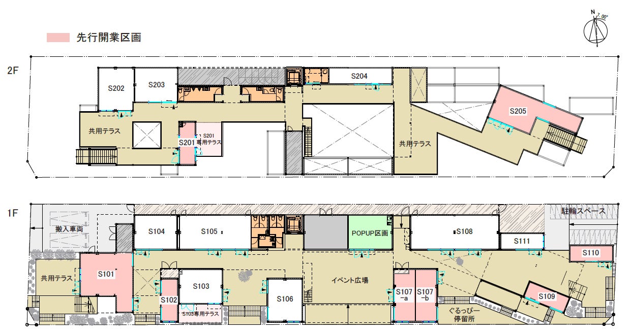
2.南棟商業施設の一部先行開業
南棟商業施設「HAROW 広島通」は2024年11月23日(土・祝日)に全17店舗のうち8店舗が先行開業します。
建築用コンテナの外観が特徴的な本施設は、地域の皆様に親しまれている店舗から県内外問わず人気を集める店舗まで幅広い店舗が集積し、広島通りの新たな顔となることをめざします。来店者のみなさまには、地域の素材を活かした食物販店や飲食店、こだわりの品を提供する物販店など、“個性あふれるローカルマーケット”を巡って楽しんでいただけます。また、共用テラスやイベント広場、デッキスペースは、コミュニケーションや賑わい創出の場として街のさらなる活性化に寄与します。
HAROW広島通店舗数:全17店舗 (先行開業8店舗)
店舗営業時間:各店舗による
※11月23日(土・祝日)は、12時より営業開始となり、営業終了時間は各店舗によります。
また、開業日以降の営業時間・店休日は店舗によって異なります。
■HAROW広島通 先行開業商業店舗一覧(11月23日)
POPPYʼS HAMBURGER&ICE CREAM
(ポピーズ ハンバーガー&アイスクリーム)
★テイクアウトOK
オリジナルのグルメバーガーとアイスクリームを中⼼に提供するハンバーガーカフェ。バンズは店内で焼き、パティは⾁を鉄板に押し付けて調理するスマッシュバーガーで、⾹ばしくジューシー。⾁本来の旨味と⾷感が味わえます。多彩なフレーバーから選べるアイスクリームやクラフトジュースの他、タコスなどのサイドメニューもお楽しみいただけます。

S102区画【飲食/ドーナツ】
ぽらべあドーナツ
★新業態 ★テイクアウトOK
「もういっこ食べてもいい?」に「いいよ」と言えるドーナツがコンセプト。ドーナツを揚げる油は、宮崎のオリーブオイル専門店やまぐち橄欖店のオリーブオイルを使用するので、あっさりふわふわして優しい口当たりです。宮崎県産の食材をはじめとした、素材にこだわった身体にも優しいドーナツを味わうことができます。

S107-b区画【飲食/デリカテッセン】
おはな惣菜店
★新業態 ★テイクアウトOK
宮崎県西都市で人気の「Ohana食堂」の姉妹店となる惣菜店が宮崎市内で待望のオープン。「宮崎の旬をお届け」をテーマに地元で採れた季節の野菜、果物、食材を使った健康的で美味しいお弁当や総菜は、手作りにこだわり、素材の風味を感じる味わいをお届けします。

S107-a区画【飲食/ブリトー】
This is Burrito (ディスイズブリトー)
★テイクアウトOK
宮崎唯一のサンフランシスコスタイルのブリトー専門店。毎日手仕込みする15種類以上のトッピングから好きなものを選び、あなただけのブリトーを作ります。スパイシーなチキンや4種の自家製サルサ、お豆やレタスやチーズなどいろんな具材が入ってボリューミーでヘルシー。最高に美味しく、一度食べたらきっとハマってしまいます。

S109区画【飲食/ベーカリー】
Bäckerei und konditorei Gesundheit HAROW広島通店
(ゲズンタイト ハロウひろしまとおりてん)
★テイクアウトOK
食を通して皆様に「ゲズンタイト」=幸福、心と身体の健康を!というコンセプトで本格欧風パンを提供するベーカリー。こだわりのバター、喜界島さとうきび粗糖、クーベルチュールのチョコレート、動物性の純生クリームなど厳選した食材を使用しています。毎日通える価格設定もうれしいお店です。

S110区画【ライフスタイル/冷凍餃子・調味料】
大山屋 5号店 (おおやまや 5ごうてん)
★テイクアウトOK
1930年創業。宮崎県綾町でお酢とこんにゃくを製造する老舗「大山食品」による県内5店舗目、365日24時間営業の無人直売所。こんにゃくからの代替肉を使った「こんにく 綾餃子」をはじめとした、無農薬にこだわった体に優しい「大山屋オリジナル」商品をお楽しみください。

S201区画【飲食/東南アジア料理】
laksa (ラクサ)
★テイクアウトOK
海南鶏飯(ハイナンチキンライス)、ココナッツカレーライス、ヌードルのラクサを中心にシンガポールやマレーシアなどの東南アジア料理を提供する人気の店舗がハイカラ通りから移転オープン。スチームタイプとフライドタイプを選ぶことができる一番人気のチキンライスは、宮崎県産若鶏を使用しています。南国宮崎の温暖な気候の中で、ちょっとした旅気分を味わうことができるお店です。

S205区画【ライフスタイル/観葉植物】
g.r.e.e.n(グリーン)
★テイクアウトOK
宮崎観光ホテル内にあるg.r.e.e.nの2号店として、「生活の中に彩を」をテーマに植物とコーヒーを提供します。植物とコーヒーは、心を整えるための最高のコンビネーション。緑豊かな植物に囲まれながら、こだわりのコーヒーを味わい、ゆっくりとした時間をお楽しみください。また、g.r.e.e.nを運営するALICE GARDENは、今回HAROW施設内の植栽を手掛ました。植物一つひとつが、皆様に癒しと安らぎをお届けできるよう、丁寧に育てていきます。



2025年春に開業する、HAROW広島通の商業店舗ならびにHAROW高千穂通の商業店舗について、以下のとおり予定しています。詳細は改めてご案内します。
■HAROW広島通 商業店舗一覧(2025年春開業)

|
店舗名称 |
業種/業態 |
出店場所 |
特徴 |
|
21時にアイス |
飲食/アイス |
1階 |
宮崎 初出店 |
|
Miyazaki Hideji Beer(仮) |
飲食/クラフトビール |
1階 |
新業態 |
|
BLUE OWL・tastes of life |
飲食/低糖質スイーツ・ 天然酵母サンドイッチ |
1階 |
新業態 |
|
Luca chouette |
ライフスタイル/アパレル・ 雑貨 |
1階 |
|
|
MY POCKET BOOKS |
ライフスタイル/シェアブックス |
1階 |
|
|
Cafe&Bar BIOS |
飲食/カフェバー・アクアリウム |
2階 |
新業態 |
|
ラーメン本舗さといも HAROW店 |
飲食/ラーメン |
2階 |
|
|
スコッティーヌ(仮) |
ライフスタイル/体験アート |
2階 |
■HAROW高千穂通 商業店舗一覧(2025年春開業)

|
店舗名称 |
業種/業態 |
出店場所 |
特徴 |
|
オープンシティ推進拠点 (仮) |
ライフスタイル/交流拠点 |
1階 |
新業態 |
|
食堂cove 2号店(仮) |
飲食/ハンバーグ |
1階 |
新業態 |
|
Hardy Harts(仮) |
ライフスタイル /美容物販・エステ |
1階 |
|
|
&Labo |
ライフスタイル /メディアコミュニケーション |
1階 |
新業態 |
|
KITSA |
飲食/カフェ |
1階 |
宮崎 初出店 |
|
整体LIGHT・La pilates ・ROSA coffee |
飲食&ライフスタイル /整体・ピラティス・コーヒー |
1階 |
新業態 |
■事業概要

|
HAROW高千穂通 (北棟、リノベーション) |
HAROW広島通 (南棟、新築) |
|
|
所在地 |
宮崎市広島1-12-1(地番) |
同左 |
|
敷地面積 |
約1,679㎡ |
約1,296㎡ |
|
延床面積 |
約4,024㎡ |
約803㎡ |
|
構造 |
鉄筋コンクリート造 |
鉄骨造 |
|
規模 |
地上3階 |
地上2階 |
|
用途 |
事務所・店舗 |
店舗 |
|
交通 |
JR宮崎駅徒歩7分 |
同左 |
|
事業主 |
NTT都市開発株式会社 |
同左 |
|
基本設計 |
株式会社NTTファシリティーズ |
株式会社篠崎弘之建築設計事務所 |
|
実施設計 |
日本メックス株式会社 |
株式会社篠崎弘之建築設計事務所 |
|
施行 |
日本メックス株式会社 |
株式会社坂下組 |
|
着工 |
2024年2月 |
2024年4月 |
|
竣工 |
2025年1月(予定) |
2024年11月 |
|
開業 |
2025年春 |
2024年11月23日(一部) 2025年春 |
【関連リリース】
・宮崎市とNTTグループによる「次世代型まちづくりの推進」に関する連携協定の締結について
(2022年12月23日)
https://www.ntt-us.com/news/2022/12/news-221223-02.html
・宮崎市広島一丁目プロジェクト(NTT西日本宮崎支店敷地)第1弾 NTT広島ビル北棟リノベーショ
ン工事の着工について(2024年2月6日)
https://www.nttud.co.jp/news/detail/id/n26683.html
・宮崎市広島一丁目プロジェクト(NTT西日本宮崎支店敷地)第2弾 NTT広島ビル南棟新築工事の着
工について(2024年4月3日)
https://www.nttud.co.jp/news/detail/id/n26721.html
※掲載している情報、図面、イメージパースは現段階のもので、今後変更となる可能性があります。
※イメージパースの著作権は、「株式会社篠崎弘之建築設計事務所」にあります。
【お問い合わせ先】
NTT都市開発株式会社 広報室 入戸野、若松 nttud-pr@ntt-us.com
すべての画像