LeTechが開発するLEGALANDシリーズ『LEGALAND 小石川5丁目』が上棟いたしました

■『LEGALAND 小石川5丁目』の物件概要
名称 : LEGALAND 小石川5丁目
所在 : 東京都文京区小石川5丁目
交通 : 東京メトロ丸の内線「茗荷谷」駅 徒歩8分
延床面積 : 467.53 ㎡
構造・規模 : 鉄筋コンクリート造 地上5階建
総戸数 : 11戸 (1R:8戸 / 1LDK:3戸)
■『LEGALAND 小石川5丁目』の特徴
建物周辺には、文京区を代表する桜の名所「播磨坂さくら並木」や緑豊かな「小石川植物園」をはじめ、各種学校が点在しています。文化的な環境であるとともに閑静な住宅街の中に立地しています。
外観はLEGALANDの特徴であるコンクリートの打放しでシンプルに仕上げています。
最近注目されているテレワークの環境確保に、全ての1Rのお部屋にワークスペース空間を設けました。デスク等を設置し、快適なテレワークの環境を作っていただけます。

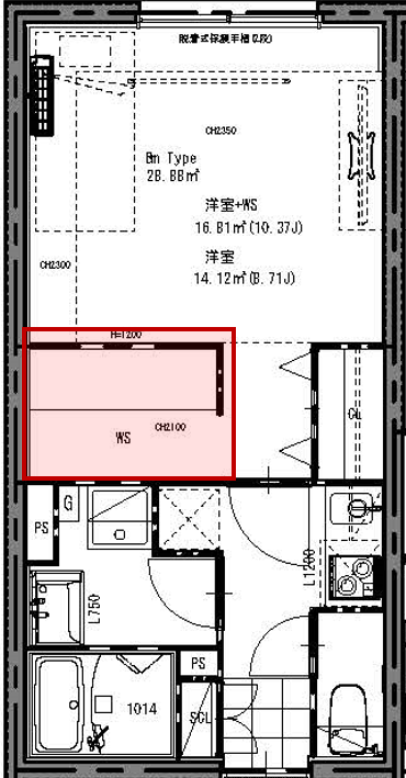
・お部屋の一例
ワークスペース(WS)空間を、テレワークや趣味等、ご自由にご活用いただけます。
■LEGALANDのコンセプト
「LEGA」はイタリア語で「結ぶ」「繋がる」という意味があります。
建物と人々、人々と人々が繋がる場所を提供したいという思いで、「LEGA(繋ぐ)」+「LAND(場所・土地)」で「LEGALAND」と名付けました。
都心、駅近の好ロケーション、広い空間を活かすスタイリッシュな設計、相続税や節税対策としての活用、また、メンテナンスの負荷が少なく、周辺環境にも優しい設計を提案し、「LEGALAND」は住む人、持つ人、街の人へ配慮した建物を目指します。

■株式会社 LeTech 会社情報
会社名 : 株式会社 LeTech
代表 : 代表取締役社長 平野 哲司
本社 : 〒530-0027
大阪府大阪市北区堂山町3番3号 日本生命梅田ビル 10階
東京支社 : 〒105-0001
東京都港区虎ノ門1丁目2番8号 虎ノ門琴平タワー 7階
設立 : 2000年 9月 7日
資本金 : 851百万円 ※2021年12月末時点
ホームページ: https://www.letech-corp.net/
事業内容 : YANUSY事業(不動産とITを融合した不動産テック事業)
LEGAL SOLUTION 事業(法律知識を活用した不動産コンサルティング事業)
OTHERS(地域・エリア特性に合わせた様々な企業と連携した不動産開発事業)
このプレスリリースには、メディア関係者向けの情報があります
メディアユーザー登録を行うと、企業担当者の連絡先や、イベント・記者会見の情報など様々な特記情報を閲覧できます。※内容はプレスリリースにより異なります。
すべての画像
