【2025年7月4日OPEN】USJ/海遊館すぐ!大阪ベイエリアにリゾートテイストの民泊「eni.rattan chikko」がオープン!【夢洲すぐ】
大阪を中心に民泊施設を運営する株式会社LDKプロジェクト(所在地:大阪府中央区、代表:生田博之)は2025年7月4日(金)に大阪「大阪港」に新しい民泊施設「eni.rattan chikko(えに らたん ちっこう)」をNEW OPENいたします。
《公式予約》https://go2eni.com/prt_enrtck
《Instagram》https://go2eni.com/prtimes_eniinst


・「eni.rattan chikko」について

「eni.rattan chikko」が誕生するのは、大阪市港区築港エリア。大阪メトロ「大阪港」駅から徒歩4分という好立地にあり、人気テーマパーク・ユニバーサル・スタジオ・ジャパン(USJ)まではタクシーでわずか13分。海外からの観光客にも人気のクルーズ船でのアクセスも可能です。話題のスポット「夢洲」へも2駅という利便性の高いロケーションで、観光・レジャーの拠点として最適です。築港エリアは、レトロな倉庫街や近代建築の残る歴史的エリアとしても知られ、近年ではカフェやギャラリーなども点在しているので散策にもぴったり。ローカルの魅力と観光拠点としての機能を兼ね備えたエリアに、旅の滞在先として新たな選択肢が誕生します。

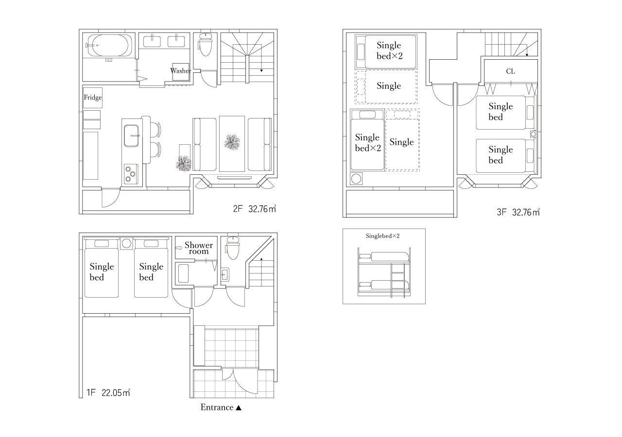
「eni.rattan chikko」は、3階建ての一軒家をリノベーションした、一棟貸しスタイルの民泊施設です。3LDKの広々とした間取りで、LDKは約13.5畳。最大10名まで宿泊が可能です。

当施設の大きな特徴はリゾート感あふれるインテリア。ラタン素材や自然を感じさせるインテリアや内装の配色を意識し、リゾートを彷彿とさせるような南国テイストの空間に仕上げました。壁にはグリーンのリーフ柄のクロスを取り入れ、都会の喧騒を忘れさせてくれるような非日常のリビング空間を演出しています。


キッチンカウンターには天然素材のラタンチェアを配し、柔らかなブルーのアクセントウォールがさわやかな印象を与えます。キッチン背面には調理器具や家電も充実。様々なライフスタイルに適応できるよう設備を整えています。
ホテルとは異なり、各個室のプライベート性だけでなく、「集まって過ごす」時間を大切にした一軒家ならではの空間設計が、グループ旅行やファミリーでの長期滞在にもぴったりです。

・水廻りについて

大人数での滞在でも快適に過ごせるよう、水回り設備も充実しています。バスタブ付きの浴室に加え、シャワールームを別途1室設置し、朝の準備時間もストレスフリーに。洗面化粧台には2つのボウルを備え、同時に複数人が身支度できる仕様となっております。海外からのゲストにも配慮し、シンプルかつ清潔感のあるデザインとしながらも、木の温もりを感じられる空間演出にもこだわりました。洗濯機も完備しており、長期滞在やファミリー旅行にも対応。ホテル以上に“自分たちの空間”として、自由度の高い滞在を可能にする水回り設計が、旅の快適さを一層引き立てます。

また、浴室のシャワーヘッドには最新の「ReFa」のシャワーヘッドを採用。シャンプーやコンディショナーなどのアメニティはPOLAで統一。女性に嬉しいラインナップをご用意しております。

洗面脱衣室には洗濯機も完備しており、長期滞在やファミリー旅行にも対応。ホテル以上に“自分たちの空間”として、自由度の高い滞在を可能にする水回り設計が、旅の快適さを一層引き立てます。
・各寝室について



当施設は合計3部屋のベッドルームを備えており、最大10名までの宿泊が可能です。この一軒家スタイルの民泊は家族や友人など大人数でのグループ旅行でもプライバシーが保てる設計なのでグループ旅行者に非常に人気です。各居室は温かみある照明やインテリアで設計されており、旅の疲れを癒し、心からくつろげるひとときを演出します。和洋どちらの文化にも馴染むニュートラルなデザインが、国内外問わず幅広い層にご利用いただける仕様となっています。
(1階居室:シングルベッド2台 3階居室1:シングルベッド2台 3階居室2:シングルベッド6台)


「eni.rattan chikko」へのご予約お待ちしております。
・間取り図

<当施設の概要>
●施設名:eni.rattan chikko(エニ ラタン チッコウ)
●住所 :〒552-0021 大阪府大阪市港区築港2丁目6番2号
●アクセス :大阪メトロ「大阪港」駅から徒歩4分
※乗用車1台までご利用可能です。2台目以降は近隣のコインパーキングをご利用ください。
●料金プラン:25,000円~
《公式予約》https://go2eni.com/prt_enrtck
・「eni.」とは

eni.のコンセプト
e xtraordinary(非日常)
n arrative(物語)
i dentity(自分であること)
. (周りを旅すること)
忙しい日々を離れて、人生をすこしだけステイしませんか。eni.(エニ)はニッポンのあたらしい滞在体験をつくる都市型バケーションレンタルです。ゆっくりとくつろげる空間づくりをいちばんに考えながら、思い出に残したくなる世界観とインテリアにもこだわりました。リラックスするほどに、本来のジブンを取り戻していく。旅する人たちの物語の1ページをつづる、そんな居場所になりたいと思います。
《Instagram》https://go2eni.com/prtimes_eniinst
《eni公式HP》https://go2eni.com/prtimes_eni
・わたしたちのこと

人生に綴られる ひとときをつくる
宿泊は「お客様の時間をお預かりして、快適で価値のある空間とサービスを提供すること」だと私たちは考えています。「また泊まりたい」と思ってもらえる施設をつくりたい。 設備やサービス、インテリア、清掃にいたるまで、 手を抜かず、心をこめる。訪れた人の「人生」 という物語の1ページになるような思い出に残る時間と体験ができる宿泊施設を提供します。
企 業 名 : 株式会社LDKプロジェクト
所 在 地 : 〒540-0017 大阪府大阪市中央区松屋町住吉6-26 eninal MACCHAMACHI 2F
代 表 者 : 代表取締役 生田博之
事業概要: 民泊施設の運営管理、レンタルスペースの運営管理、不動産賃貸業、清掃業務、貸別荘運
営、サウナ事業
《公式HP》https://ldk-pjt.com/prs_ldk_hp
【民泊運営代行に関するご相談やご質問先】
使用していない部屋を活用したい、民泊に興味があるけれど知識もなく不安、実際に自分でもできるか確認したいなど、些細な相談でもかまいません。業界をリードする大阪で長年民泊を営むLDKプロジェクトが丁寧にお答えします。お気軽にどうぞ!
《民泊代行ページ》https://ldk-pjt.com/ldk_daiko
【本件に関するお問合わせ・取材等のお申込み先】
株式会社LDKプロジェクト 運営管理担当
テレビや雑誌、新聞社様からの取材大歓迎です。
お気軽にお問合せくださいませ。
E-mail:marketing.div@ldk-pjt.com
このプレスリリースには、メディア関係者向けの情報があります
メディアユーザー登録を行うと、企業担当者の連絡先や、イベント・記者会見の情報など様々な特記情報を閲覧できます。※内容はプレスリリースにより異なります。
すべての画像
