わが家は、好きだらけ!?住宅エンターテインメントブランド「LIFE LABEL」と「amadana」が考える、暮らしを妥協しない”好き“が真ん中にある家づくりとは?
【共同プレスリリース】LIFE LABELとamadanaが考えるこだわりを中心においた"好きだらけ"の家「amadana base」をリリース
両者で共同開発するのは、趣味やこだわりを最大限楽しめる住宅「amadana base produced by amadana(アマダナベース プロデュースドバイアマダナ)」。amadanaが住宅を手がけるのは初の試み。LIFE LABEL取扱店にて2022年春頃販売開始予定。
※本リリースはamadana株式会社との共同リリースです。重複して配信される場合がございますが予めご了承ください。

- amadana株式会社について
新しい生活文化をデザインする。amadanaは「事業そのもののデザイン」を行うクリエイティブ総合商社です。
日本の美意識とテクノロジーが融合したエレクトロニクスブランド「amadana BRAND」をはじめ、音楽を楽しむソリューションブランド「Amadana Music」、コーヒーブランド「Beasty Coffee by amadana」、またスポーツビジネスのDtoCを実現するデザインファーム「amadana SPORTS ENTERTAINMENT」など、家電のみならず多角的なクリエイティブソリューション事業を展開しています。

- LIFE LABEL×amadanaとつくる住宅「amadana base」とは?
“こういう暮らしってアリじゃない?“から暮らしの視点を変える。
洗練されたデザインで多くの人を魅了し、当時の家電業界に一石を投じたamadanaプロダクトですが、amadanaが考える「デザイン」は、単に“見た目”だけではありません。ライフスタイルに求められる、カルチャー、モノづくり、ユーザー体験までも含めて最適化することでそのサービスの価値を最大化することが「デザイン」だと考えます。
そんなamadanaとLIFE LABELがタッグを組み提案する、新しい暮らし方とは?
それは“あたりまえ”を超えて、住み手の”こういう暮らしがしたい”というインサイトに寄り添った家づくり。
従来の家づくりでありがちな、人生で一番大きな買い物をする戸惑いの中、ハウスメーカー提案主導で住まい手が受け身になってしまい“よくある普通の家”になってしまうこと。
そこで今回私たちは、自分の「好き」や「こだわり」をあえて生活の真ん中に置くことで“毎日が1トーン気持ち高まる暮らし”を考えました。趣味を持つ方の多くは、書斎やガレージなどの個室にこもりがちですが、家全体が“趣味部屋”のようにこだわりで溢れていたら毎日が楽しくなりそう!という発想。「好き」が生活の真ん中にあることで、日々の何気ない瞬間も自分のテンションを高めてくれる。視点を変えれば暮らし方がガラッとかわる!そんなライフスタイル発想の家づくりを考えました。
LIFE LABELは、「家は人生を楽しむための舞台」だと考えます。その舞台をアイディア次第でいかに楽しめるか。そんな家というフィルターを通した暮らしの楽しみ方をこのプロジェクトを通じ発信していきます。

- 住まい手の“好き”が中心の、「好きだらけの家」できました。
こだわりを妥協しない、“好き“が真ん中にある家「amadana base」。
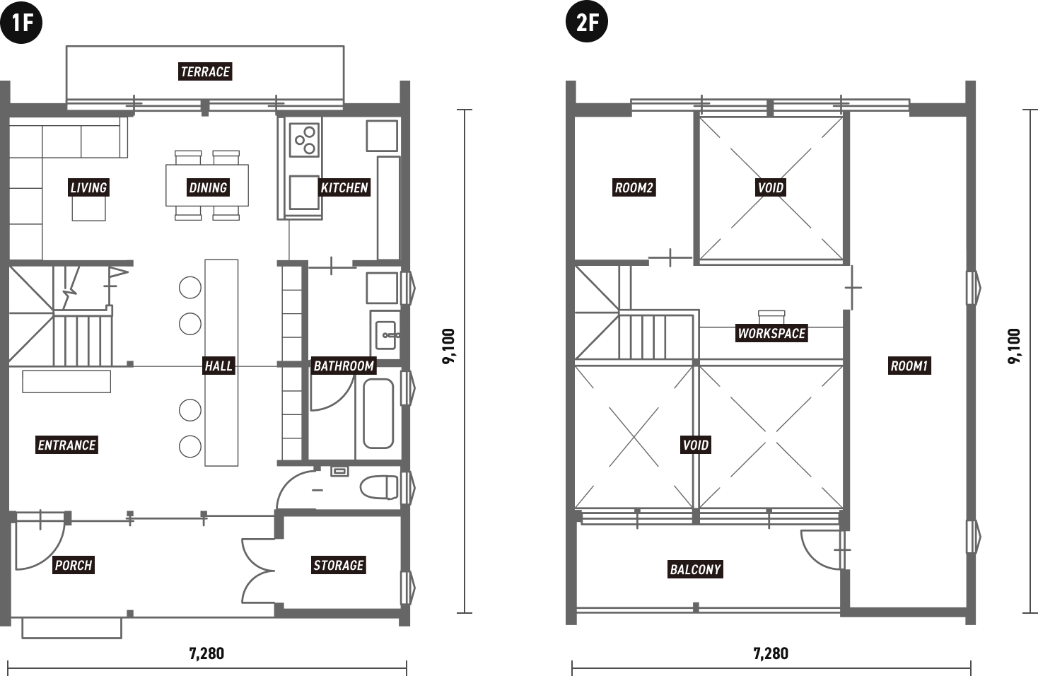
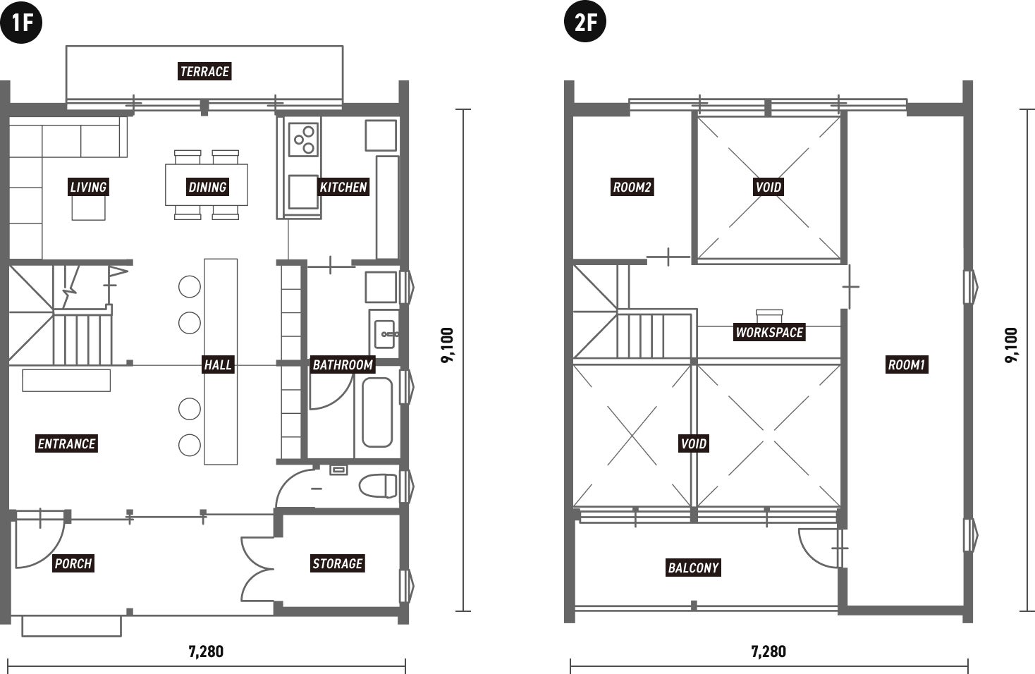
amadanaプロダクトを感じさせるウッド×ブラックの洗練されたデザインをベースに、大胆にも家の中心に“好き”を最大限楽しめるパブリックスペース、「好き間※」を配置しました。キッチンやリビングダイニングともひと続きでどこからでも見渡せる開放的な大空間は、家族の暮らしを1トーン気持ち高める“好きだらけの家”を実現します。
例えば、音楽好きの家族が暮らすなら…
広めのカウンターボードに、DJブースを設置。生活の中で常に心地い良い音楽が家中を満たし、家族や友人が自然と集まる憩いのスペースに。背面の棚は大きなスピーカーや長年集めた大量のレコードがぴったり収まる大収納。もちろん配線も裏側ですっきり完結。そんな自分にとっても最高の空間で丁寧にコーヒーを淹れる休日なんて、いかがでしょう?
※好き間とは?
玄関や廊下など一般的にはサブスペースとなる共有部を、趣味や愛してやまないものを大胆に楽しめる、大空間として家の中心に配置。そんなこだわりを叶えるスペースを「好き間」と名付けました。
- プロダクトネーム
amadana base produced by amadana
(アマダナベース プロデュースドバイアマダナ)
- ロゴデザイン
- プロダクトコピー

- プロダクトデザイン
外観:amadanaの象徴的な「ウッド×黒」デザインを外観デザインにも採用。ブランドトーンを踏襲した洗練されたデザイン
エントランス:玄関に入ると黒を基調とした吹き抜けの空間に。
ホビースペース:玄関や廊下のサブ空間を目一杯広く取り、「音楽が中心にある好き間」を表現 趣味やこだわりやを詰め込めるスペースに
リビングダイニング:こだわりの詰まった「好き間」とシームレスにつながるリビングダイニングスペース

※床面積に関しては、屋内部分の床面積合計で記載しています。建築基準法上の延床面積とは異なる場合があります。
- プロジェクトサイト
- 【TOPIC】あの有名音楽家「冨田ラボ」氏がamadana baseのテーマソングをプロデュース!!
今回のプロジェクトでは「Amadana music」など音楽との親和性の高いブランド特性を活かし、また、「音楽が中心にある好き間」を提案した今回のプランリリースを記念して、この住宅での暮らしをイメージしたテーマソングを開発いたします。
楽曲を手がけるのは数々のヒットソングを手がける音楽家「冨田ラボ」氏。「ポップ・マエストロ」と称される冨田氏が得意とするシティポップ調の楽曲でどこか懐かしく、心地よい暮らしを音楽を通じて、発信していきます。

- LIFE LABEL × amadana 開発者インタビュー
「好き」に囲まれて暮らすという価値を真剣に考えた住宅
今回の住宅開発にあたり目指したコンセプトは「趣味と生きる家」。
「寝る間を惜しんでも好きなことをやりたい、自分の部屋が中心の家がいい」など、最大公約数では満たされないニーズに対し、趣味やこだわりを全面に楽しめる家をつくりたいと考えました。
衣食住へのこだわりの中で後回しになりがちな「住」という領域ですが、暮らしまでトータルに自分のこだわりを表現することで、その人のライフスタイルはもっと充実するのではないか。
“好き”に囲まれて暮らすという価値をこのプロジェクトを通じて発信し、「こんなの欲しかった!」と思ってもらえるような住宅を提供したい。
こだわりを妥協しない、“好き“が真ん中にある暮らしを「amadana base」が叶えます。

■amadana株式会社 代表 熊本浩志氏のコメント
これまで住宅関連のオファーはいくつもありました。僕達が住む場所を考えたとき、デザインと機能が良い家は当たり前になったと 考えます。そういった価値基準ではなくて、好きなものに囲まれて暮らしたい。そういった要求に寄り添ったユニークな住宅をLIFE LABELとならば、一緒に作れるのではないかと思いました。
■BETSUDAI Inc.TOKYO代表 兼 LIFE LABELディレクター 林のコメント
元々僕からのオファーだったのですが、初めてお会いした時、熊本さんのアウトサイダー的な考え、シニカルな視点が僕の考えとも合致した気がして今回の共同開発がスタートしました。
ライフスタイルが重視される今、住宅において楽しみ方の根拠はデザインの中に組み込まれていないといけない。
そういう思いが、amadanaのアイデンティティをお借りすることで実現できると思いました。
どんな人がこの家に住むのか、今から楽しみです。
左:BETSUDAI Inc.TOKYO代表 兼 LIFE LABELディレクター 林哲平 右:amadana株式会社 代表 熊本浩志氏
■LIFE LABEL magazine掲載 :「amadana base」開発者インタビュー
【前編】 LIFE LABELとamadanaが考える“家”とは。
https://lifelabel.jp/magazines/439
【後編】「好き」を真ん中に。amadana baseでどう楽しむ?
https://lifelabel.jp/magazines/441
------
<ブランド情報>
【LIFE LABEL(ライフレーベル)】について
LIFE LABELは、“Hello,new fun.” をブランドタグラインとして、2017年からスタートした住宅ブランドです。 2022年2月より、HOUSE IS ENTERTAINMENT. (家を、暮らしをもっとエンターテインメントに。)をスローガンに掲げ、エンターテインメントやカルチャー情報を”住宅”というフィルターを通して発信しています。また、様々なブランドとコラボレーションし規格住宅デザインを開発。FC事業として、全国160社以上のLIFE LABEL取扱店にてブランドを展開しています。
URL: https://lifelabel.jp/
【amadanaについて】
新しい生活文化をデザインする。 業界のボーダレス化に伴って競合・顧客が変化してきており、一社の経験・リソースだけでは新しいアイディア・ビジネスを構築することが難しくなってきている時代。私達は自社で培ったノウハウで、コンセプトメイクから施策の実行まで「事業そのもののデザイン」を行うクリエイティブ総合商社です。
URL: https://www.amadana.com/
このプレスリリースには、メディア関係者向けの情報があります
メディアユーザー登録を行うと、企業担当者の連絡先や、イベント・記者会見の情報など様々な特記情報を閲覧できます。※内容はプレスリリースにより異なります。
すべての画像