~脱炭素、SDGs、地域創生~ 6/7(金) 富山県初!(※1) 地域交流スペースを兼ね備えた CLTログハウスの「保育・子育て支援施設」 完成披露会
園児による記念式典/稚児行列/施設見学/CLTログハウス技術解説 日時:6/7(金) 10:00 ~14:00 場所: 富山県富山市上滝
ログハウスNO.1(※2)の「BESS」((株)アールシーコア(東京都渋谷区代表取締役社長 二木浩三)は、先駆的な木造建築事例として注目を集める「CLTログハウス造の保育・子育て支援施設」を富山県に竣工しました。
当施設は、「社会福祉法人大山保育会 幼保連携型認定こども園 上滝保育園」がオーナーであり、社会福祉法人として地域社会に貢献するという理念に基づき、地域の交流スペースやリモートワーク設備を兼ね備えた保育・子育て支援施設になっています。今回の披露会では、「上滝こどものもり」の完成記念式典と地域の方への披露会も同時に開催します。ぜひこの機会に木に囲まれたログハウスで遊ぶ子供たちや地域の方との交流と併せて、地域交流スペースを兼ね備えたCLTログハウスの保育・子育て支援施設をご覧ください。

BESSは、かつては山小屋や別荘の代名詞だったログハウスを、マシンカットの導入、防火認定の取得、告示の改正などの技術開発を進め、一般住宅に普及させる中核を担ってきました。

さらに、CLT材を用いたログハウスは、長尺材が取れ、大型の施設建築にも適しているため、その可能性を追求しています。日本でのCLTログハウスは、当該物件を含み5棟と工法としての認知も低い状況ですが、木造建築の中で異彩を放つログハウス構法。脱炭素社会において注目を集め、「個人住宅/共同住宅/低層ビル/商業施設」各種施設の木造建築需要に木を現わしで使う圧倒的な木質感とハード性能で普及が進むと予測されます。
アールシーコアは、「CLTを用いたログ材の特許」、並びに「CLTログハウスの商標」を保持(※3)しています。
<カリキュラム予定>
日時: 2024年6月7日(金)10:00~14:00頃 (懇親会以降はご都合の許す限りご参加頂ければ幸いです)
会場: 〒930-1312 富山県富山市上滝499 上滝保育園の隣
交通: 富山駅より車で30分、富山地方鉄道上滝駅より徒歩4分

<当施設の特長と木造保育園のメリット>

① 2/29に開催された、富山県主催「木造公共建築講座」の題材となりました
富山県初となるCLTログハウスの非住宅という希少性と、純木造建築事例として注目を集め、富山県主催の「木造公共建築講座」の題材に。地元工務店や設計者、木造技術者など約30名が参加され、見学とともに木材現わしの魅力、CLTログハウスの技術解説や特長、材料供給・施工留意点などが伝えられました。
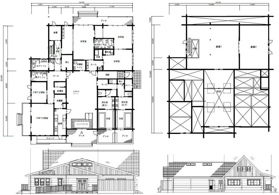
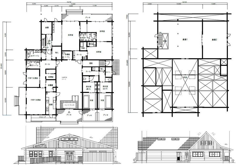
② ログハウス=純木造の大型保育園(延床471.05㎡)であること
ログハウスは直交する木材を組み合わせ、外壁・内壁に木を表わし利用する合理的な工法。圧倒的な木質感と温かみ、ハード性能が大きな魅力。こども園の建築基準に準拠し、既存のログハウス建築では難しかった準耐火認定45分の取得により実現。厚さ12cm×高さ40cmのCLTヒノキ材(JAS材)を使用。

③ 国がCLTを使用した木造施設建築を推奨していること
脱炭素の視点に加え、木材の新たな需要や産業分野の創出、地方創生を意図してCLT材の活用に大きな期待が寄せられています。https://www.cas.go.jp/jp/seisaku/cltmadoguchi/index.htmlログハウスは、一般の木造住宅の約3倍の木材を使用するため、循環型社会の創造に貢献します。
※当物件の炭素貯蔵量は 74t-CO²
杉の木に換算すると 約83本 の二酸化炭素蓄積量に相当。
④ 子供に良い影響を与えること

数十名の園児を保育する十分な広さと設備を備えています。木に包まれて元気に遊んだり、眠ったり。ログハウスは保育施設に最適です。木質の肌合いがある優しい空間と木に触れることで、ぬくもり、安心感、香りなどが、子供の情緒の安定や集中力の向上などに良い影響を与えます。
⑤ 地域交流スペースを備えること
社会福祉法人として地域社会に貢献。気持ちの良い木の空間を提供し、地域の方同士の交流や園児との交流も生み出します。また、都市の子供が地方の保育園に通いながら家族で地域に滞在できる「暮らし体験」を行う、(株)キッチハイクが運営する「保育園留学」と提携。地方での非日常体験にこのログハウスが活用され、将来的な地方移住にもつながる「関係人口創出」にも貢献します。
<物件概要>
・竣工 : 2024年3月
・工法 : 木造丸太組み構法 (CLT利用)
・CLTログ材 : 国産桧(幅120mm×高さ400mm)
・延床面積 : 471.05㎡ (1F345.4㎡、2F125.65㎡)
・建物用途 : 1F 保育園兼、地域の集会所 / 2F 大型倉庫
・設計/施工 : BESS(株式会社アールシーコア)
・オーナー : 社会福祉法人大山保育会 幼保連携型認定こども園 上滝保育園

<CLTログハウスの技術解説については>
一般社団法人 日本CLT協会 の「CLTログハウス」解説ページをご参照ください。
ログハウスの変遷から、CLTログハウスの可能性などがご確認いただけます。
https://clta.jp/document/detail/remodelingwg_loghouse_20231113/
※1)自社調べ :一般社団法人日本ログハウス協会 専務理事池田均氏にヒヤリング (2024年3月現在)
※2)2021 年 4 月~2022 年 3 月国内シェア 57%、国土交通省「丸太組構法建築確認統計」より当社算出
※3)特許・商標 :CLTを用いたログ材の特許(特許7169690)/ CLTログハウスの商標(登録6202021)
<参加申込について>
下記の登録フォームにアクセスいただき、お申し込みください。※電話・メールでもお申込みいただけます。
・電話 :03-5990-4077 (アールシーコア BESSブランディング部 池松宛)
・メール:press-rccore@bess.jp(同上)
・申込み締切:5/30(木) まで ※締切を過ぎての参加申込も可能です。
<お問い合わせ>
(株)アールシーコア ブランディング部 池松・吉田・河内 03-5990-4077 press-rccore@bess.jp
◆ブランドサイト:https://www.bess.jp/ ◆企業サイト: https://www.rccore.co.jp/
このプレスリリースには、メディア関係者向けの情報があります
メディアユーザー登録を行うと、企業担当者の連絡先や、イベント・記者会見の情報など様々な特記情報を閲覧できます。※内容はプレスリリースにより異なります。
すべての画像
