クリーンエネルギーで環境保全と災害対策を両立する「LED太陽灯 レディオック エリア セレーネ」を発売

岩崎電気は、太陽光を電気エネルギーに変換して蓄電池に蓄え夜間照明に利用するLED太陽灯シリーズに「LED太陽灯 レディオック エリア セレーネ」をラインアップ。
4月1日より発売します。
「LED太陽灯 レディオック エリア セレーネ」は、日常も災害時にも太陽光エネルギーのみを利用し点灯を可能とした街路灯です。
(一社)日本照明工業会が制定するJIL 5510(屋外用非常灯及びソーラーライト技術基準)※適合と、景観への調和に配慮したシンプルなデザインを両立しました。
満充電時には1日当たり最長14時間点灯(全点灯6時間、50%点灯8時間:有効日照時間4時間地域)、蓄電容量は5日間分を確保しています。
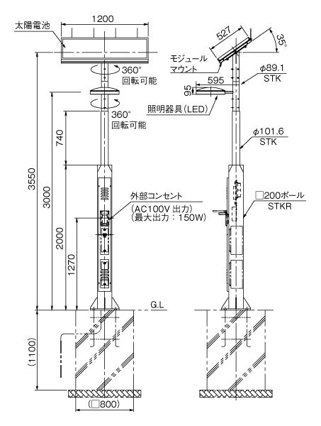
AC100V出力タイプは、さらに非常用電源として携帯電話の充電などに活用できます。
広域避難場所などの防災施設だけでなく、駅前や集合住宅・オフィスビルほかの周辺広場、学校などへの設置をおすすめします。
岩崎電気では、近年の災害多発を背景に、屋外防災照明器具をさらに充実し、エリア防災による安全・安心な街づくりに貢献するために、地方自治体をはじめとしたエリア防災の普及に寄与してまいります。
※JIL 5510:(一社)日本照明工業会が制定する自然災害時などによる、停電時の避難活動を助けることを目的とした「屋外用非常灯」、「ソーラーライト」などに関する技術基準。
特長
施工が簡単
配管・電線埋設工事が不要
独立電源で安心
災害発生時、停電の影響を受けず、夜間に照明点灯可能
電気代ゼロ
太陽光を電力に利用するため経済的
環境負荷低減・省エネルギー
自然エネルギーによるクリーンな発電
災害時、非常用電源として活用(AC100V出力タイプ)
照明の点灯を持続しながら、非常用電源(AC100V)として携帯電話などへの充電が可能

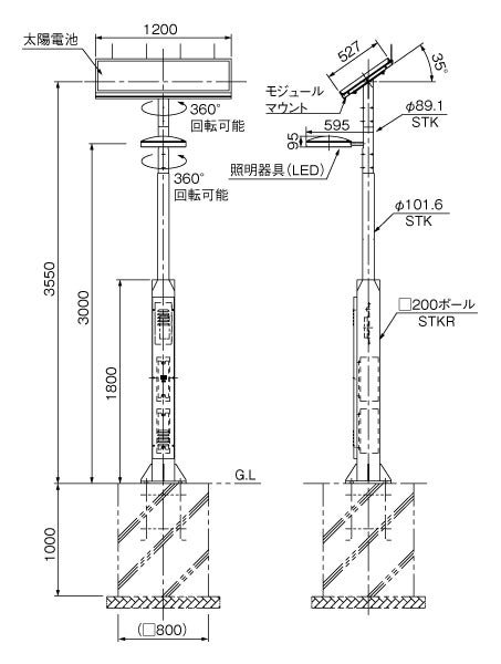
主な仕様
LED太陽灯 レディオック エリア セレーネ
14時間点灯タイプ
-
希望小売価格:△¥857,000[税抜]
-
1日当たりの最長点灯時間:14時間(全点灯6時間、50%点灯8時間)
-
蓄電池容量:5日間点灯分
LED太陽灯 (AC100V出力タイプ) レディオック エリア セレーネ
14時間点灯タイプ
-
希望小売価格:△¥1,057,000[税抜]
-
1日当たりの最長点灯時間:14時間(全点灯6時間、50%点灯8時間)
-
蓄電池容量:5日間点灯分
-
100V電源使用可能時間(20W使用時の目安):約20時間
※△…受注生産品
共通仕様
[屋外用][溶融亜鉛めっき仕様]
灯具本体:アルミダイカスト
仕上色:メタリックシルバー
保護等級:IP23
使用温度範囲:-10℃~+35℃
光源色:昼白色(5000K)
太陽電池モジュールマウント:ステンレス
ポール:鋼管(溶融亜鉛めっき後塗装)
アンカーボルト:ANC243050(別売)


このプレスリリースには、メディア関係者向けの情報があります
メディアユーザー登録を行うと、企業担当者の連絡先や、イベント・記者会見の情報など様々な特記情報を閲覧できます。※内容はプレスリリースにより異なります。
すべての画像
