理想の暮らしを提供する、入居者向けサービス『JFK』をリリース
『ものありきの投資から人の活動に着目した投資へ』
この度受託物件において、入居者様それぞれの暮らしにあったサービスの提供を開始しました。

メッセージ
「JFK」とは
「JUST」 ちょうど
「FIT」 適した・合う
「KURASHI」 暮らし
頭文字を掛け合わせた造語です。
多様化するライフスタイルのご希望を叶える物件を提供するというメッセージが込められています。
HP:https://www.jfk-residence.com/
コンセプト
お部屋のハードとソフトに着⽬した“暮らしの最適化”を実現。

現在、一般的に出回っている物件の多くは普遍的なデザイン・設備の物件が多く存在しています。
JFK Residenceは基本的な建物のグレード・設備は完備しながらも
+αの設備・サービスをご用意し、入居者様それぞれの最適化された暮らしを提供致します。
コンセプトの背景
それぞれが憧れる理想の暮らしをイメージしながら物件を探しますが、
いざ探してみるとイメージしている理想の物件が中々⾒つからず
最終的に少しずつ妥協をしながら物件を選定していませんか?
弊社は 『JFK』を通じてこのお悩みを解決する⼿助けを致します。
JFKポイント
【ASTILE⽇本橋浜町】 (東京都中央区)
紹介ページ:https://www.jfk-residence.com/astile-nihonbashihamacho
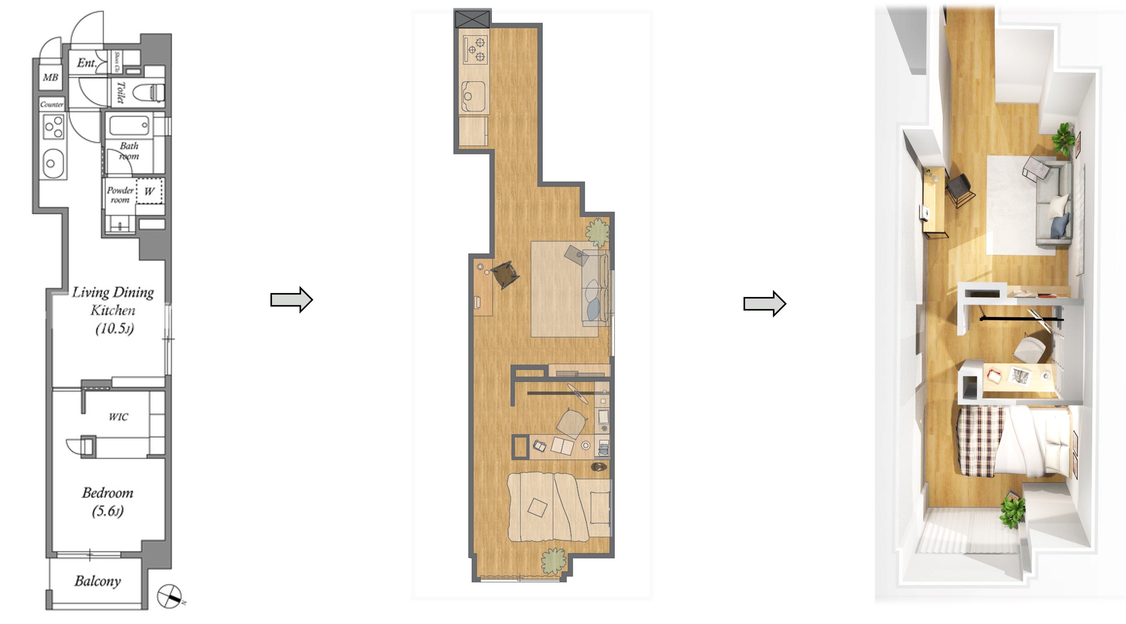
インテリアコーディネートで実現する理想の暮らし
オシャレな部屋に住みたい。そう考える⼈が多いですが、
・じゃあ家具はどこで探そう
・最終的なレイアウトを考えるのは⼤変
・そもそもオシャレに⾃信がない 等
時間がない・スキルがないといった⼈も同じぐらい多いことでしょう。
そんな方の理想の暮らしをサポートするインテリアコーディネートサービスをご提供します。


物件のレイアウトをイメージ図にインテリアコーディネータが書き起こし、
住む⼈が望む「最⾼にオシャレな部屋」を実現することが可能です。
その他にも
・憧れの多頭飼いライフ(レピュア浅草:https://www.jfk-residence.com/repure-asakusa )
・部屋の中に集中できるワークスペースが欲しい。"ワークイン"!?クローゼット(アスティーレ日本橋浜町:https://www.jfk-residence.com/astile-nihonbashihamacho )
・ルーフバルコニーでお昼寝(デンズ曙橋:https://www.jfk-residence.com/dens-akebonobashi )
など、個人個人が抱える目指したいライフスタイルに合わせた物件を今後も作り上げていきます。
普通の賃貸では実現できない理想の暮らしを『JFK』が提供します。
詳細は下記HPをご覧ください。
すべての画像
