無印良品の家「岩手店」モデルハウス 11月3日(木・祝)オープン
岩手県で唯一の無印良品の家モデルハウス
「無印良品の家」を展開する株式会社MUJI HOUSE(本社 東京都豊島区 代表取締役社長 堂前 宣夫)は、「無印良品の家」ネットワーク・パートナーである株式会社J-BASE(本社 宮城県仙台市 代表取締役社長 高橋 淳也)が運営する、無印良品の家 岩手店「木の家」モデルハウスを11月3日(木・祝)にオープンいたします。

岩手店「木の家」モデルハウスは、将来求められる高性能な住宅を実現するため、外壁の断熱には外張り断熱と充填断熱を併せたダブル断熱を標準仕様としており、モデルハウスの断熱性能は、UA値は「0.49」という性能値を実現しています。
また、無印良品の家ではすべての建物を「耐震等級3」の耐震性を確保しており、採用しているSE構法は、 強度が明確な「構造用集成材」の柱と梁を「SE金物」で接合し、構造の耐久性を数値で証明する「構造計算」を可能にしています。無印良品の家では建設するすべての建物を、一棟ずつ個別に構造計算を実施しています。
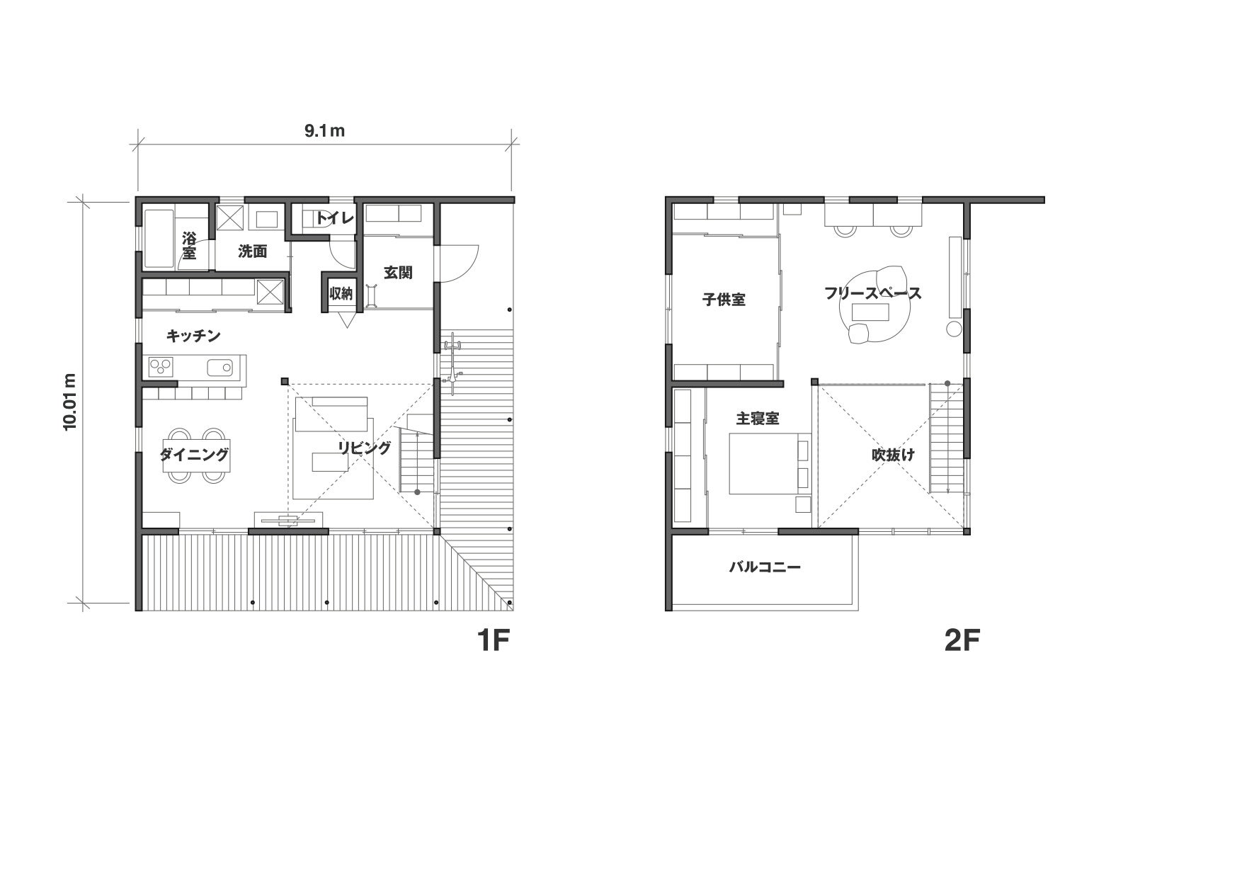
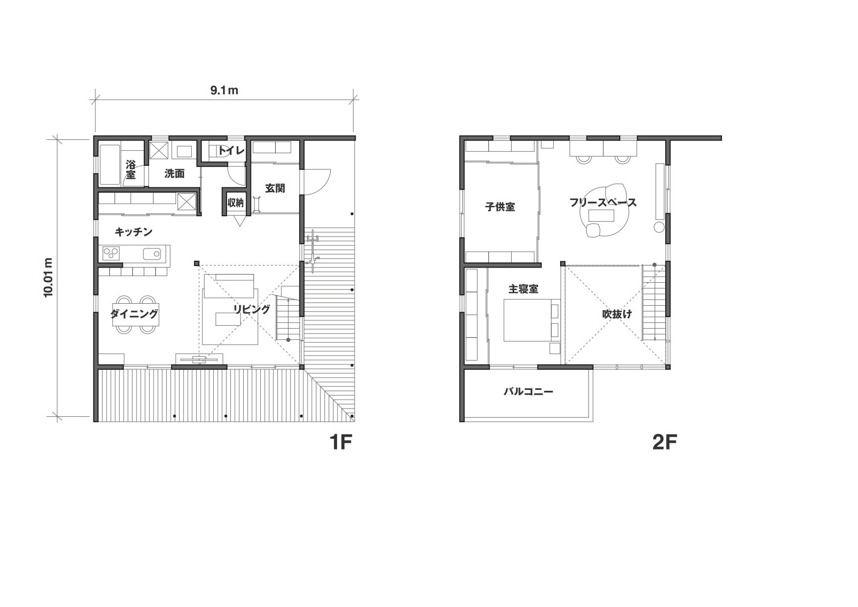
モデルハウスの概要

建築面積 91.09㎡(27.55坪)
延床面積 108.47㎡(32.80坪)
工事面積 158.99㎡(48.09坪)
販売価格 2,459万円(税込2,705万円)
住所 岩手県盛岡市向中野字道明179番4
アクセス 東北自動車道『盛岡南インター』を盛岡・宮古方面出口に進み、ヤマト運輸盛岡本宮
センター前の交差点を左折、約1.3㎞直進後、道路沿い左手
ホームページ 無印良品の家 岩手店 https://www.muji.net/ie/modelhouse/iwate/
施工可能エリア 岩手県(一部エリア除く)
運営会社 株式会社 J-BASE 代表取締役社長 高橋 淳也
宮城県仙台市青葉区本町一丁目1番1号


「木の家」のコンセプト
吹抜けがある開放的な一室空間で、住まい手が思うままに住まいを「編集」する。そんな自由な発想を木造住宅でかたちにした、「無印良品の家」第一弾が「木の家」です。強度が安定した構造用集成材によるSE構法を採用。大きな開口部と深い庇がある、箱のようなすっきりとした外観を持ち、太陽光と通風を最大限に活用する、環境負荷の少ない合理的な考えで設計されました。南向けの庇(ひさし)は、季節によって異なる日射を調整し、夏は直射日光を遮り、冬は温かな陽光を室内の奥まで導きます。温められた放射熱は、外断熱方式で外に逃がさず、少ないエネルギーで快適に暮らせる省エネ性能の高さも特長です。
2006年度グッドデザイン賞受賞、2017年度グッドデザイン・ロングライフデザイン受賞。
「無印良品の家」のコンセプト
「永く使える、変えられる」をコンセプトに、耐震性および耐久性の高いSE構法の採用により「永く使える」ことを可能にし、将来の家族構成やライフスタイルの変化に合わせて間取りを柔軟に変更できる、「変えられる」家づくりを実現しています。

「無印良品の家」 商品構成
2004年10月に発売した「木の家」に続き、2007年4月には新商品「窓の家」(2008年度グッドデザイン金賞受賞)を発売しました。2014年4月には都市型3階建て住宅「縦の家」(2014年度グッドデザイン賞受賞)を発売しました。2019年9月に平屋「陽の家」を発売し、現在は4商品の展開となっています。
全国のモデルハウス
青森店(木の家・窓の家・陽の家)、仙台北店(木の家)、新潟店(窓の家)、金沢店(木の家)
宇都宮店(木の家)、高崎店(木の家・陽の家)、熊谷店(木の家)、久喜店 (木の家)
つくば店(窓の家)、MUJI新宿 家センター(木の家)、東京有明センター (陽の家)
港北ニュータウン店(木の家)、湘南店(窓の家)、浜松店(木の家)、名古屋店(木の家・窓の家)、
岡崎店(木の家・窓の家)、大津店(窓の家)、京都南店(木の家)、奈良店(窓の家)、
グランフロント大阪 家センター(木の家)、大阪南店(木の家)、和歌山店(木の家)、
宝塚店(木の家・窓の家)、姫路店(木の家)、倉敷店(木の家)、広島西店(木の家)、
米子店(木の家)、山口店(木の家)、香川店(木の家)、福岡店(木の家・陽の家)
長崎店 (木の家)、中津店(窓の家)、大分店(木の家・陽の家)
熊本店(木の家・窓の家・陽の家)、鹿児島店(木の家) 岩手店(木の家)全36拠点
今後のモデルハウスオープン予定
「無印良品の家 長野店(木の家)」 長野県長野市、2022年11月オープン予定
「無印良品の家 大宮店(木の家)」 埼玉県大宮市、2023年1月オープン予定
「無印良品の家 札幌店(木の家・窓の家・陽の家)」 2023年オープン予定
株式会社MUJI HOUSE会社概要
社名 株式会社 MUJI HOUSE 代表取締役社長 堂前 宣夫
所在地 〒170-8424 東京都豊島区東池袋4-26-3
電話 03-3989-7731
設立 2000年5月31日
資本金 1億4,900万円(2021年5月1日現在)
事業内容 無印良品の家を中心とした住空間の直営及びネットワーク事業の運営/商品企画/開発/卸および販売
無印良品の家公式ホームページ https://www.muji.net/ie/
無印良品の家公式Facebook https://www.facebook.com/mujiie.jp
無印良品の家公式instagram https://www.instagram.com/mujihouse/
無印良品の家公式Youtube https://www.youtube.com/channel/UCEEOLt873ILRjhvLS9dVsow
無印良品の家公式Twitter https://twitter.com/MUJI_house
このプレスリリースには、メディア関係者向けの情報があります
メディアユーザーログイン既に登録済みの方はこちら
メディアユーザー登録を行うと、企業担当者の連絡先や、イベント・記者会見の情報など様々な特記情報を閲覧できます。※内容はプレスリリースにより異なります。
すべての画像
