若手女性社員が企画・設計、多様なライフスタイルを提案する建売住宅
建築士こだわりの間取りが魅力のリストガーデン玉縄4丁目

本物件は、昨今のSNSなどでの発信によって自らのライフスタイル意識が高く「こだわりの家を求める若い世代」をターゲットに、同世代の20代女性社員たちがマーケティング・企画・設計・広告戦略を担当しました。
建売住宅のリストガーデンシリーズは、建売業者によくみられる効率的な間取りの採用が増え、設備仕様や色彩によって他社と差別化を図るという実情がありました。そこで、今回若手女性社員を中心にマーケティング・企画・設計・広告戦略を行うことで、様々なライフスタイルを想定した注文住宅のような戸建住宅が実現しました。
鎌倉市玉縄は建売と注文住宅が混在するエリアのため、注文住宅を検討する層や注文住宅に憧れる層に向けて、建売でも理想の暮らしが叶う、妥協ではなくこの建売が買いたいと思ってもらえるようなプランをデザインしました。建売の良さである普遍的な間取りを完全に無くすことはせず、各号棟によって特徴付けたこだわりのポイントを加え、それぞれ多様なライフスタイルを提案するものとなっています。
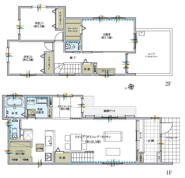
■1号棟「まわる家」
共働きの忙しい家庭に時短という価値を与え、豊かな暮らしが叶う回遊動線を中心とした間取り。
効率的な家事動線と身じたく動線が日々の生活を助けます。

■2号棟「片付け上手の家」
物が多くなりがちなお子様がいる家庭でも片付いた室内を保つことが出来る収納豊富な間取り。
戸建では平均13%程とされている収納率について、本物件は約21%を実現しました。


■3号棟「つなぐ家」
2つの「つなぐ」を中心にライフスタイルの幅を広げ、日常に充実感をもたらす空間づくりをしました。
①内と外をつなぐ…外の空気や空・光・緑を感じ、開放感をもたらす
②リビングとゆるやかに「つなぐ」…個になりすぎない、プライベートな場所


※画像はイメージです。実際のものと異なる場合があります。
【物件概要】

名称 | リストガーデン玉縄4丁目 |
所在地 | 神奈川県鎌倉市玉縄4丁目258-31付近 |
交通 | JR湘南新宿ライン・横須賀線・東海道線・根岸線「大船駅」徒歩18分 |
土地面積 | 1号棟:166.79m2・2号棟:147.08m2・3号棟:150.46m2(実測) |
建物面積 | 1号棟:101.84m2・2号棟:102.68m2・3号棟:103.30m2(建築確認) |
価格 | 1号棟:6,490万円・2号棟:6,790万円・3号棟:6,890万円 |
間取り | 3LDK |
完成時期(予定) | 2023年11月末 |
引渡時期(予定) | 2023年12月末 |
事業主・売主 | リストホームズ株式会社 |
【リストホームズ株式会社】
所在地 :神奈川県横浜市中区尾上町 4-47
代表 :代表取締役社長 北見 尚之(きたみ ひさし)
設立 :2017年4月12日
事業概要:戸建住宅の企画、開発、分譲、設計、施工、請負および監理、既存住宅のリフォーム
【リスト株式会社】
所在地 :神奈川県横浜市中区尾上町4-47
代表 :代表取締役社長 北見 尚之(きたみ ひさし)
創業 :1991年5月10日
設立 :2016年5月20日
連結売上高:445億円(2022年12月期)
事業概要 :持株会社、グループ経営事業
1991 年、不動産仲介業を行うリスト株式会社を設立。以降、戸建住宅・マンションの開発分譲事業、アセットマネジメント事業など一貫して不動産関連事業を行っております。また、2016 年からは、グループ会社の再編を行い持株会社制度に移行し、当社を中核とした「リストグループ」としての経営体制に移行しました。
2010 年には、現リストインターナショナルリアルティ株式会社において世界最大級のオークションハウスである「サザビーズ」を起源とする不動産仲介ブランド「サザビーズ インターナショナル リアルティ®」の国内独占営業権を取得し、「リスト サザビーズ インターナショナル リアルティ」のブランドで、アメリカ ハワイ州を皮切りに、シンガポール、香港、フィリピン、タイで不動産仲介事業や開発事業を行っております。リストグループでは、これらの事業を通じてお客様に「価値ある不動産」を提供し続けてまいります。
このプレスリリースには、メディア関係者向けの情報があります
メディアユーザー登録を行うと、企業担当者の連絡先や、イベント・記者会見の情報など様々な特記情報を閲覧できます。※内容はプレスリリースにより異なります。
すべての画像
