土地区画整理地内の発展を続けるエリアに誕生する『マインドスクェア西大袋 見晴らしの街』南庭やカースペース2台分を確保した、土地面積166m2以上の全6邸
販売開始のお知らせ
このたび、株式会社中央住宅(本社:埼玉県越谷市南越谷1丁目21番地2、代表取締役社長:品川 典久、以下:中央住宅)は、新築一戸建分譲住宅『マインドスクェア西大袋 見晴らしの街』(埼玉県越谷市、全6邸)の販売を開始いたしましたので、お知らせいたします。

- 未来を見据えた街づくりを行うエリア
周辺は、「隣接する住宅地に配慮しながら、主に沿道サービス施設等の立地の誘導を図る地区。」として制限と開発が行われ、未来へ発展する区域です。都市景観の向上と防災上の観点から、駅周辺や公共施設周辺の幹線道路などで電線類の地中化にも取り組んでいます。
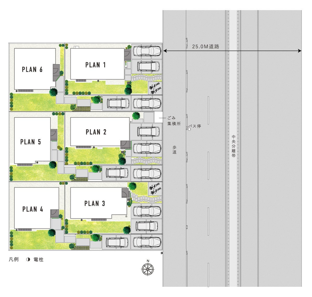
当分譲地は全邸が166m2以上のゆとりある敷地面積。全邸南側に配した庭空間で、家族と心地よい憩いの時間を過ごせます。また、各邸2台分のカースペースとサイクルスペースを確保し、隣棟間隔や道路からの距離にもゆとりを創出した街並みです。

- 理想の暮らし方を叶える4LDK以上の間取り

【スキップDEN】
小上がりの空間を設えたスキップDEN。堀机を施しているため、リラックスしながらテレワークや読書、勉強に集中できます。(PLAN5.6)
【テキスタイルフロアルーム】
リビングの続き間に柔らかく心地よいテキスタイルを敷いた空間を設けました。趣味や子どもの遊び場など、やさしく癒してくれる憩いの空間です。(PLAN1.3.4)
【20J LDK】
リビングダイニングに、20帖超えのゆとりの広さを確保。みんなが集っても伸び伸びと過ごせ、一緒にいる時間も増えていくことでしょう。(PLAN2)
- 快適な暮らしを彩る室内プラン
買い置きや作り置きした食品をたっぷり冷凍しておけるホームフリーザーをキッチン付近に標準設置。買い物の回数や料理の手間を短縮でき、便利です。
■『マインドスクェア西大袋 見晴らしの街』の詳しい物件概要は公式ホームページにて
https://www.polus-mind.jp/kodate-ms/nishiobukuro12/?waad=RiZcMJTj
■ 資料請求はこちら
https://www.polus-mind.jp/kodate-ms/inquiry/bk/mind.php?fmid=yyM68GVk7m0P43yuZXm8Ef49zQHxOd&prdctplsbjid=6096&waad=VjamIcib
■ 来場予約はこちら
https://www.polus-mind.jp/kodate-ms/inquiry/various/g_default.php?k=6096&prdctplsbjid=6096&waad=UZ9qUjDd
このプレスリリースには、メディア関係者向けの情報があります
メディアユーザーログイン既に登録済みの方はこちら
メディアユーザー登録を行うと、企業担当者の連絡先や、イベント・記者会見の情報など様々な特記情報を閲覧できます。※内容はプレスリリースにより異なります。
すべての画像
