千葉県柏市逆井に、グリーンクリエイター、YKK AP(株)とコラボし、 森の中で暮らす別荘のような 8 棟の分譲地 「NOEN(ノエン)柏・逆井」を開発
ポラスグループ ポラスガーデンヒルズ株式会社

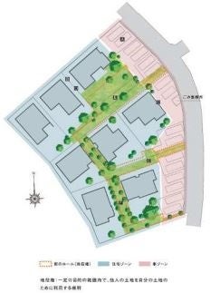
ポラスグループ・ポラスガーデンヒルズ(株)(本 社:千葉県松戸市、代表取締役社長:坂倉利昌) では、千葉県柏市逆井にかつてブルーベリー畑だった南ひな壇の敷地に、グリーンクリエイター、 YKK AP(株)と一緒に、山採りした木々、豊かな植 栽、緑の広場、散策路(地役権設定により創出) など、まるで森の中で暮らす別荘のような 8 棟の 分譲地「NOEN(ノエン)柏・逆井」を開発しました。
<主な特長>

●各住戸 200 ㎡以上のゆったりとした敷地 ●九州に 7 か所の自然農場を持つ(株)estplus17 のグリーンクリエイター小西範揚氏とエクステリアのプロ YKK AP(株)とコラボし、山で育った約 250 本の木々(高低だけではなく葉の大きさまで吟味)を移植、YKK AP の洗練 された商品を活かし、家の中からも外からも楽しめる緑の空間を創出。 ●緑の空間創出に当たっては、一部の敷地を全員でシェアする地役権を設定し、街区の中心に緑の広場、隣 地との間にブルーベリーや様々な果実が楽しめる散策路を設定。 ●各住戸の駐車スペース(2 台分)を設置道路側に集約。街区の中は歩車分離を実現。 ●隣地境界から住戸までの感覚は 1m以上確保し、室内から緑が楽しめるよう街区内に配置。 |

【ランドスケープデザイン】

・本物件の従前は南ひな壇のブルーベリー畑でした。
・「高台」+「ブルーベリー畑」という立地特性から、緑豊かで 快適な住まいを追求。

●本物件のランドスケープデザインのメリット
a. 車を道路側に 2 台並列駐車可能
b. 隣家の間は 1m以上確保
c. 車と住まいのゾーンが分けられる
d. 境界ブロック、フェンスを最小限にして土地の 広がりを演出
e. 街のルールを設定し住民同士の交流ができる
f. 住戸間のスペースを有効活用


【エクステリアデザイン】

●ソトの緑をナカへ取り込む
a. 塀を無くし、ウチとソトの両方から一体的な広がりのある開放的に空間をデザイン
b. ウッドデッキがある暮らし

■「NOEN 柏・逆井」物件概要
・所在地 : 千葉県柏市逆井 5-23
・交 通 : 東武アーバンパークライン逆井駅徒歩 7 分
・敷地面積: 200.05 ㎡~230.14 ㎡
・建物面積: 94.14 ㎡~100.19 ㎡
・総棟数 : 8 棟
・価 格 : 4,080 万円~4,480 万円
このプレスリリースには、メディア関係者向けの情報があります
メディアユーザー登録を行うと、企業担当者の連絡先や、イベント・記者会見の情報など様々な特記情報を閲覧できます。※内容はプレスリリースにより異なります。
すべての画像