PHONE APPLI が『アダル』『サンニン』と連携し、ニューノーマルに合わせたオフィスのフォーメーションチェンジを実現する「Office Transformation Package」を提供開始

「Office Transformation Package」施工例

コロナ禍に於いてテレワークが定着すると共に、空いたオフィススペースについては急な変革を求められ、経営者や企業のオフィス担当者は今後の展開をどうするか、苦悩されているとお聞きしています。また、オフィス自体の撤退や縮小など、オフィスそのものの在り方を再考し、より“人々が集まる場”としてのオフィスの価値を高める「ヒューマニティなオフィス」を目指す動きや、状況や人数に応じて簡単にレイアウトの変更や移動ができる「アジャイル空間」を実現するオフィスの人気が高まるなど、オフィススペースへのニーズはますます多様化しています。
この度提供を開始する「Office Transformation Package」は、オフィス移転やリニューアルなど、実用性と機能性を兼ね備えた最新のオフィスへ、低コストかつ短納期で”transformation”(変革)し、多様なワークスタイルに合わせて柔軟に変わることが出来るオフィスの実現を可能にします。
<「Office Transformation Package」特徴>
◆強固なアライアンスにより、高品質な家具と高水準なオフィス構築を提供
オフィス向け造作家具を70余年に渡り提供してきた実績を持つ『アダル』と、デザインオフィスの構築で確かな実績を持つ空間提案のプロフェッショナル、『サンニン』との協業、連携により、低コストでありながら最新のオフィス空間を提供します。
◆オフィス家具のパッケージ化による価格の抑制と納期の短縮を実現
オフィスの規模と雰囲気を考慮し、あらかじめパッケージングしたオフィス家具を利用するため、低コストかつ短納期での提供が可能です。
<「Office Transformation Package」3つの施工プラン>
以下の3つのタイプから選択いただき、その後、デザイナーとミーティングの上で詳細を決定し、内容とスケジュールを調整します。
PLAN:A (1month plan)
オフィスの雰囲気を大きく変えるプランです。

PLAN:B (2weeks plan)
簡易な置き型什器を中心に配置するプランです。

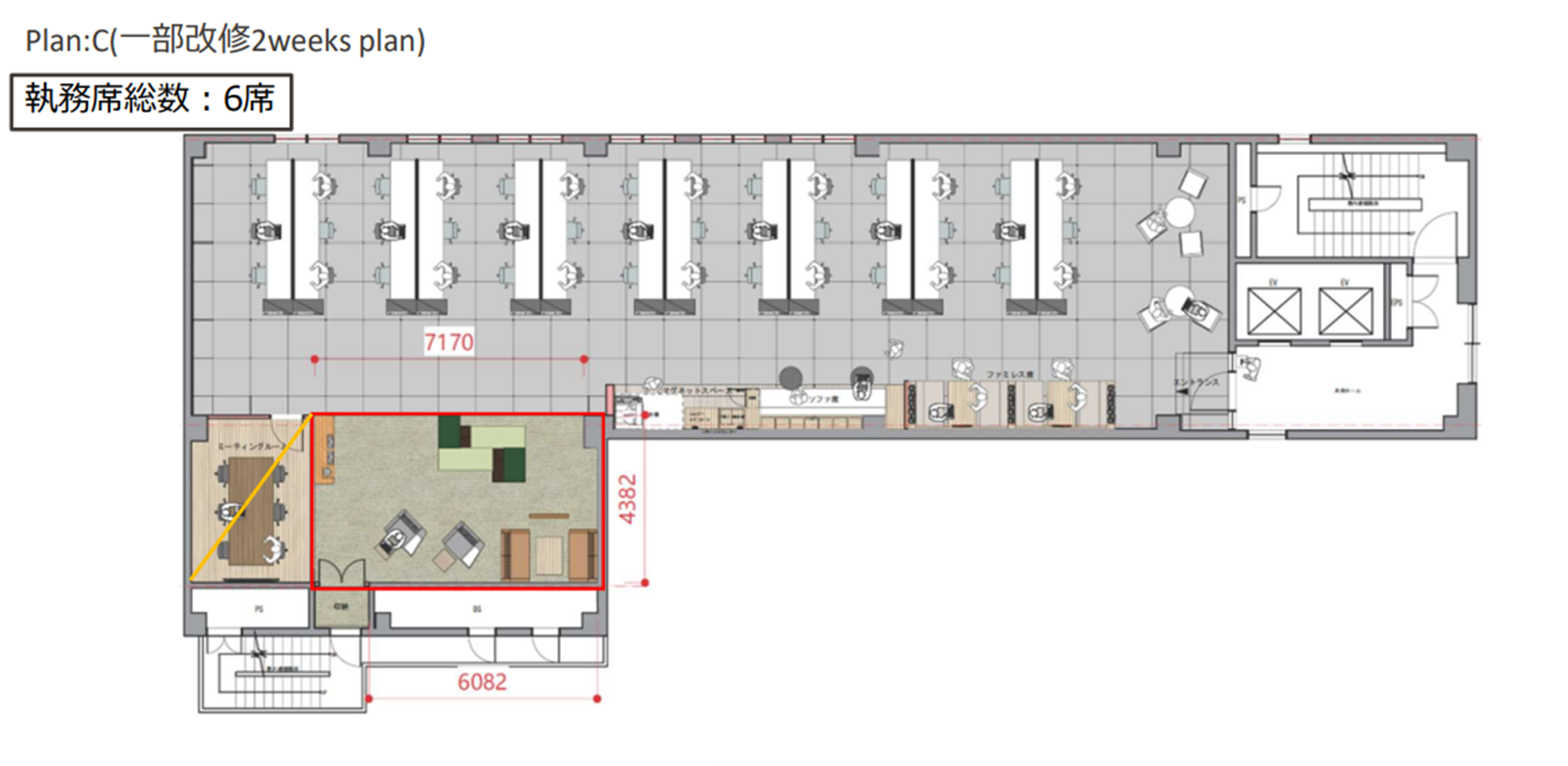
PLAN:C (一部改修2weeks plan)
オフィススペースの一部分の雰囲気を先ず変更し、働き方の調和を図りながら、全体の改修を進めるプランです。

<株式会社アダル 代表取締役 武野 龍 氏からのエンドースメント>
ニューノーマルという言葉と共に、働き方が大きく変化してきました。オフィスは執務をする場所から、より創造する場所へと変化しています。私達が飲食店舗・商業施設・宿泊施設で培った家具製作のノウハウ活かし、「より快適な空間への家具提供」を目指し、企業内スペースの有効活用や活性化にスピードを持って対応できる様、お手伝いをして参ります。
<サンニン株式会社 代表取締役 東 正展 氏からのエンドースメント>
レイアウト検討から施工までのプロセスを簡略化し、迅速にご提供するこの度の「Office Transformation Package」は、弊社にとっても悲願でした。この度PHONE APPLI、アダルとの協業により、実現できる体制が整ったことを大変嬉しく思います。コロナ禍も相まってワークスタイルは日々激動しており、低コスト・短納期を売りとした今回のサービスは、多様化するお客様のニーズに対する一つの答えになると確信しております。PHONE APPLIの最先端なコンサルティングサービス、アダルの良質な製品に、弊社の設計・施工のノウハウを相乗させ、より一層価値ある空間をご提供できるよう尽力して参ります。
《 株式会社アダル 会社概要 》
代表取締役社長 :武野 龍
所在地 :〒812-0863 福岡県福岡市博多区金の隈3丁目13番2号
設立 :1968年4月
業務内容 :営業用イス・テーブル・什器などの製造卸販売、その他、インテリア資材販売及び設計・施工
URL :https://www.adal.co.jp/
《 サンニン株式会社 会社概要 》
代表取締役社長 :東 正展
所在地 :〒106-0044 東京都港区東麻布2丁目6番5号 タトルビル4階
設立 :2005年7月
業務内容 :デザイン設計・グラフィック事業、不動産事業、メンテナンス事業、特注製作事業、インテリアサービス事業
URL :https://sunnin.jp/
《株式会社PHONE APPLI について》
株式会社PHONE APPLIは「コミュニケーション改革で、働きかたをアップデートする」をビジョンに掲げ、多様な働き方の実現を目指す働き方改革推進企業様をサポ―トします。8年連続国内シェアNo.1の Web電話帳クラウドサービス「PHONE APPLI PEOPLE」の開発、販売、自社オフィス「CaMP」での実証実験、世の中の働き方改革調査などを通じ、企業文化の変革や企業価値の向上を目指します。
《株式会社PHONE APPLI会社概要》
代表取締役社長 :石原 洋介
所在地 :〒105-0001 東京都港区 虎ノ門4丁目3番13号 ヒューリック神谷町ビル8階
設立 :2008年1月
資本金 :398,365,710円
業務内容 :Web電話帳クラウドサービス「PHONE APPLI PEOPLE」等、クラウドサービスの企画・開発・販売/アプリケーション開発・販売/働きかたコンサルティング事業/各種IP-PBX対応アプリケーションの開発・運用
URL :https://phoneappli.net/
このプレスリリースには、メディア関係者向けの情報があります
メディアユーザー登録を行うと、企業担当者の連絡先や、イベント・記者会見の情報など様々な特記情報を閲覧できます。※内容はプレスリリースにより異なります。
すべての画像
- 種類
- 商品サービス
- ビジネスカテゴリ
- ネットサービススマートフォンアプリ
- ダウンロード
