2022年4月1日(金)から梅田1丁目地区においてエリアマネジメント活動を本格開始!
~道路空間の有効活用により、道路維持管理と道路空間の利便性向上・にぎわい創出を行い、梅田1丁目地区のエリア価値向上を目指します~
一般社団法人梅田1丁目エリアマネジメント(※1)は、大阪市建設局が公募していた「梅田1丁目地区の都市再生整備計画区域に設ける入札対象施設等に係る道路占用者」に選定されました。これを受け、2022年4月1日から梅田1丁目地区において、大阪市建設局との間で締結した基本協定に基づいたエリアマネジメント活動を開始します。
この活動は、大阪駅前地下道をはじめとする梅田1丁目地区の地上・地下の道路空間を有効活用し、歩道上に広告板等を設置して収益活動を行い、その収益を用いて、道路空間を良好に維持するための道路・植栽帯の維持管理業務や、道路空間の利便性向上・にぎわい創出、安心・安全な都市環境の創出といった公的活動業務を実施するという官民連携の取組みで、これにより大阪の玄関口にふさわしい都市空間の形成を目指すものです。
また、梅田1丁目地区の歩行者交通量や歩行者空間の魅力度など公共空間活用の効果を検証していきます。
将来的には、大阪駅前地下道東広場に案内所を整備・運営するなど、梅田1丁目地区において、利便性向上に資する取組みやにぎわい・交流空間の整備・運営を推進し、居心地の良い歩きたくなる空間づくりとエリア価値の向上を目指します。
~梅田1丁目地区におけるエリアマネジメント活動(概要)~
■道路占用者
一般社団法人梅田1丁目エリアマネジメント
■活動期間
2022年4月1日から2026年3月31日まで(予定)
■活動内容
(2)梅田1丁目地区における道路維持管理業務
(3)梅田1丁目地区における歩行者利便性向上業務
(4)梅田1丁目地区におけるにぎわい創出業務
(5)梅田1丁目地区における安心・安全業務
(6)本取組みの効果検証
(7)地域住民、地域団体との地域連携
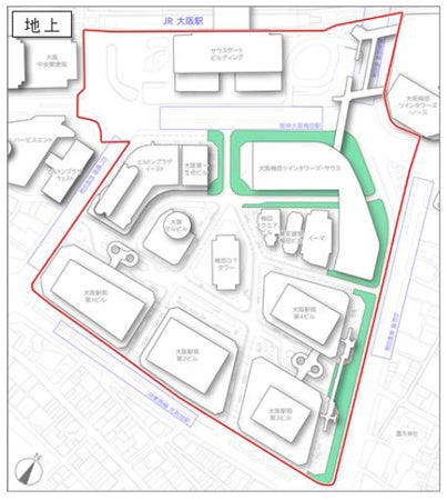
■活動範囲
梅田1丁目地区のエリアマネジメント活動を行うことを目的に2020年3月に設立・活動開始しました。2021年5月に大阪市から都市再生推進法人(※2)の指定を受け、梅田1丁目地区の活性化に向けた取組みを進めています。
<会社概要>
(社員)大阪市高速電気軌道株式会社、大阪地下街株式会社、西日本旅客鉄道株式会社、
阪急電鉄株式会社、阪神電気鉄道株式会社
(代表)森永 純
(所在地)大阪市北区芝田1丁目1番4号 阪急ターミナルビル内(阪急阪神不動産株式会社内)
(※2)都市再生推進法人
都市再生推進法人とは、都市再生特別措置法に基づき、地域のまちづくりの中核を担う法人として、市町村が指定するものです。
阪急阪神不動産株式会社 https://www.hhp.co.jp/
リリース https://www.hankyu-hanshin.co.jp/release/docs/1ecaa0aef1c74bcdcf4f37cba83978c389438961.pdf
発行元:阪急阪神ホールディングス
大阪市北区芝田1-16-1
また、梅田1丁目地区の歩行者交通量や歩行者空間の魅力度など公共空間活用の効果を検証していきます。
将来的には、大阪駅前地下道東広場に案内所を整備・運営するなど、梅田1丁目地区において、利便性向上に資する取組みやにぎわい・交流空間の整備・運営を推進し、居心地の良い歩きたくなる空間づくりとエリア価値の向上を目指します。
~梅田1丁目地区におけるエリアマネジメント活動(概要)~
■道路占用者
一般社団法人梅田1丁目エリアマネジメント
■活動期間
2022年4月1日から2026年3月31日まで(予定)
■活動内容

(2)梅田1丁目地区における道路維持管理業務
(3)梅田1丁目地区における歩行者利便性向上業務
(4)梅田1丁目地区におけるにぎわい創出業務
(5)梅田1丁目地区における安心・安全業務
(6)本取組みの効果検証
(7)地域住民、地域団体との地域連携

■活動範囲



梅田1丁目地区のエリアマネジメント活動を行うことを目的に2020年3月に設立・活動開始しました。2021年5月に大阪市から都市再生推進法人(※2)の指定を受け、梅田1丁目地区の活性化に向けた取組みを進めています。
<会社概要>
(社員)大阪市高速電気軌道株式会社、大阪地下街株式会社、西日本旅客鉄道株式会社、
阪急電鉄株式会社、阪神電気鉄道株式会社
(代表)森永 純
(所在地)大阪市北区芝田1丁目1番4号 阪急ターミナルビル内(阪急阪神不動産株式会社内)
(※2)都市再生推進法人
都市再生推進法人とは、都市再生特別措置法に基づき、地域のまちづくりの中核を担う法人として、市町村が指定するものです。
阪急阪神不動産株式会社 https://www.hhp.co.jp/
リリース https://www.hankyu-hanshin.co.jp/release/docs/1ecaa0aef1c74bcdcf4f37cba83978c389438961.pdf
発行元:阪急阪神ホールディングス
大阪市北区芝田1-16-1
このプレスリリースには、メディア関係者向けの情報があります
メディアユーザーログイン既に登録済みの方はこちら
メディアユーザー登録を行うと、企業担当者の連絡先や、イベント・記者会見の情報など様々な特記情報を閲覧できます。※内容はプレスリリースにより異なります。
すべての画像
