第11 回 POLUS‐ポラス‐学生・建築デザインコンペティション開催のお知らせ
ポラスグループ ポラス株式会社

ポラスグループ ポラス株式会社(本社:埼玉県越谷市、代表取締役:中内 晃次郎)は、大学院や大学、高等専門学校、高等学校等に通う学生を対象に 「第11 回POLUS-ポラス- 学生・建築デザインコンペティション」を開催いたします。
本コンペティション(以下:コンペ)は2014年に、ポラスグループ創業45周年の記念事業の一つとして第1 回を開催し、昨年の第10 回は応募作品数362 点と多くのご応募をいただき、将来の建築業界を背負う学生たちの素晴らしい発想に触れることができました。
第11 回は、「個が際立つ新しいシェアのまち」をテーマに、2023 年11 月30 日(木)から2024 年5 月9 日(木)にかけて木の家による魅力的な作品を募集いたします。また今回は、賞金総額を昨年の約2 倍となる205 万円へ大幅に増額し、RI 賞(実物件化プロジェクト候補作品の中から特に優秀な作品を表彰)、UJ 賞(大学院生・大学学部4 年生を除く応募者の中で特に優秀な作品を表彰)を新設しました。
本コンペを通して、建築の道を志す学生の自由で新鮮な発想を表現・公表する機会
を設け、将来活躍が期待される学生の方々を応援するとともに、建築業界のさらなる発
展に貢献したいと考えております。
発表は、2024 年6 月下旬に開催予定の公開審査会会場で行うと共に、公式サイトに掲示します。また、応募作品の中から実物件への具現化の可能性も図ります。
公式サイト:https://kenchiku.co.jp/polus

【テーマ】個が際立つ新しいシェアのまち 今回の課題では、家族の概念が変化し個人の意味が益々重要になってきた現代において、個人が住宅地に集まって住むことによってもたらされる新しい価値について考えましょう。 日本の国民生活基礎調査によれば、2022年ついに一人世帯が最も多数を占める時代が到来しました。これは、私たちが考える「住まい」という概念に、大きな変革を求めている兆しと捉えることができるでしょう。これまでの家族構成を前提とした郊外の駐車場・庭付きの戸建て住宅の考え方は、徐々に変わりつつあります。私たちが「家族」として認識する形態は多様化しており、その多様性を受け入れ、新しい住宅の形を提案することが求められています。 住宅地における共用スペースの意義も新しく再定義されるべきでしょう。例えば、個々人が台所を占有するよりも、大きな共用のキッチンをシェアした方が住人同士のコミュニケーションが活性化し豊かな生活を送ることができるかもしれません。また、EV の自動運転車が普及する未来では、自分専用の自動車を持つことがナンセンスになるかもしれません。 この競技では、一人世帯が多数を占める新しい時代を迎える「まち」のイメージを創造してもらいます。もちろん二人以上の世帯がいないわけではないので、多様性の観点から、一人世帯だけで充足してしまうのではなく、二人以上の世帯と共存・共生できることが重要です。 木造であることを前提として、個人のアクティビティや価値観が際立ち、同時にコミュニティとしての繋がりも持てるような、まだどこにもない革命的で魅力的な未来の住宅地の形態を提案してください。 斬新でフレッシュなアイディアを期待しています。 |
「第11 回 POLUS -ポラス- 学生・建築デザインコンペティション」概要
■主催
ポラス株式会社(https://www.polus.co.jp/)
■テーマ
「個が際立つ新しいシェアのまち」
■審査委員
審査委員長 西沢 立衛 (横浜国立大学大学院Y-GSA 教授)
審査委員 今井 公太郎 (東京大学生産技術研究所 教授)
原田 真宏 (芝浦工業大学建築学部建築学科 教授)
中川 エリカ (中川エリカ建築設計事務所)
ポラス 社内審査委員1 名
以上5 名
■賞
賞金総額 205 万円
最優秀賞 1 点 50 万円
優秀賞 1 点 30 万円
入選 3 点 各15 万円
佳作 5 点 各5 万円
R I 賞(Real Ideas award)※1 5 点 各5 万円
U J 賞(Under Junior award)※2 10 点 各3 万円
※1:実物件化プロジェクトの候補作品の中から特に優秀な5 作品。
※2:大学院生・大学学部4年生を除く応募者の中で特に優秀な10 作品。
■応募期間
2023 年11 月30 日(木)~2024 年5 月9 日(木)24:00
■応募資格
2024 年4 月1 日時点で、大学院、大学、短期大学、高等専門学校、専修学校(各種学校)、高等学校、等の学生であること。
■作品条件
内容:「個が際立つ新しいシェアのまち」のテーマに沿った作品
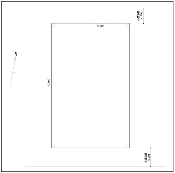
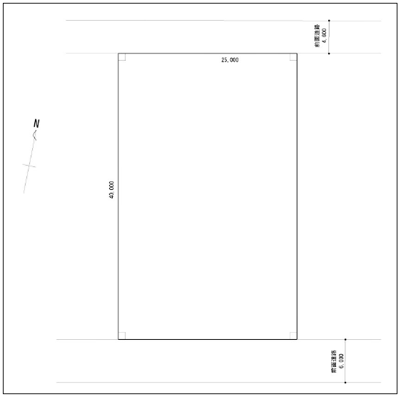
構造:木造 / 規模:7世帯程度の住宅 / 敷地:別図参照
■応募方法
公式サイト〈 https://kenchiku.co.jp/polus 〉より応募登録をしてください。
■発表
2024 年6 月下旬に行われる公開審査会会場で発表するとともに、公式サイトにて入賞結果を発表します。

応募に関するお問い合わせ先 POLUS-ポラス-学生・建築デザインコンペティション事務局 polus-competition@kenchiku.co.jp |
【別図】敷地:図のような環境にある区画です。


このプレスリリースには、メディア関係者向けの情報があります
メディアユーザー登録を行うと、企業担当者の連絡先や、イベント・記者会見の情報など様々な特記情報を閲覧できます。※内容はプレスリリースにより異なります。
すべての画像