20代の若手チームが開発、若者が住みたい暮らしを実現する個性派賃貸マンション パティオ(中庭)でつながる暮らし『こもれび』発売
ポラスグループ ポラスグランテック株式会社
ポラスグループで賃貸マンション・アパートの請負・建築を手掛けるポラスグランテック㈱(埼玉県越谷市、代表取締役:中内晃次郎)では、重量鉄骨造の3階建て賃貸マンション『こもれび』を開発、1月21日より販売を開始致します。
今回の商品は、20代の若手社員(入社1年

目~6年目)のチームが、20代~30代の二人暮らし世帯からニーズの高い1LDK市場に、個性的な物件が少ないとの調査結果を踏まえ、“パティオ(中庭)でつながる暮らし”をコンセプトにした個性派賃貸住宅を開発しました。建物の中心に中庭を配置し、すべての住戸に向かう際に中庭を通ることになり、中庭と一体となった生活をする賃貸住宅です。また、鉄骨ならではの特徴を活かし、柱の少ない吹き抜けのデザインを採用しました。

新商品『こもれび』は、カップルや新婚を中心とした、20~30代の二人暮らし世帯をターゲットに、部屋の種類を3タイプ用意しました。寝室とリビングが独立した1LDKを基本とした単身者や新婚世帯が暮らしやすいプランの商品で、2階がメゾネットになっている吹き抜け(2戸)、テラス・バルコニータイプ(1、3階に各1戸)、窓辺タイプ(2、3階に各1戸)で、それぞれの場所から中庭を感じ取れるようになっています。また、鉄骨造の利点を活かした柱のない吹き抜けや、家事動線などこだわりの部屋作りができるため、差別化を図った賃貸住宅として、賃貸経営を行うオーナー様にとっても長期間の安定経営を
していただけるメリットがあります。
◆「こもれび」コンセプト ~パティオ(中庭)でつながる暮らし~
建物の中心に中庭を配置し、すべての住戸に向かう際に中庭を通るため、中庭と一体となった生活ができます。
➀中庭とつながる:中庭の景色を生活に取り入れ、四季を感じる生活ができます。
②人とつながる: 分譲地内のコミュニティのように、住民同士の関わりを共同住宅内でも育むことができます。
③街とつながる:中庭が街並みに緑を提供することで、「街の中の庭」を彷彿とさせる空間となります。
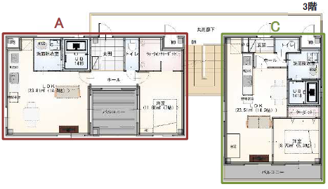
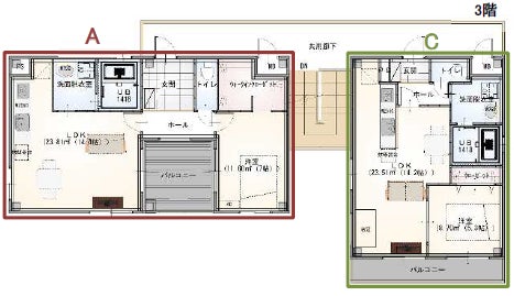
A テラス・バルコニータイプ

◆間取り:1LDK ◆タイプ:ワンフロアタイプ
◆専有面積:47.40㎡~58.69㎡
◆暮らしのイメージ:3階はLDK、洋室と段差がなくなるよう奥行きが広いバルコニーを設置し、床面にデッキを置くことで中庭が望められる部屋となり、リビングと一体利用可能にしました。また1階のテラスは、ガーデンテーブルなどを置き、寛ぎの空間として利用いただけます。
B 吹き抜けタイプ
◆間取り:1LDK ◆タイプ:メゾネットタイプ

◆専有面積:59.60㎡
◆暮らしのイメージ:賃貸では少ない吹き抜けを設置し、開放的な住空間を実現しています。吹き抜けを設置することでリビングから1階のハイサイドライトを通して中庭が見える開放的な部屋となります。
C 窓辺タイプ
◆間取り:1LDK ◆タイプ:ワンフロアタイプ
◆専有面積:47.40㎡
◆暮らしのイメージ:LDKに大きめのFIX窓を配置し、窓の前に窓辺」と名付けた造作イスを設置することで、中庭を眺めることができる、一般的な賃貸にはなかった生活を実現します。
◆「こもれび」概要

構 造: 重量鉄骨造 計画戸数: 6戸 延べ床面積: 389.25㎡ 本体工事価格: 86.3万円/坪(税別)~ 年間販売目標: 2024年度販売棟数 5棟 |
このプレスリリースには、メディア関係者向けの情報があります
メディアユーザー登録を行うと、企業担当者の連絡先や、イベント・記者会見の情報など様々な特記情報を閲覧できます。※内容はプレスリリースにより異なります。
すべての画像